函館市中道1丁目23番 戸建住宅
ここに注目!築浅3LDKの戸建物件です。 室内は広々とした21帖のLDKを中心に、ご家族皆様でゆったりと寛げる空間が広がります。IHクッキングヒーター付きのシステムキッチンは、お料理の時間を快適にサポートしてくれますね。ウォークインクローゼットや床下収納、シューズボックスなど、収納スペースも充実しており、お部屋をいつも綺麗に保てます。エアコンや追い焚き風呂、モニタ付インターホンといった、日々の暮らしを快適にする設備が充実しているのも嬉しいポイントです。 駐車場は2台分完備。日当り良好で閑静な住宅街に位置しております。 幼稚園やコンビニが近く、子育て世代にも嬉しい環境が整っています。ぜひ一度、現地でこの住まいの魅力を体感してください。
| 価格 |
2,555万円
|
|---|---|
| 建物面積 | 103.4m² (31.27坪) |
| 土地面積 | 134.24m² (40.6坪)(公簿) |
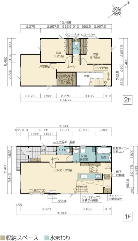
| 間取り | 3LDK1階:LDK21帖 / 2階:洋室8帖 洋室5.25帖 洋室5.75帖 |
| 住所 | 北海道函館市中道1丁目23 |
| 交通 | 函館バス 「西堀病院前」停(徒歩3分) |
| 築年月 | 築3年(2022年5月) |
| 駐車場 |
あり 駐車可能台数:2台
|
販売状況、見学、詳細を知りたい方はこちら!
お電話の際は「連合隊の物件」とお伝えください。
新着 情報掲載期限:あと27日(更新日 2026/1/17)
- 物件写真・概要
- 周辺地図
-
販売状況、見学、詳細を知りたい方はこちら!
おすすめポイント
- 築5年以内
- 駐車2台以上可
- 追い焚き風呂
- 近くて便利!徒歩5分以内にある施設
- 2分
2分- 5分
5分- 2分
2分- 周辺施設を地図で確認
交通
- 函館バス 「西堀病院前」停徒歩3分
物件概要
建物の階建 地上2階建 主要採光面 構造 木造(2×4) 接道状況 一方 - 南西側幅6.00mの公道に接道
都市計画区域 市街化区域 私道負担 地目/地勢 宅地 地勢:平坦 国土法届出 土地権利 所有権 用途地域 - 第2種中高層住居専用地域(建ぺい率:60% / 容積率:200%)
引渡し 相談 現況 空き 取引態様 仲介 物件No 23 仲介手数料概算 不動産会社へお問合せください 設備・特徴 - 閑静な住宅街
- 日当り良好
- 照明器具付
- 吹き抜け
- ウォークインクローゼット
- 床下収納
- シューズボックス
- トイレ2ヶ所以上
- 追い焚き風呂
- 浴室に窓
- 浴室1坪以上
- IHクッキングヒーター
- システムキッチン
- コンロ3口以上
- エアコン付
- 24時間換気システム
- 灯油ボイラー
- モニタ付インターホン
備考 ※間取りや設備等は現況優先とさせて頂きます。 学区色がついているアイコンをクリックすると、本物件までの道順を見ることができます。
主な周辺施設色がついているアイコンをクリックすると、本物件までの道順を見ることができます。
- 幼保連携型鍛治さくら認定こども園約92m(徒歩2分)
- セブンイレブン函館中道中央店約142m(徒歩2分)
- 道南うみ街信用金庫中道支店約190m(徒歩3分)
- 医療法人社団仁生会西堀病院約574m(徒歩8分)
- 函館鍛治町郵便局約324m(徒歩5分)
- ほっともっと函館中道店約339m(徒歩5分)
- サツドラ函館中道店約546m(徒歩7分)
- ファミリーマート函館本通1丁目店約460m(徒歩6分)
- モスバーガー函館本通一丁目店約715m(徒歩9分)
- 函館市医師会病院約919m(徒歩12分)
対象となりうる支援制度
函館市
支援制度に関するお問合せは、不動産会社ではなく、自治体の公式ページまたは担当課までご確認ください。
上記リンクは、支援制度の対象条件を一定以上満たした物件に対し自動表示しています。
-
ホームページはこちら
北海道知事 渡島(12) 第409号
イエステーション函館松風店 野村不動産函館(株)
※連合隊は物件情報の精度向上に努めています:「物件情報に誤りがある」「成約済みである」などお気付きの点がございましたらこちらよりご連絡ください。
写真枚数:26枚
全国展開のフランチャイズ 【イエステーション】 函館松風店 野村不動産函館㈱です。
令和7年1月松風店オープン!売買営業スタッフは全員宅建士です!函館市・北斗市・亀田郡七飯町エリアの戸建・土地・マンション・アパート等に特化した仲介・買取を行っております。相続した空き家の処分でお困りのかた是非ご相談ください。