美原1丁目【省エネ】住宅
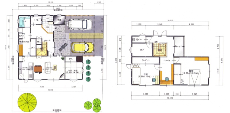
ここに注目!北方型住宅ECO認定された人気の美原で快適な暮らしを叶える邸宅が登場しました! 徒歩2分圏内にコンビニ、スターバックス、ベビー用品店が揃い、日常がより便利に。小学校まで徒歩8分、中学校まで徒歩7分とお子様の通学も安心の立地です。 室内はゆとりの3SLDK。全居室収納やシューズボックスを備え、広々と使えます。システムキッチン、食洗器、温水洗浄トイレなど水回り設備も充実しています。 この住まいの魅力は、高気密高断熱と太陽光発電システムによる優れた省エネ性能です。トリプル断熱やトリプルサッシ、エコジョーズが一年を通して心地よい室内環境を保ち、光熱費の負担を軽減します。 さらに、車イス対応のバリアフリー設計で、ご家族みんなに優しい住まい。カーポート付き駐車場は3台分確保されており、来客時も安心です。日当たりの良いお庭で、開放感も満喫できます。 ぜひ一度、現地でこの住まいの良さをご体感ください。お問い合わせをお待ちしております!
| 価格 |
2,980万円
|
|---|---|
| 建物面積 | 125.04m² (37.82坪) |
| 土地面積 | 227.71m² (68.88坪)(公簿) |
| 間取り | 3SLDK |
| 住所 | 北海道函館市美原1-36-25 |
| 交通 | 函館バス 「美原1丁目36」停(徒歩2分) |
| 築年月 | 築13年(2012年9月) |
| 駐車場 |
あり 駐車可能台数:3台
|
販売状況、見学、詳細を知りたい方はこちら!
お電話の際は「連合隊の物件」とお伝えください。
情報掲載期限:あと8日(更新日 2025/11/13)
- 物件写真・概要
- 周辺地図
-
販売状況、見学、詳細を知りたい方はこちら!
おすすめポイント
- 駐車2台以上可
- 都市ガス
- 近くて便利!徒歩5分以内にある施設
- 2分
2分- 4分
4分- 周辺施設を地図で確認
交通
- 函館バス 「美原1丁目36」停徒歩2分
物件概要
建物の階建 地上2階建 主要採光面 南西 構造 木造 バルコニー あり接道状況 一方 - 東側幅5.90mの公道に16.00m接道
都市計画区域 市街化区域 私道負担 なし 地目/地勢 宅地 地勢:平坦 国土法届出 土地権利 所有権 用途地域 - 第2種中高層住居専用地域(建ぺい率:60% / 容積率:200%)
引渡し 相談 現況 空き 取引態様 仲介 物件No 33 仲介手数料概算 104万9,400円(金額は概算です。正確な金額は不動産会社へお問合せ下さい) 設備・特徴 - 閑静な住宅街
- 太陽光発電システム
- 日当り良好
- 照明器具付
- バリアフリー
- 全居室収納あり
- シューズボックス
- トイレ2ヶ所以上
- 温水洗浄トイレ
- シャワー付洗面化粧台
- 浴室に窓
- コンロ3口以上
- システムキッチン
- 都市ガス
- ガス暖房
- エコジョーズ
- モニタ付インターホン
- 24時間換気システム
備考 カーポート、庭付、車いす対応 高気密高断熱+ソーラーシステムで冷暖房コスト縮減 トリプル断熱と第1種24時間換気 トリプルサッシとハニカムサーモスクリーン+フレシェードで夏冬快適 経済的なエコジョーズ 【ランニングコスト】※家族構成により異なります 三菱5.5KW 売電収入約5万円/年 独スティーベル 熱効率90% カーテン、エアコン不用 冬期ガス代2万円台、電気料5~6千円位 学区色がついているアイコンをクリックすると、本物件までの道順を見ることができます。
主な周辺施設色がついているアイコンをクリックすると、本物件までの道順を見ることができます。
- ベビー・子供用品バースデイ美原店約92m(徒歩2分)
- ファミリーマート函館美原1丁目店約149m(徒歩2分)
- スターバックスコーヒー函館美原店約128m(徒歩2分)
- 認定こども園亀田ゆたか幼稚園約294m(徒歩4分)
- ゆず庵函館美原店約417m(徒歩6分)
対象となりうる支援制度
函館市
支援制度に関するお問合せは、不動産会社ではなく、自治体の公式ページまたは担当課までご確認ください。
上記リンクは、支援制度の対象条件を一定以上満たした物件に対し自動表示しています。
-
ホームページはこちら
北海道知事 渡島(12) 第409号
イエステーション函館松風店 野村不動産函館(株)
※連合隊は物件情報の精度向上に努めています:「物件情報に誤りがある」「成約済みである」などお気付きの点がございましたらこちらよりご連絡ください。
写真枚数:29枚
全国展開のフランチャイズ 【イエステーション】 函館松風店 野村不動産函館㈱です。
令和7年1月松風店オープン!売買営業スタッフは全員宅建士です!函館市・北斗市・亀田郡七飯町エリアの戸建・土地・マンション・アパート等に特化した仲介・買取を行っております。相続した空き家の処分でお困りのかた是非ご相談ください。