ワザック函館 五稜郭行啓通り
ここに注目!南向き角部屋の3LDK、広々80.28㎡の専有面積で日当りも良好です。IHクッキングヒーターを備えたカウンターキッチンは、ご家族との会話を楽しみながらお料理できる空間。都市ガス、エコジョーズ、ガス暖房で冬も暖かく過ごせます。 オートロック、モニタ付インターホン、防犯カメラ、ディンプルキーでセキュリティも充実。宅配BOX、シューズインクローゼット、インターネット利用料無料など、暮らしに嬉しい設備が揃っています。 シエスタハコダテや函館ロフトまで徒歩2分圏内、コンビニや銀行、病院、小学校も近く、生活利便性に優れた住環境です。駐車場もご用意しております。 五稜郭エリアでの理想の暮らしを叶えるこの機会をお見逃しなく!ぜひ一度、現地をご見学ください。
| 価格 |
4,900万円
坪単価:約201.8万円/坪
管理費1万8,710円/月修繕積立金8,030円/月
|
|---|---|
| 間取・専有 |
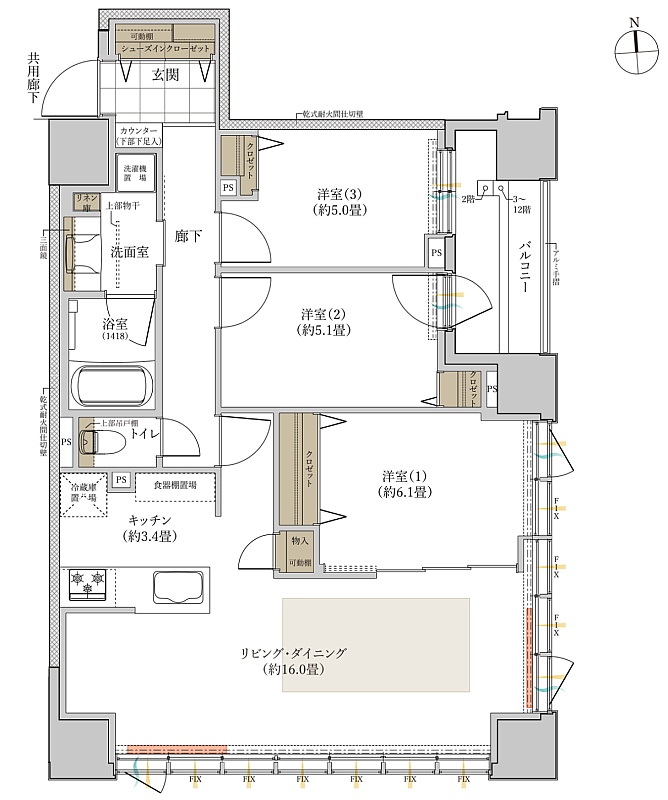
3LDK(80.28m²)
|
| 住所 | 北海道函館市本町8-23 |
| 交通 | 五稜郭公園前駅(徒歩2分)道順を見る |
| 築年月 | 築1年(2025年3月) |
| 駐車場 |
あり (1万6,000円/台) 駐車可能台数:1台
*駐車場の空き状況は、都度空き確認が必要 月額:16,000円/ハイルーフ車月額:18,000円 |
販売状況、見学、詳細を知りたい方はこちら!
お電話の際は「連合隊の物件」とお伝えください。
情報掲載期限:あと25日(更新日 2026/4/20)
- 物件写真・概要
- 周辺地図
-
販売状況、見学、詳細を知りたい方はこちら!
おすすめポイント
- 築3年以内
- 南向き
- 駐車場あり
- 都市ガス
- 角部屋
- 2階以上
- ペット相談可
- オートロック
- エレベーター
- 駅徒歩3分以内
- 近くて便利!徒歩5分以内にある施設
- 2分
2分- 3分
3分- 周辺施設を地図で確認
交通色がついているアイコンをクリックすると、本物件までの道順を見ることができます。
物件概要
所在階/建物の階建 2階(203) / 地上13階建 総戸数 60戸 主要採光面 南 構造 鉄筋コンクリート(RC)造 バルコニー あり(5.89m²)土地権利 所有権 引渡し 相談 現況 空き 管理人 日勤 管理形態 管理組合 有 施工業者 株式会社森川組 取引態様 仲介 物件No 仲介手数料概算 168万3,000円(金額は概算です。正確な金額は不動産会社へお問合せ下さい) 設備・特徴 - エレベーター
- 角部屋
- 日当り良好
- シューズインクローゼット
- シューズボックス
- IHクッキングヒーター
- カウンターキッチン
- 都市ガス
- ガス暖房
- オートロック
- モニタ付インターホン
- ディンプルキー
- 防犯カメラ
- 宅配BOX
- インターネット利用料無料
- BSアンテナ
- エコジョーズ
- 駐輪場
- ペット相談可
備考 *間取り及び設備に関しては現状を優先とさせていただきます 駐車場 平置式駐車場4台[月額使用料14,000円〜28,000円] 平置式駐車場4台[月額使用料14,000円〜28,000円] 駐輪場 平置式6台[月額使用料:400円] スライド式20台[月額使用料:200円] ※飼育できるペットには制限があります。 学区色がついているアイコンをクリックすると、本物件までの道順を見ることができます。
主な周辺施設色がついているアイコンをクリックすると、本物件までの道順を見ることができます。
- シエスタハコダテ約155m(徒歩2分)
- 函館ロフト約54m(徒歩1分)
- ミスタードーナツ函館五稜郭ショップ約179m(徒歩3分)
- ココカラファイン函館本町店約164m(徒歩3分)
- セブンイレブン函館本町店約90m(徒歩2分)
- 北洋銀行五稜郭公園支店約43m(徒歩1分)
- 北海道銀行函館支店約60m(徒歩1分)
- 社会福祉法人函館厚生院函館中央病院約403m(徒歩6分)
- 社会福祉法人函館厚生院函館五稜郭病院約528m(徒歩7分)
- 五稜郭タワー約622m(徒歩8分)
対象となりうる支援制度
函館市
支援制度に関するお問合せは、不動産会社ではなく、自治体の公式ページまたは担当課までご確認ください。
上記リンクは、支援制度の対象条件を一定以上満たした物件に対し自動表示しています。
-
※連合隊は物件情報の精度向上に努めています:「物件情報に誤りがある」「成約済みである」などお気付きの点がございましたらこちらよりご連絡ください。
写真枚数:30枚
あなたの住まいに関するお悩みをワンストップで解決!!
不動産の売買・賃貸・仲介・管理・買取・リフォーム・リノベーションetc... 専門スタッフが親切丁寧に対応します。 悩む前にまずはお気軽に住まイルエステートにご相談ください。 4/29~5/6までGWのため休業となります。休業期間中のお問い合わせは通常営業を再開する5/7より順次対応させていてだきます。