中野通中古住宅
ここに注目!北斗市役所に近い住宅地。15年前にある程度の改装をしていますが、リフォーム必須!!
| 価格 |
480万円
|
|---|---|
| 建物面積 | 128.35m² (38.82坪) |
| 土地面積 | 269.23m² (81.44坪)(公簿) |
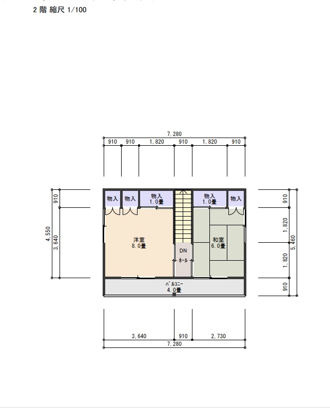
| 間取り | 5DK |
| 住所 | 北海道北斗市中野通2-22-6 |
| 交通 | 清川口駅(徒歩15分)道順を見る |
| 築年月 | 築48年(1977年6月) |
| 駐車場 |
あり
外構の処理次第で3~4台の駐車可能 |
販売状況、見学、詳細を知りたい方はこちら!
お電話の際は「連合隊の物件」とお伝えください。
情報掲載期限:あと26日(更新日 2026/3/31)
- 物件写真・概要
- 周辺地図
-
販売状況、見学、詳細を知りたい方はこちら!
おすすめポイント
- 駐車場あり
- 南向き
- 近くて便利!徒歩5分以内にある施設
- 4分
4分- 4分
4分- 周辺施設を地図で確認
交通色がついているアイコンをクリックすると、本物件までの道順を見ることができます。
物件概要
建物の階建 地上2階建 主要採光面 南 構造 木造 バルコニー あり- ルーフバルコニー
接道状況 一方 - 南側の公道に接道
都市計画区域 市街化区域 私道負担 なし 地目/地勢 宅地 地勢:平坦 国土法届出 土地権利 所有権 用途地域 - 第1種中高層住居専用地域(建ぺい率:60% / 容積率:200%)
引渡し 相談 現況 空き 取引態様 仲介 物件No 仲介手数料概算 33万円(金額は概算です。正確な金額は不動産会社へお問合せ下さい) 設備・特徴 - 整形地
- 閑静な住宅街
- 玄関フード
- LPガス
- 灯油暖房
- コンロ3口以上
- システムキッチン
- 温水洗浄トイレ
- シャワー付洗面化粧台
- 灯油ボイラー
- 田舎暮らし向き
備考 契約不適合責任一切免責 リフォーム相談に応じます。 学区色がついているアイコンをクリックすると、本物件までの道順を見ることができます。
主な周辺施設色がついているアイコンをクリックすると、本物件までの道順を見ることができます。
-
ホームページはこちら北海道知事 渡島(7) 第886号
(株)山正
※連合隊は物件情報の精度向上に努めています:「物件情報に誤りがある」「成約済みである」などお気付きの点がございましたらこちらよりご連絡ください。
写真枚数:17枚
失敗しない不動産売却を。山正はおかげさまで30周年!!。
函館市・北斗市・七飯町での査定・買取実績が豊富な 株式会社 山正にお任せください。