セキスイハイムⅠ
ここに注目!軽量鉄骨造のアパート!!設備充実。
| 価格 |
3,701万円
利回り8%
満室時想定年収:296万4,000円
|
|---|---|
| 住所 | 北海道函館市桔梗町67-14 |
| 交通 | 桔梗駅(徒歩10分)道順を見る |
| 築年月 | 築9年(2016年3月) |
| 構造 | 軽量鉄骨造 |
| 面積 | 建物:195.84m² (59.24坪)/ 土地:34.66m² (10.48坪)(公簿) |
| 現況 | 現在満室(総戸数4戸中 4戸賃貸中) |
販売状況、見学、詳細を知りたい方はこちら!
お電話の際は「連合隊の物件」とお伝えください。
情報掲載期限:あと20日(更新日 2025/12/11)
- 物件写真・概要
- 周辺地図
-
販売状況、見学、詳細を知りたい方はこちら!
おすすめポイント
- 現在満室
- 築10年以内
交通色がついているアイコンをクリックすると、本物件までの道順を見ることができます。
物件概要
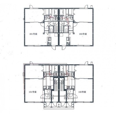
建物の階建 地上2階建 間取り 1LDK×4戸 駐車場 あり接道状況 一方 - 幅8.00mの公道に23.00m接道
都市計画区域 市街化調整区域 用途地域 私道負担 地目/地勢 宅地 地勢:平坦 国土法届出 土地権利 所有権 引渡し 相談 施工業者 北海道セキスイハイム 取引態様 仲介 物件No 仲介手数料概算 128万8,650円(金額は概算です。正確な金額は不動産会社へお問合せ下さい) 設備・特徴 - バス/トイレ別
- その他インターネット
備考 主な周辺施設色がついているアイコンをクリックすると、本物件までの道順を見ることができます。
-
ホームページはこちら北海道知事 渡島(7) 第886号
(株)山正
※連合隊は物件情報の精度向上に努めています:「物件情報に誤りがある」「成約済みである」などお気付きの点がございましたらこちらよりご連絡ください。
写真枚数:8枚
失敗しない不動産売却を。山正はおかげさまで30周年!!。
函館市・北斗市・七飯町での査定・買取実績が豊富な 株式会社 山正にお任せください。