函館市千代台町 『スカイビュー千代台』
ここに注目!函館市電「堀川町」駅まで徒歩2分の好立地!収益一棟マンション『スカイビュー千代台』のご紹介です。 満室想定年間収入1,088万円、表面利回り9.89%と、安定した収益が期待できる物件です。 2014年には外壁張替やエレベーター改修など大規模リフォームを実施しており、築年数を感じさせない良好な状態を保っています。 全24戸、間取りは全て1DK。バス/トイレ別、インターネット対応など、入居者様にも喜ばれる設備が整っています。 周辺にはスーパーアークス千代台店(徒歩5分)、コンビニ(徒歩3分)が点在し、日々の生活に便利な住環境も魅力です。 函館エリアでの不動産投資をお考えの方に、この機会にぜひご検討いただきたい物件です。詳細はお気軽にお問い合わせください。
| 価格 |
1億1,000万円
利回り9.89%
満室時想定年収:1,088万円
|
|---|---|
| 住所 | 北海道函館市千代台町1番21号 |
| 交通 | 堀川町駅(徒歩2分)道順を見る |
| 築年月 | 築35年(1990年10月) |
| 構造 | 鉄骨造 |
| 面積 | 建物:789.29m² (238.76坪)/ 土地:279.82m² (84.64坪)(公簿) |
| 現況 | 総戸数24戸中 21戸賃貸中 |
販売状況、見学、詳細を知りたい方はこちら!
お電話の際は「連合隊の物件」とお伝えください。
情報掲載期限:あと10日(更新日 2025/11/17)
- 物件写真・概要
- 周辺地図
-
販売状況、見学、詳細を知りたい方はこちら!
おすすめポイント
- 駅徒歩3分以内
交通色がついているアイコンをクリックすると、本物件までの道順を見ることができます。
物件概要
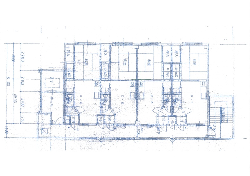
建物の階建 地上6階建 間取り 1DK×24戸 駐車場 あり ※契約者負担料金:6,000円/台 駐車場台数:8台駐車場は現地要確認です
接道状況 一方 - 東側幅11.00mの公道に接道
都市計画区域 市街化区域 用途地域 私道負担 なし 地目/地勢 宅地 地勢:平坦 国土法届出 不要 土地権利 所有権 その他費用 毎月の費用 - 防犯カメラ・定期清掃・電気料等:9万円
引渡し 相談 取引態様 仲介 物件No 仲介手数料概算 369万6,000円(金額は概算です。正確な金額は不動産会社へお問合せ下さい) 修繕履歴 - 2014年4月頃に物件全体を部分的にリフォームしています。施工内容:外壁張替 物置新設 エレベーター改修等
設備・特徴 - エレベーター
- バス/トイレ別
- その他インターネット
備考 現在、月決め駐車場で使用している土地の購入価格も価格に含んでいます。 主な周辺施設色がついているアイコンをクリックすると、本物件までの道順を見ることができます。
-
※連合隊は物件情報の精度向上に努めています:「物件情報に誤りがある」「成約済みである」などお気付きの点がございましたらこちらよりご連絡ください。
写真枚数:13枚
1階~6階まで同形です
歴史の街 函館の不動産のことお任せください
はじめまして「株式会社レイホーム」です 小さな不動産屋ですが皆様のお力に少しでもご協力できるよう 一生懸命頑張りますのでどうぞよろしくお願い致します。