北斗市七重浜8丁目食品工場
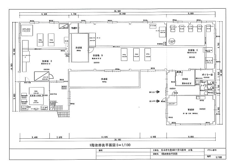
ここに注目!北斗市七重浜に、食品工場が【大幅値下げ】で登場!延床面積約873㎡、敷地面積約1300㎡の広大な鉄骨造2階建て工場です。道南いさりび鉄道線 東久根別駅まで徒歩15分。工業地域に位置し、事業活動に適した環境が魅力です。 冷凍冷蔵設備をはじめ、食品工場運営に必要な専門設備が導入済み、また従業員寮も備わっており、すぐにでも稼働る体制が整っています。広々とした駐車場も確保され、物流動線も良好です。周辺には銀行、コンビニ、ショッピング施設も充実し、利便性も兼ね備えています。新規事業や移転・拡張をご検討の企業様に、ぜひ現地でその可能性をご体感ください。お問い合わせをお待ちしております。
| 価格 |
6,200万円
|
|---|---|
| 建物面積 | 873.89m² (264.35坪) |
| 土地面積 | 1300.22m² (393.31坪)(公簿) |
| 住所 | 北海道北斗市七重浜8-12-10 |
| 交通 | 東久根別駅(徒歩15分)道順を見る |
| 築年月 | 築38年(1987年9月) |
| 駐車場 |
あり
|
| 用途地域 |
|
販売状況、見学、詳細を知りたい方はこちら!
お電話の際は「連合隊の物件」とお伝えください。
情報掲載期限:あと15日(更新日 2025/12/3)
- 物件写真・概要
- 周辺地図
-
販売状況、見学、詳細を知りたい方はこちら!
おすすめポイント
- 駐車場あり
- 事務所付
交通色がついているアイコンをクリックすると、本物件までの道順を見ることができます。
物件概要
建物の階建 地上2階建 主要採光面 南 構造 鉄骨造 接道状況 角地 - 北側幅7.90mの道に接道
- 西側幅7.90mの道に接道
都市計画区域 市街化区域 私道負担 なし 地目/地勢 宅地 地勢:平坦 国土法届出 不要 土地権利 所有権 用途地域 - 工業地域(建ぺい率:60% / 容積率:200%)
引渡し 相談 現況 その他 取引態様 仲介 物件No 仲介手数料概算 211万2,000円(金額は概算です。正確な金額は不動産会社へお問合せ下さい) 設備・特徴 - ガス設備
- 給排水設備
- 事務所付
備考 主な周辺施設色がついているアイコンをクリックすると、本物件までの道順を見ることができます。
-

この物件の担当者 平川 真丈(ひらかわ まさたけ)
よろしくお願いいたします。
※連合隊は物件情報の精度向上に努めています:「物件情報に誤りがある」「成約済みである」などお気付きの点がございましたらこちらよりご連絡ください。
写真枚数:22枚
函館市内賃貸マンション・貸家・事業用地をお探しならマルエイプロパティマネジメント函館支社へ
マルエイプロパティマネジメント函館支社はグループ企業:創業1885年の老舗及能株式会社の物件を主に取り扱っております。賃貸・貸家・事業用地などお探しの物件ございましたら、お気軽にお問い合わせください。