七飯町大中山2丁目建売
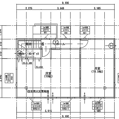
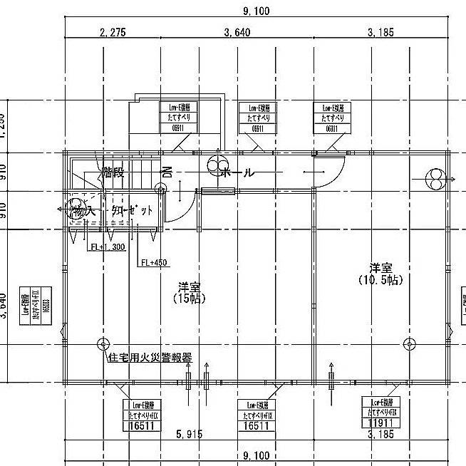
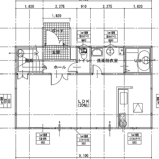
ここに注目!七飯町大中山2丁目に、待望の新築一戸建てが販売中です! 2LDKの間取りは、ご家族でゆったりと過ごせる99.36㎡の建物面積。明るいリビングは日当たりもよく、開放的な角地で心地よい暮らしを実感できます。 設備も充実しており、システムキッチン、3口コンロ、広々1坪以上の浴室、温水洗浄トイレ、シャワー付洗面化粧台など、日々の快適さをサポート。全居室収納に加え、納戸やシューズボックスもあり、収納力も期待できます。お車2台分の駐車スペースも確保されています。 周辺環境は、大中山小学校まで徒歩9分、大中山中学校まで徒歩10分、大中山保育所まで徒歩6分と、お子様の通学・通園に配慮された立地です。JR函館本線 大中山駅までは徒歩19分。コンビニや郵便局、銀行なども近く、生活利便性も良好です。 ご内覧はご予約にて承っております。この機会に、ぜひ現地で住まいをご体感ください。お気軽にお問い合わせをお待ちしております!
| 価格 |
2,635万円
|
|---|---|
| 建物面積 | 99.36m² (30.05坪) |
| 土地面積 | 165.5m² (50.06坪)(公簿) |
| 間取り | 2LDK |
| 住所 | 北海道亀田郡七飯町大中山2-402-43 |
| 交通 | 大中山駅(徒歩19分)道順を見る |
| 築年月 | 築1年未満(2025年8月) |
| 駐車場 |
あり 駐車可能台数:2台
|
販売状況、見学、詳細を知りたい方はこちら!
お電話の際は「連合隊の物件」とお伝えください。
情報掲載期限:あと24日(更新日 2026/5/19)
- 物件写真・概要
- 周辺地図
-
販売状況、見学、詳細を知りたい方はこちら!
おすすめポイント
- 築3年以内
- 駐車2台以上可
- 角地
交通色がついているアイコンをクリックすると、本物件までの道順を見ることができます。
物件概要
建物の階建 地上2階建 主要採光面 構造 木造(在来工法) 接道状況 三方 - 北側幅6.00mの公道に接道
- 西側幅6.00mの公道に接道
- 南側幅4.00mの私道に接道
都市計画区域 市街化区域 私道負担 地目/地勢 宅地 地勢:平坦 国土法届出 土地権利 所有権 用途地域 - 第1種中高層住居専用地域(建ぺい率:60% / 容積率:200%)
引渡し 相談 現況 空き 施工業者 カワマタビルド株式会社 建築確認番号 HJK233587-1号 取引態様 仲介 物件No 仲介手数料概算 仲介手数料は頂きません 設備・特徴 - 角地
- 整形地
- 日当り良好
- 照明器具付
- 3面採光
- 納戸・トランクルーム
- 全居室収納あり
- シューズボックス
- LPガス
- システムキッチン
- モニタ付インターホン
- シャワー付洗面化粧台
- 温水洗浄トイレ
- 浴室1坪以上
- ガス暖房
- コンロ3口以上
備考 学区色がついているアイコンをクリックすると、本物件までの道順を見ることができます。
主な周辺施設色がついているアイコンをクリックすると、本物件までの道順を見ることができます。
-
ホームページはこちら
北海道知事 渡島(1) 第1216号
(株)アールホーム- 加入団体
- (公社)全日本不動産協会
- 保証協会
- (公社)不動産保証協会
- 公正取引協議会
- (一社)北海道不動産公正取引協議会
※連合隊は物件情報の精度向上に努めています:「物件情報に誤りがある」「成約済みである」などお気付きの点がございましたらこちらよりご連絡ください。
写真枚数:26枚
アールホーム七飯駅前店では、主に七飯町の土地、中古住宅の売買仲介、リフォームを手掛けております。
アールホーム七飯駅前店は、地域に密着した不動産会社です。賃貸物件から新築、中古戸建の売買、無料査定は随時受け付けております。詳しくはお電話、メールでお問い合わせください。ご相談は無料です。