青柳町売マンション
ここに注目!函館の海を望む開放的な暮らしを叶える「青柳町売マンション」のご紹介です! 函館市電「谷地頭駅」「青柳町駅」までそれぞれ徒歩6分という駅近の立地。通勤・通学はもちろん、観光地へのアクセスも軽快です。 6階部分に位置する東向きの住戸からは、心癒されるオーシャンビューが広がります。バルコニーで潮風を感じながら、美しい景色を毎日お楽しみいただけます。 広々15.8帖のLDKを中心に、和室6帖と洋室2部屋を備えた使いやすい3LDK(67.22㎡)。システムキッチンや温水洗浄トイレ、都市ガス・ガス暖房といった設備も整い、快適な毎日をサポートします。オートロック付きで防犯面も配慮されており、日勤の管理人さんも安心感を高めてくれます。 徒歩3分で広大な函館公園、徒歩7分で小学校、徒歩9分で中学校があり、子育て世代にも適した閑静な住宅街です。 価格は750万円。海辺のロケーションと利便性を兼ね備えた住まいで、新しい生活をスタートしませんか?ぜひ一度、この眺望と空間を現地でご体感ください!
| 価格 |
750万円
坪単価:約36.9万円/坪
管理費1万4,480円/月修繕積立金7,210円/月
|
|---|---|
| 間取・専有 |
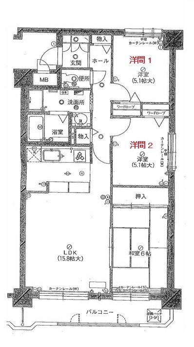
3LDK(67.22m²)└ LDK15.8帖 和室6帖 洋室5.1帖 洋室5.1帖
|
| 住所 | 北海道函館市青柳町1-13 |
| 交通 | 谷地頭駅(徒歩6分)|青柳町駅(徒歩6分)道順を見る |
| 築年月 | 築35年(1990年2月) |
| 駐車場 |
空き待ち
|
販売状況、見学、詳細を知りたい方はこちら!
お電話の際は「連合隊の物件」とお伝えください。
情報掲載期限:あと21日(更新日 2025/11/28)
- 物件写真・概要
- 周辺地図
-
販売状況、見学、詳細を知りたい方はこちら!
おすすめポイント
- 都市ガス
- 2階以上
- オートロック
- エレベーター
- 近くて便利!徒歩5分以内にある施設
- 5分
5分- 周辺施設を地図で確認
交通色がついているアイコンをクリックすると、本物件までの道順を見ることができます。
物件概要
所在階/建物の階建 6階(606) / 地上8階建 総戸数 主要採光面 東 構造 鉄筋コンクリート(RC)造 バルコニー あり土地権利 所有権 その他費用 その他 - 共用部保険:990円
引渡し 相談 現況 空き 管理人 日勤 管理形態 一部委託 管理組合 有 取引態様 仲介 物件No 20250912A 仲介手数料概算 33万円(金額は概算です。正確な金額は不動産会社へお問合せ下さい) 設備・特徴 - 閑静な住宅街
- エレベーター
- 照明器具付
- 室内洗濯機置場
- シューズボックス
- 温水洗浄トイレ
- システムキッチン
- 都市ガス
- ガス暖房
- オートロック
- オーシャンビュー(海が見える立地)
備考 学区色がついているアイコンをクリックすると、本物件までの道順を見ることができます。
主な周辺施設色がついているアイコンをクリックすると、本物件までの道順を見ることができます。
対象となりうる支援制度
函館市
支援制度に関するお問合せは、不動産会社ではなく、自治体の公式ページまたは担当課までご確認ください。
上記リンクは、支援制度の対象条件を一定以上満たした物件に対し自動表示しています。
-
ホームページはこちら
北海道知事 渡島(14) 第283号
(有)日昇商事
※連合隊は物件情報の精度向上に努めています:「物件情報に誤りがある」「成約済みである」などお気付きの点がございましたらこちらよりご連絡ください。
写真枚数:8枚
「 歴史ある街に豊かさと潤いを 」
不動産全般のご相談承ります。