桔梗1丁目二世帯も可能住宅
ここに注目!函館市桔梗1丁目、広々とした敷地と住空間が魅力の一戸建てが登場です!函館バス「桔梗小学校前」停まで徒歩2分と、日々の通勤・通学に便利な立地です。 6LDKの間取りは、二世帯住宅としてもご検討いただけるゆとりがあります。広々20帖のLDKはご家族の団らんにぴったり。全居室収納に加えて納戸・トランクルーム、物置も完備し、豊富な収納力で住空間をすっきりと保てます。 システムキッチン(コンロ3口以上)やトイレ2ヶ所以上(温水洗浄トイレ)、シャワー付洗面化粧台など水回り設備も充実。寒い季節も安心の灯油暖房・灯油ボイラーを完備しています。 ゆとりの駐車スペースは4台分あり、来客時も安心。車庫+作業場も利用可能です。 お買い物はハセガワストアへ徒歩2分、函館蔦屋書店も徒歩9分圏内と生活施設が近くに揃っています。桔梗小学校まで徒歩4分で、お子様の通学も安心の距離。 閑静な住宅街で、日当たり良好なこの住まいで、新しい暮らしを始めてみませんか? 現在入居中のため、内覧は要確認です。まずはお気軽にお問い合わせください!
| 価格 |
2,480万円
|
|---|---|
| 建物面積 | 199.4m² (60.31坪) |
| 土地面積 | 564m² (170.61坪)(公簿) |
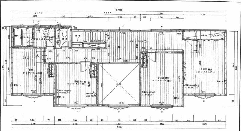
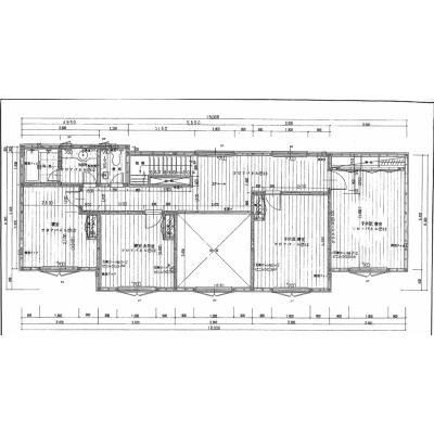
| 間取り | 6LDK1階:LDK20帖 その他8帖 その他7.5帖 / 2階:洋室12帖 洋室10帖 洋室8帖 洋室7.5帖 |
| 住所 | 北海道函館市桔梗1-5-4 |
| 交通 | 函館バス 「桔梗小学校前」停(徒歩2分) |
| 築年月 | 築30年(1996年1月) |
| 駐車場 |
あり 駐車可能台数:4台
|
【WEB面談可】
販売状況、見学、詳細を知りたい方はこちら!
お電話の際は「連合隊の物件」とお伝えください。
情報掲載期限:あと19日(更新日 2026/4/14)
- 物件写真・概要
- 周辺地図
-
【WEB面談可】
販売状況、見学、詳細を知りたい方はこちら!おすすめポイント
- 駐車2台以上可
- 車庫あり
- 南向き
- 近くて便利!徒歩5分以内にある施設
- 2分
2分- 4分
4分- 周辺施設を地図で確認
交通
- 函館バス 「桔梗小学校前」停徒歩2分
物件概要
建物の階建 地上2階建 主要採光面 南 構造 木造 接道状況 一方 - 南側幅7.00mの公道に4.00m接道
都市計画区域 市街化区域 私道負担 なし 地目/地勢 宅地 地勢:平坦 国土法届出 不要 土地権利 所有権 用途地域 - 第1種住居地域(建ぺい率:60% / 容積率:200%)
引渡し 相談 現況 入居中(現在入居中の為、内覧要確認。) 建築確認番号 第1168号 取引態様 仲介 物件No 仲介手数料概算 88万4,400円(金額は概算です。正確な金額は不動産会社へお問合せ下さい) 設備・特徴 - 閑静な住宅街
- タイル貼り
- 3面採光
- 日当り良好
- 照明器具付
- 納戸・トランクルーム
- シューズボックス
- 全居室収納あり
- 温水洗浄トイレ
- トイレ2ヶ所以上
- シャワー付洗面化粧台
- コンロ3口以上
- システムキッチン
- LPガス
- 物置
- 灯油暖房
- 車庫あり
- 灯油ボイラー
備考 学区色がついているアイコンをクリックすると、本物件までの道順を見ることができます。
主な周辺施設色がついているアイコンをクリックすると、本物件までの道順を見ることができます。
- ハセガワストア桔梗店約147m(徒歩2分)
- 青森みちのく銀行ききょう支店約399m(徒歩5分)
- セイコーマート桔梗町南店約456m(徒歩6分)
- スターバックスコーヒー函館蔦屋書店約690m(徒歩9分)
- カルディコーヒーファーム函館蔦屋書店約689m(徒歩9分)
- ファミリーマート函館蔦屋書店約696m(徒歩9分)
- ツルハドラッグ函館桔梗南店約665m(徒歩9分)
- アベイル桔梗店約773m(徒歩10分)
- 函館流通センター内簡易郵便局約1.6km(徒歩20分)
- Seria函館桔梗店約828m(徒歩11分)
対象となりうる支援制度
函館市
支援制度に関するお問合せは、不動産会社ではなく、自治体の公式ページまたは担当課までご確認ください。
上記リンクは、支援制度の対象条件を一定以上満たした物件に対し自動表示しています。
-
※連合隊は物件情報の精度向上に努めています:「物件情報に誤りがある」「成約済みである」などお気付きの点がございましたらこちらよりご連絡ください。
写真枚数:8枚
函館市近郊、札幌市内の不動産の事ならヤマシンホーム株式会社へ!
私たちは、お客様の喜びや感動の為に、常にお客様の立場になって、考え行動します。お客様の満足と安心を築き、情報を適切に開示します。