乃木町事業用
ここに注目!価格変更!!函館市乃木町に、ビジネスの可能性を広げる一棟物件がご案内です。 函館市電「深堀町」駅まで徒歩8分、函館バス「自衛隊前」停へは徒歩1分と、お客様や従業員にも便利な好立地。幹線道路沿いの角地に位置し、視認性も良好で集客力も期待できます。 約238㎡のゆとりのある空間は、喫茶・カフェなどの軽飲食、教育・スクール、事務所、または介護・福祉施設など、幅広い事業用途に対応可能です。周辺には複数の専門学校や幼稚園が点在し、地域との連携も期待できるでしょう。 無料駐車場5台完備で、お車でのアクセスもスムーズ。灯油暖房や給排水設備に加え、24時間利用可能なため、多様な働き方にも柔軟に対応できます。現在の賃貸契約は2025年11月末に満了予定。じっくりと準備期間を設け、新たなビジネスの拠点としてご検討いただけます。 この機会に、函館市乃木町で理想の事業空間を見つけませんか?詳細はお気軽にお問い合わせください。
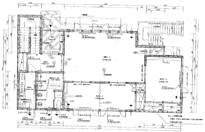
この物件は 介護・福祉施設 の居抜き物件です。
現状の設備が残されたまま取引されるため、初期費用を抑え速やかに事業を開始できるメリットがあります。
| 価格 |
2,500万円
|
|---|---|
| 建物面積 | 238.54m² (72.15坪) |
| 土地面積 | 288.16m² (87.16坪)(公簿) |
| 住所 | 北海道函館市乃木町北海道函館市乃木町5-21 |
| 交通 | 深堀町駅(徒歩8分)|函館バス 「自衛隊前」停(徒歩1分)道順を見る |
| 築年月 | 築18年(2007年3月) |
| 駐車場 |
あり 駐車可能台数:5台
|
| 用途地域 |
|
【WEB面談可】
販売状況、見学、詳細を知りたい方はこちら!
お電話の際は「連合隊の物件」とお伝えください。
情報掲載期限:あと14日(更新日 2025/12/2)
- 物件写真・概要
- 周辺地図
-
【WEB面談可】
販売状況、見学、詳細を知りたい方はこちら!おすすめポイント
- 複数路線利用可
- 駐車2台以上可
- 出店するなら…この業種がおすすめ!
- 飲食全般(重飲食含む)

- 喫茶・カフェ(軽飲食)

- バー・クラブ・スナック

- 小売・物販

- 美容・健康・介護

- 医療

- 教育・スクール

- 事務所

- アミューズメント

交通色がついているアイコンをクリックすると、本物件までの道順を見ることができます。
- 深堀町駅函館市電5系統、函館市電2系統徒歩8分(約616m)
- 函館バス 「自衛隊前」停徒歩1分
物件概要
建物の階建 地上2階建 総戸数 1戸 主要採光面 南東 構造 木造 居抜き情報 [介護・福祉施設] の居抜き接道状況 角地 - 南東側幅25.00mの公道に11.70m接道
- 北東側幅15.00mの公道に15.59m接道
都市計画区域 市街化区域 私道負担 なし 地目/地勢 宅地 地勢:平坦 国土法届出 不要 土地権利 所有権 用途地域 - 準住居地域(建ぺい率:60% / 容積率:200%)
引渡し 相談 現況 入居中(現在賃貸中 2025年11月末空予定) 建築確認番号 第1H18確認建築函館建指00946号 取引態様 仲介 物件No 仲介手数料概算 89万1,000円(金額は概算です。正確な金額は不動産会社へお問合せ下さい) 設備・特徴 - 複数路線利用可
- 幹線道路沿い
- 給排水設備
- 灯油暖房
- 24時間利用可
備考 建物は現状渡しとなります。設備は現状渡しとなります。【灯油ボイラー・セントラルヒーティング(灯油)・システムキッチン(ガスコンロ)・ミニキッチン(電気コンロ・インターフォン・トイレ(子供用・大人用)】 ※内観写真と現在は内装等変更になっている場合がございます。 主な周辺施設色がついているアイコンをクリックすると、本物件までの道順を見ることができます。
-
※連合隊は物件情報の精度向上に努めています:「物件情報に誤りがある」「成約済みである」などお気付きの点がございましたらこちらよりご連絡ください。
写真枚数:24枚
函館市近郊、札幌市内の不動産の事ならヤマシンホーム株式会社へ!
私たちは、お客様の喜びや感動の為に、常にお客様の立場になって、考え行動します。お客様の満足と安心を築き、情報を適切に開示します。