コンフォール16 【満室稼働中 3LDK×6戸】
ここに注目!北海道亀田郡七飯町鳴川に佇む「コンフォール16」は、安定した収益が期待できる魅力的な一棟アパートです。現在、全室満室稼働中で、表面利回り8.5%、想定年間収入468万円と、投資物件として大変魅力的な条件が揃っています。 函館バス「桜岡」停まで徒歩4分と、毎日の通勤・通学にも便利な立地。周辺にはスーパーアークス七飯店(徒歩3分)やDCMニコット七飯店(徒歩5分)など、生活に欠かせない施設が充実しており、入居者様にとっても暮らしやすい環境が整っています。 全6戸がゆったりとした3LDKの間取りで、ご家族での新生活にもぴったり。南東向きのお部屋が多く、明るい光が差し込む心地よい空間が広がります。敷地内には12台分の駐車場も完備しており、お車をお持ちの方にも安心してお住まいいただけます。 この機会に、ぜひ「コンフォール16」をご検討ください。新たなオーナー様との出会いを心よりお待ちしております。
| 価格 |
5,500万円
利回り8.5%
満室時想定年収:468万円
|
|---|---|
| 住所 | 北海道亀田郡七飯町鳴川3丁目1番16号 |
| 交通 | 七飯駅(徒歩16分)|函館バス 「桜岡」停(徒歩4分)道順を見る |
| 築年月 | 築9年(2016年10月) |
| 構造 | 木造 |
| 面積 | 建物:417.68m² (126.34坪)/ 土地:606.84m² (183.56坪)(公簿) |
| 現況 | 現在満室(総戸数6戸中 6戸賃貸中) |
販売状況、見学、詳細を知りたい方はこちら!
お電話の際は「連合隊の物件」とお伝えください。
情報掲載期限:あと26日(更新日 2026/2/20)
- 物件写真・概要
- 周辺地図
-
販売状況、見学、詳細を知りたい方はこちら!
おすすめポイント
- 現在満室
- 築10年以内
- 土地100坪超
- 戸数分駐車場あり
交通色がついているアイコンをクリックすると、本物件までの道順を見ることができます。
- 七飯駅JR函館本線徒歩16分(約1.3km)
- 函館バス 「桜岡」停徒歩4分(約230m)
物件概要
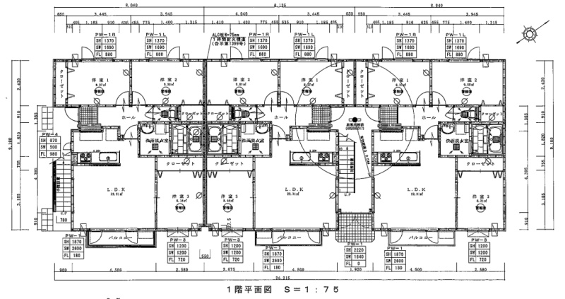
建物の階建 地上2階建 間取り 3LDK×6戸 駐車場 あり 駐車場台数:12台接道状況 二方(除角地) - 南西側幅5.10mの公道に20.25m接道
- 北東側幅18.10mの公道に19.94m接道
都市計画区域 市街化区域 用途地域 - 第1種住居地域(建ぺい率:60% / 容積率:200%)
私道負担 なし 地目/地勢 宅地 地勢:平坦 国土法届出 不要 土地権利 所有権 引渡し 相談 取引態様 仲介 物件No 仲介手数料概算 177万1,473円(金額は概算です。正確な金額は不動産会社へお問合せ下さい) 設備・特徴 備考 主な周辺施設色がついているアイコンをクリックすると、本物件までの道順を見ることができます。
-
※連合隊は物件情報の精度向上に努めています:「物件情報に誤りがある」「成約済みである」などお気付きの点がございましたらこちらよりご連絡ください。
写真枚数:10枚
昭和28年8月の創業
賃貸事業に加え、オフィスビル・賃貸マンション・分譲マンションの管理業務と、本社の他、旭川・函館・苫小牧・帯広・北見・釧路の道内6支店のネットワークをフルに活用した不動産仲介・斡旋業務を展開しています。