元町戸建て(伝統的建造物)
ここに注目!函館市元町に佇む、歴史と趣を感じさせる「元町戸建て」のご紹介です。伝統的建造物ならではの風格が、日々の暮らしに特別な彩りを添えてくれます。広々とした5DKの間取りは、112.39m²の建物面積と191.03m²のゆとりのある土地面積を誇り、ご家族でのびのびと暮らしたい方にぴったり。広いお庭でガーデニングを楽しんだり、お子様と遊んだりするのも素敵ですね。 函館市電「末広町」駅まで徒歩5分とアクセスも良好。旧相馬邸や元町公園へは徒歩2分、幼稚園も徒歩圏内にあり、歴史的な街並みを散策したり、お子様とのびのび過ごしたりと、豊かな日常が待っています。高台に位置しているため、開放感も感じていただけます。 都市ガスやシャワー付洗面化粧台、灯油ボイラーといった設備も整っており、快適な毎日をサポート。伝統的建造物であるため、増改築には許可申請が必要ですが、補助金制度もございます。飲食店や小売店、宿泊施設などへの改装も視野に入れることができ、新たな挑戦の場としてもご検討いただけます。 函館の歴史と文化に触れる豊かな暮らしを始めてみませんか。ぜひ一度、現地でその魅力を体感してください!
| 価格 |
2,000万円
|
|---|---|
| 建物面積 | 112.39m² (33.99坪) |
| 土地面積 | 191.03m² (57.78坪)(公簿) |
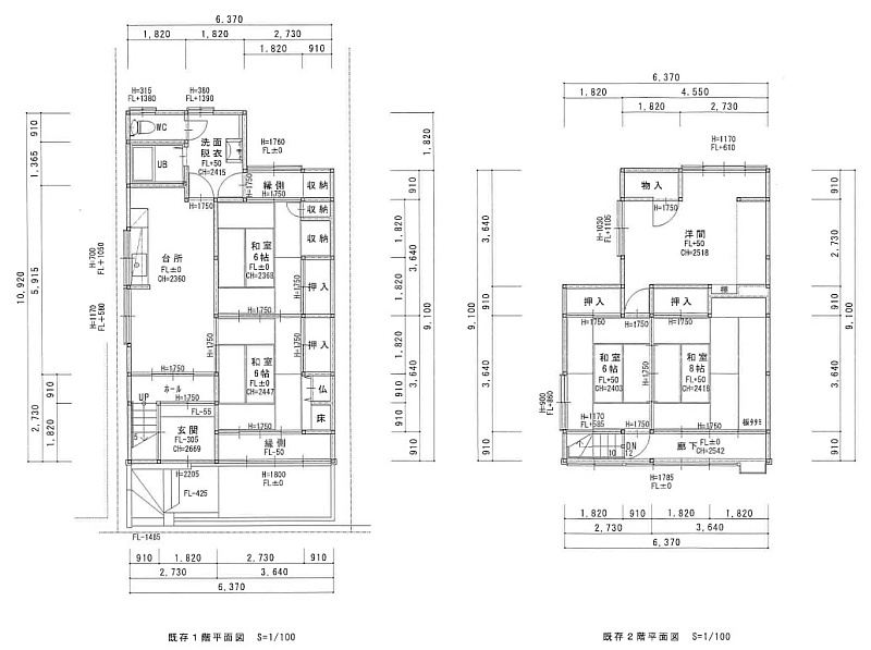
| 間取り | 5DK1階:DK9.5帖 和室6帖 和室6帖 / 2階:洋室9.5帖 和室8帖 和室6帖 |
| 住所 | 北海道函館市元町10-11 |
| 交通 | 末広町駅(徒歩5分)道順を見る |
| 築年月 | 築103年(1922年4月) |
| 駐車場 |
なし
|
【WEB面談可】
販売状況、見学、詳細を知りたい方はこちら!
お電話の際は「連合隊の物件」とお伝えください。
情報掲載期限:あと17日(更新日 2026/2/11)
- 物件写真・概要
- 周辺地図
-
【WEB面談可】
販売状況、見学、詳細を知りたい方はこちら!おすすめポイント
- 即引渡し可
- 都市ガス
- 駅徒歩5分以内
- 近くて便利!徒歩5分以内にある施設
- 2分
2分- 3分
3分- 周辺施設を地図で確認
交通色がついているアイコンをクリックすると、本物件までの道順を見ることができます。
物件概要
建物の階建 地上2階建 主要採光面 構造 木造 接道状況 二方(除角地) - 北東側幅6.50mの公道に7.30m接道
- 南西側幅8.00mの公道に7.30m接道
都市計画区域 市街化区域 私道負担 地目/地勢 宅地 地勢:高台 国土法届出 土地権利 所有権 用途地域 - 第2種中高層住居専用地域(建ぺい率:60% / 容積率:200%)
引渡し 即時 現況 空き 取引態様 仲介 物件No 仲介手数料概算 72万6,000円(金額は概算です。正確な金額は不動産会社へお問合せ下さい) 設備・特徴 - 庭が広い(10坪以上)
- シャワー付洗面化粧台
- 都市ガス
- 灯油ボイラー
備考 ※築年月の月はシステム上、仮に入力していますが月は不明です。 ※現状渡し。契約不適合責任免責。 ※伝統的建造物の為、増築・改築等は許可申請が必要となります。(補助金有り)。飲食店・小売店・展示場・宿泊施設等に改装する場合、補助金を利用できる場合があります。詳細はお問い合わせください。 ※当物件の用途地域が第2種中高層住居専用地域のため、民泊での利用は制限がかかり年間50~60日稼働になります。 学区色がついているアイコンをクリックすると、本物件までの道順を見ることができます。
主な周辺施設色がついているアイコンをクリックすると、本物件までの道順を見ることができます。
- 旧相馬邸約145m(徒歩2分)
- 元町公園約145m(徒歩2分)
- 北海道函館西高校約328m(徒歩5分)
- 認定こども園遺愛幼稚園約220m(徒歩3分)
- 函館ハリストス正教会の鐘約226m(徒歩3分)
- 認定こども園元町白百合幼稚園約320m(徒歩4分)
- コープさっぽろ末広西店約610m(徒歩8分)
- 函館山ロープウェイ約551m(徒歩7分)
- ツルハドラッグ函館大町店約671m(徒歩9分)
- 医療法人尚仁会竹田病院約630m(徒歩8分)
対象となりうる支援制度
函館市
支援制度に関するお問合せは、不動産会社ではなく、自治体の公式ページまたは担当課までご確認ください。
上記リンクは、支援制度の対象条件を一定以上満たした物件に対し自動表示しています。
-
ホームページはこちら
北海道知事 渡島(2) 第1181号
つなぐ賃貸 (株)ベネフィット 【WEB面談可】- 加入団体
- (公社)北海道宅地建物取引業協会、(公財)日本賃貸住宅管理協会
- 保証協会
- (公社)全国宅地建物取引業保証協会
- 公正取引協議会
- 未加盟
※連合隊は物件情報の精度向上に努めています:「物件情報に誤りがある」「成約済みである」などお気付きの点がございましたらこちらよりご連絡ください。
写真枚数:30枚
函館近郊の住み替えなら地元密着の【つなぐ賃貸】へ(#^.^#)
住み替えや転勤など、賃貸物件をお探しなら市内近郊に多数の管理物件を揃える当社へ!人と人とのつながりを大切にするスタッフを頼って大家様や一度利用したことのあるリピーターや紹介客が多いのが当社の特徴です!