元町戸建て(伝統的建造物)
ここに注目!函館市元町、歴史が薫る「伝統的建造物」の戸建てをご紹介します。 函館市電5系統「末広町」駅まで徒歩5分!高台に位置し、観光名所が集まる元町エリアにありながら、生活の利便性も良好です。 約57坪の広々とした敷地に建つ、ゆとりの5DK。和室と洋室をバランス良く配した間取りは、多様なライフスタイルに対応します。広い庭(10坪以上)では、ガーデニングや趣味の空間づくりが楽しめます。 都市ガス、シャワー付洗面化粧台、灯油ボイラーなど、快適な生活をサポートする設備も充実。 元町公園まで徒歩2分、旧相馬邸へ徒歩3分と、歴史的建造物に囲まれた風情ある暮らしが実現します。 「伝統的建造物」ならではの重厚感と、函館元町という特別なロケーションが織りなす住まい。 この特別な場所で、新たな歴史を刻んでみませんか?ぜひ現地でその魅力をご体感ください。 ご案内のお問い合わせはTEL0138-76-9191【株式会社ベネフィット】にお任せくださいませ (*^^*)
| 価格 |
2,000万円
|
|---|---|
| 建物面積 | 112.39m² (33.99坪) |
| 土地面積 | 191.03m² (57.78坪)(公簿) |
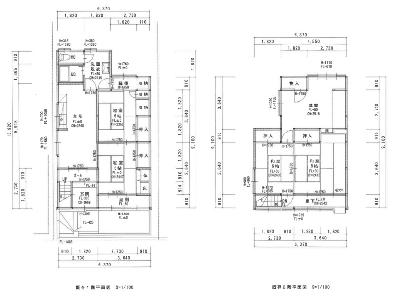
| 間取り | 5DK1階:DK9.5帖 和室6帖 和室6帖 / 2階:洋室9.5帖 和室8帖 和室6帖 |
| 住所 | 北海道函館市元町10-11 |
| 交通 | 末広町駅(徒歩5分)道順を見る |
| 築年月 | 築103年(1922年4月) |
| 駐車場 |
なし
|
【WEB面談可】
販売状況、見学、詳細を知りたい方はこちら!
お電話の際は「連合隊の物件」とお伝えください。
情報掲載期限:あと24日(更新日 2025/12/1)
- 物件写真・概要
- 周辺地図
-
【WEB面談可】
販売状況、見学、詳細を知りたい方はこちら!おすすめポイント
- 都市ガス
- 駅徒歩5分以内
- 近くて便利!徒歩5分以内にある施設
- 4分
4分- 2分
2分- 4分
4分- 周辺施設を地図で確認
交通色がついているアイコンをクリックすると、本物件までの道順を見ることができます。
物件概要
建物の階建 地上2階建 主要採光面 構造 木造 接道状況 一方 - 南東側幅6.50mの公道に7.20m接道
都市計画区域 市街化区域 私道負担 地目/地勢 宅地 地勢:高台 国土法届出 土地権利 所有権 用途地域 - 第2種中高層住居専用地域(建ぺい率:60% / 容積率:200%)
引渡し 相談 現況 空き 取引態様 仲介 物件No 仲介手数料概算 72万6,000円(金額は概算です。正確な金額は不動産会社へお問合せ下さい) 設備・特徴 - 庭が広い(10坪以上)
- シャワー付洗面化粧台
- 都市ガス
- 灯油ボイラー
- 高台に立地
備考 ※築年月の月はシステム上、仮に入力していますが月は不明です。 ※現状渡し。契約不適合責任免責。 ※伝統的建造物の為、増築・改築等は許可申請が必要となります。(補助金有り) 学区色がついているアイコンをクリックすると、本物件までの道順を見ることができます。
主な周辺施設色がついているアイコンをクリックすると、本物件までの道順を見ることができます。
- 旧相馬邸約169m(徒歩3分)
- 元町公園約159m(徒歩2分)
- 北海道函館西高校約383m(徒歩5分)
- 認定こども園遺愛幼稚園約251m(徒歩4分)
- 社会医療法人高橋病院約294m(徒歩4分)
- 函館ハリストス正教会の鐘約237m(徒歩3分)
- 認定こども園元町白百合幼稚園約369m(徒歩5分)
- 東本願寺函館別院約380m(徒歩5分)
- ハセガワストアベイエリア店約554m(徒歩7分)
- コープさっぽろ末広西店約629m(徒歩8分)
対象となりうる支援制度
函館市
支援制度に関するお問合せは、不動産会社ではなく、自治体の公式ページまたは担当課までご確認ください。
上記リンクは、支援制度の対象条件を一定以上満たした物件に対し自動表示しています。
-
ホームページはこちら
北海道知事 渡島(2) 第1181号
つなぐ賃貸 (株)ベネフィット 【WEB面談可】- 加入団体
- (公社)北海道宅地建物取引業協会、(公財)日本賃貸住宅管理協会
- 保証協会
- (公社)全国宅地建物取引業保証協会
- 公正取引協議会
- 未加盟
※連合隊は物件情報の精度向上に努めています:「物件情報に誤りがある」「成約済みである」などお気付きの点がございましたらこちらよりご連絡ください。
写真枚数:30枚
函館近郊の住み替えなら地元密着の【つなぐ賃貸】へ(#^.^#)
住み替えや転勤など、賃貸物件をお探しなら市内近郊に多数の管理物件を揃える当社へ!人と人とのつながりを大切にするスタッフを頼って大家様や一度利用したことのあるリピーターや紹介客が多いのが当社の特徴です!