北斗市常盤3丁目 売土地【解体更地渡し】
ここに注目!建築条件のない広々100.98坪の売り土地です!現在は建物がありますが解体更地渡しでの引き渡しになります! ご案内のお問い合わせはTEL0138-76-9191【株式会社ベネフィット】にお任せくださいませ (^-^)
| 価格 |
500万円
坪単価:約5.0万円/坪
|
|---|---|
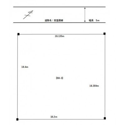
| 土地面積 | 333.85m² (100.98坪)(公簿) |
| 住所 | 北海道北斗市常盤3-4-29(地番68-3) |
| 交通 | 上磯駅(徒歩2分)|新函館北斗駅(徒歩143分) |
| 現況 | 建物付き(更地渡し可能) |
| 建築条件 | なし |
| 用途地域 |
|
【WEB面談可】
販売状況、見学、詳細を知りたい方はこちら!
お電話の際は「連合隊の物件」とお伝えください。
情報掲載期限:あと24日(更新日 2025/12/1)
- 物件写真・概要
- 周辺地図
-
【WEB面談可】
販売状況、見学、詳細を知りたい方はこちら!おすすめポイント
- 建築条件なし
- 上下水道
- 電気
- 駅徒歩3分以内
交通色がついているアイコンをクリックすると、本物件までの道順を見ることができます。
物件概要
販売区画数/
総区画数-/- 接道状況 一方 - 北西側幅5.00mの公道に18.10m接道
都市計画区域 市街化区域 私道負担 なし 地目/地勢 宅地 地勢:平坦 国土法届出 不要 土地権利 所有権 用途地域 - 第1種中高層住居専用地域(建ぺい率:60% / 容積率:200%)
引渡し 相談 現況 建物付き(更地渡し可能) 取引態様 仲介 物件No 仲介手数料概算 33万円(金額は概算です。正確な金額は不動産会社へお問合せ下さい) 設備・特徴 - 整形地
- 閑静な住宅街
- LPガス
- 上下水道
- 電気
備考 ※建物解体後に引き渡しとなります 学区色がついているアイコンをクリックすると、本物件までの道順を見ることができます。
主な周辺施設色がついているアイコンをクリックすると、本物件までの道順を見ることができます。
-
ホームページはこちら
北海道知事 渡島(2) 第1181号
つなぐ賃貸 (株)ベネフィット 【WEB面談可】- 加入団体
- (公社)北海道宅地建物取引業協会、(公財)日本賃貸住宅管理協会
- 保証協会
- (公社)全国宅地建物取引業保証協会
- 公正取引協議会
- 未加盟
※連合隊は物件情報の精度向上に努めています:「物件情報に誤りがある」「成約済みである」などお気付きの点がございましたらこちらよりご連絡ください。
写真枚数:5枚
函館近郊の住み替えなら地元密着の【つなぐ賃貸】へ(#^.^#)
住み替えや転勤など、賃貸物件をお探しなら市内近郊に多数の管理物件を揃える当社へ!人と人とのつながりを大切にするスタッフを頼って大家様や一度利用したことのあるリピーターや紹介客が多いのが当社の特徴です!