陣川町110番 中古戸建
ここに注目!開放感あり♪角地物件♪ 自然に囲まれた閑静な住宅街、陣川町に佇む3LDK。車も3台駐車可能です。 リフォーム工事必須の住宅ですがDIYはどうでしょうか。 現在は倉庫として利用しております。
| 価格 |
151万円
|
|---|---|
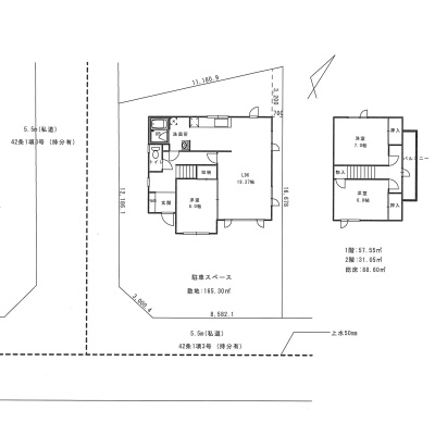
| 建物面積 | 88.6m² (26.8坪) |
| 土地面積 | 165.3m² (50坪)(公簿) |
| 間取り | 3LDK |
| 住所 | 北海道函館市陣川町110番109 |
| 交通 | |
| 築年月 | 築31年(1994年9月) |
| 駐車場 |
駐車可能台数:3台
|
【WEB面談可】
販売状況、見学、詳細を知りたい方はこちら!
お電話の際は「連合隊の物件」とお伝えください。
新着 情報掲載期限:あと29日(更新日 2026/3/6)
- 物件写真・概要
- 周辺地図
-
【WEB面談可】
販売状況、見学、詳細を知りたい方はこちら!おすすめポイント
- 角地
- 南向き
物件概要
建物の階建 主要採光面 南 構造 木造(在来工法) バルコニー あり接道状況 角地 - 西側幅5.50mの私道に12.18m接道
- 南側幅5.50mの私道に8.58m接道
都市計画区域 市街化調整区域 私道負担 なし 地目/地勢 宅地 地勢:平坦 国土法届出 土地権利 所有権 用途地域 - 無指定(建ぺい率:50% / 容積率:100%)
引渡し 相談 現況 空き 取引態様 仲介 物件No 仲介手数料概算 不動産会社へお問合せください 設備・特徴 - 角地
備考 学区色がついているアイコンをクリックすると、本物件までの道順を見ることができます。
主な周辺施設色がついているアイコンをクリックすると、本物件までの道順を見ることができます。
- ファミリーマート函館陣川町店約1.2km(徒歩15分)
- 鈴蘭丘中央緑地約5.3km(徒歩67分)
- 四稜郭約2.7km(徒歩34分)
- セイコーマート函館赤川店約3.4km(徒歩42分)
- 鈴蘭丘南緑地約5.1km(徒歩63分)
対象となりうる支援制度
函館市
支援制度に関するお問合せは、不動産会社ではなく、自治体の公式ページまたは担当課までご確認ください。
上記リンクは、支援制度の対象条件を一定以上満たした物件に対し自動表示しています。
-
ホームページはこちら
北海道知事 渡島(2) 第1186号
函館不動産エージェント (株)ワイズストーリー 【WEB面談可】〒040-0015
TEL:0138-84-5006(物件についてのお問合せ先)
TEL:0138-84-5994(代表電話 兼 管理の問合せ先)
FAX:0138-84-5995
営業時間:10:00~17:00
定休日:毎週 土曜・日曜・祝日
- 保証協会
- (公社)全国宅地建物取引業保証協会
- 公正取引協議会
- (一社)北海道不動産公正取引協議会
※連合隊は物件情報の精度向上に努めています:「物件情報に誤りがある」「成約済みである」などお気付きの点がございましたらこちらよりご連絡ください。
写真枚数:5枚
函館不動産エージェント (株)ワイズストーリー
函館市・北斗市・七飯町を中心とした道南エリアの管理・仲介(賃貸/売買)は当社にお任せください。アパート・マンション・貸家はもちろんのこと、駐車場やテナント(店舗・事務所・倉庫)も取り扱いしております。