KAY SEVEN
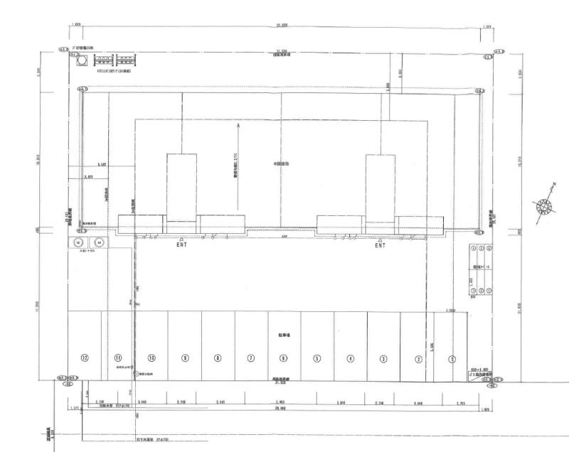
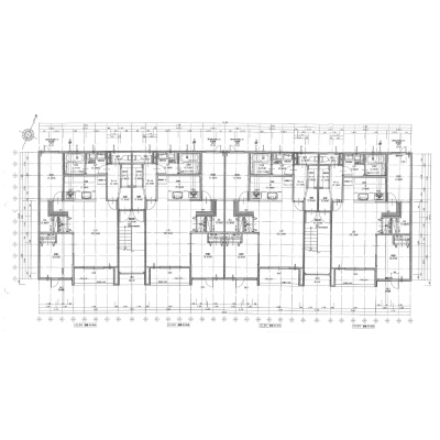
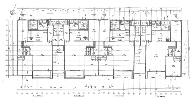
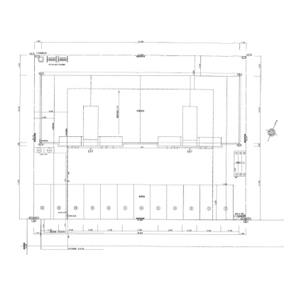
ここに注目!苫小牧市末広町に佇む、全12戸の2LDKアパート「KAY SEVEN」。 **表面利回り7.32%!現在満室稼働中と、安定した賃貸収入が期待できる、収益物件をお探しの方に注目の物件です。** 全戸66.04㎡のゆとりのある2LDKは、ファミリー層やカップルに人気の間取り。南向きで日当たりも良好なため、入居者様にも快適に暮らしていただけます。 バス・トイレ別はもちろん、各世帯縦列2台駐車可能な広々とした駐車場を完備しており、高い入居率を維持する魅力的なポイントが揃っています。 周辺環境も充実。すえひろ保育園(徒歩2分)、セブンイレブン(徒歩5分)、マックスバリュ(徒歩6分)など、日々の暮らしに便利な施設が徒歩圏内に揃い、生活利便性の高さも魅力です。 この機会に、安定した資産形成をサポートする「KAY SEVEN」の詳細をぜひご覧ください。お問い合わせを心よりお待ちしております。
| 価格 |
1億3,700万円
利回り7.32%
満室時想定年収:1,003万2,000円
|
|---|---|
| 住所 | 北海道苫小牧市末広町1-9-3 |
| 交通 | 苫小牧駅(徒歩27分)道順を見る |
| 築年月 | 築10年(2015年9月) |
| 構造 | 木造 |
| 面積 | 建物:283.84m² (85.86坪)/ 土地:781.83m² (236.5坪)(公簿) 専有:66.04m² (19.97坪) |
| 現況 | 現在満室(総戸数12戸中 12戸賃貸中) |
販売状況、見学、詳細を知りたい方はこちら!
お電話の際は「連合隊の物件」とお伝えください。
情報掲載期限:あと5日(更新日 2025/11/18)
- 物件写真・概要
- 周辺地図
-
販売状況、見学、詳細を知りたい方はこちら!
おすすめポイント
- 現在満室
- 土地100坪超
- 戸数分駐車場あり
交通色がついているアイコンをクリックすると、本物件までの道順を見ることができます。
物件概要
建物の階建 地上3階建 間取り 2LDK×12戸 駐車場 あり ※無料 駐車場台数:24台各世帯 縦列2台可
接道状況 一方 - 南側幅8.00mの公道に31.93m接道
都市計画区域 市街化区域 用途地域 - 第1種住居地域(建ぺい率:60% / 容積率:200%)
私道負担 なし 地目/地勢 宅地 地勢:平坦 国土法届出 不要 土地権利 所有権 引渡し 即時(現管理会社の引継ぎ継続が条件となります。) 建築確認番号 第H27確認建築苫小牧市00153号 取引態様 仲介 物件No 仲介手数料概算 458万7,000円(金額は概算です。正確な金額は不動産会社へお問合せ下さい) 設備・特徴 - バス/トイレ別
備考 主な周辺施設色がついているアイコンをクリックすると、本物件までの道順を見ることができます。
-
※連合隊は物件情報の精度向上に努めています:「物件情報に誤りがある」「成約済みである」などお気付きの点がございましたらこちらよりご連絡ください。
写真枚数:21枚
苫小牧市に拠点を置く不動産管理業を主としたローカルデザイン会社です。
創業30年以上の地域密着で経営してきた川上技建グループのIburi Managementです。 建築・売買・賃貸・管理・法務・税務・相続の全てに至るまでトータルサポートが出来ます。