澄川町中古戸建【ガレージ/サンルーム】
ここに注目!大型ガレージ付き5LDK♪◆駐車場3台分確保可能です♪玄関と直結しているため大切なお車を雨や雪から守り、乗り降りも楽々です♪◆南向きで日当たり良好♪◆サンルーム完備でお洗濯スペース確保♪◆3口ガスコンロでお料理も捗ります♪◆全居室収納スペース有り♪物置も完備で収納面が充実しています♪◆ガレージはバイクの格納やBBQ、趣味のワークスペース等多様な用途で利用可能♪◆各部屋約6帖のスペースがあり、ご家族全員が生活しやすい間取りです♪◆苫小牧西ICまでお車で約5分♪室蘭や札幌方面にもアクセスしやすい立地です♪◆周辺にはコンビニ、スーパー、ドラッグストア等の商業施設、病院、銀行などの生活利便施設も充実のエリアです。◆併せて、リフォームのご相談も承れますのでお気軽にお申しつけください♪ ◆詳細のお問合せやご見学などはパイン住幸苫小牧店までお問合せください。
【最新の物件・活動・地域情報を発信中!】パイン住幸 公式ホームページ
| 価格 |
680万円
|
|---|---|
| 建物面積 | 96.87m² (29.3坪) |
| 土地面積 | 208.88m² (63.18坪)(公簿) |
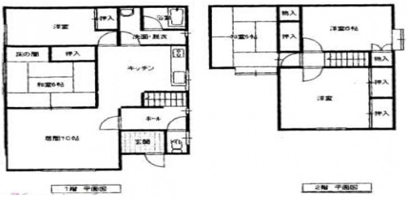
| 間取り | 5LDK |
| 住所 | 北海道苫小牧市澄川町6-8-1 |
| 交通 | 道南バス「澄川小学校」停 (徒歩3分)|糸井駅(徒歩53分)道順を見る |
| 築年月 | 築45年(1980年7月) |
| 駐車場 |
あり 駐車可能台数:3台
|
【WEB面談可】
販売状況、見学、詳細を知りたい方はこちら!
お電話の際は「連合隊の物件」とお伝えください。
情報掲載期限:あと27日(更新日 2025/12/22)
- 物件写真・概要
- 周辺地図
-
【WEB面談可】
販売状況、見学、詳細を知りたい方はこちら!お電話の際は「連合隊の物件」とお伝えください。
0144-89-8115情報掲載期限:あと27日(更新日 2025/12/22)
おすすめポイント
- 即引渡し可
- 駐車2台以上可
- 車庫あり
- 南向き
- 近くて便利!徒歩5分以内にある施設
- 4分
4分- 周辺施設を地図で確認
交通色がついているアイコンをクリックすると、本物件までの道順を見ることができます。
- 糸井駅JR室蘭本線徒歩53分(約3.8km)
- 道南バス「澄川小学校」停 徒歩3分(約220m)
物件概要
建物の階建 地上2階建 主要採光面 南 構造 木造 接道状況 一方 - 南東側幅6.50mの公道に11.20m接道
都市計画区域 市街化区域 私道負担 なし 地目/地勢 宅地 地勢:平坦 国土法届出 土地権利 所有権 用途地域 - 第1種中高層住居専用地域(建ぺい率:60% / 容積率:200%)
引渡し 即時 現況 空き 取引態様 仲介 物件No 仲介手数料概算 33万円(金額は概算です。正確な金額は不動産会社へお問合せ下さい) 設備・特徴 - 閑静な住宅街
- 車庫あり
- 物置
- 玄関フード
- 日当り良好
- 照明器具付
- フローリング
- 全居室収納あり
- 温水洗浄トイレ
- シャワー付洗面化粧台
- コンロ3口以上
- システムキッチン
- 灯油暖房
備考 学区色がついているアイコンをクリックすると、本物件までの道順を見ることができます。
主な周辺施設色がついているアイコンをクリックすると、本物件までの道順を見ることができます。
-
ホームページはこちら
北海道知事 石狩(2) 第8447号
(株)パイン住幸 苫小牧店 【WEB面談可】〒053-0022
TEL:0144-89-8115
FAX:0144-89-8116
営業時間:10:00~18:00
定休日:毎週 水曜 / 第3 火曜 / 第1 火曜
- 加入団体
- (公社)北海道宅地建物取引業協会
- 保証協会
- (公社)全国宅地建物取引業保証協会
※連合隊は物件情報の精度向上に努めています:「物件情報に誤りがある」「成約済みである」などお気付きの点がございましたらこちらよりご連絡ください。
写真枚数:30枚
サッポロドラッグストア
ツルハドラッグ
マックスバリュー
パイン住幸 公式アカウント





苫小牧市の不動産・住まいの売り買い専門店!!私たちパイン住幸 苫小牧店へにお気軽にご相談ください♪
当社は不動産の「売却」や「購入」に関する専門家として、地域の皆様に寄り添った不動産会社になれるよう、日々活動させていただいております!詳細は弊社のホームページをご覧ください♪