桜木町事務所・倉庫
ここに注目!♦️♦️苫小牧市桜木町で理想的な物件をご紹介♦️♦️2003年9月に外壁と屋根を塗装したこちらの事務所・倉庫は、ビジネスの拠点としてぴったり😊荷物運搬用エレベーターが備え付けられており、日々の業務をスムーズに進めることができます✨エアコンや暖房器具も完備されていますので、どんな季節でも快適にお使いいただけます🌈※敷地境界について、既在のブロック塀や庭木等の越境がある場合はその越境を解消できない可能性があり、その場合は現状でのお引き渡しとなります。物件の詳細や不動産査定・不動産売却についてはハウスドゥ苫小牧までお気軽にお問合せください!!LINEでのお問い合わせはこちらの物件NOをお知らせください→4551036
| 価格 |
5,000万円
|
|---|---|
| 建物面積 | 530.5m² (160.47坪) |
| 土地面積 | 584.6m² (176.84坪)(公簿) |
| 住所 | 北海道苫小牧市桜木町4-13-10 |
| 交通 | 青葉駅(徒歩18分)|糸井駅(徒歩21分)|道南バス 「桜木3丁目」停(徒歩1分)道順を見る |
| 築年月 | 築35年(1990年10月) |
| 駐車場 |
あり 駐車可能台数:8台
|
| 用途地域 |
|
【WEB面談可】
販売状況、見学、詳細を知りたい方はこちら!
お電話の際は「連合隊の物件」とお伝えください。
情報掲載期限:あと24日(更新日 2026/1/16)
- 物件写真・概要
- 周辺地図
-
【WEB面談可】
販売状況、見学、詳細を知りたい方はこちら!お電話の際は「連合隊の物件」とお伝えください。
0144-82-8336情報掲載期限:あと24日(更新日 2026/1/16)
おすすめポイント
- 駐車2台以上可
- 男女別トイレ
- エアコン付
交通色がついているアイコンをクリックすると、本物件までの道順を見ることができます。
- 青葉駅JR室蘭本線徒歩18分(約1.5km)
- 糸井駅JR室蘭本線徒歩21分(約1.7km)
- 道南バス 「桜木3丁目」停徒歩1分
物件概要
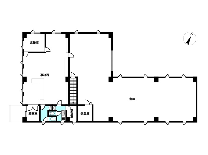
建物の階建 地上2階建 総戸数 主要採光面 構造 鉄骨造 接道状況 二方(除角地) - 南西側幅25.00mの公道に16.74m接道
- 北東側幅6.50mの公道に16.74m接道
都市計画区域 市街化区域 私道負担 なし 地目/地勢 宅地 地勢:平坦 国土法届出 不要 土地権利 所有権 用途地域 - 第1種住居地域(建ぺい率:60% / 容積率:200%)
引渡し 相談 現況 空き 取引態様 仲介 物件No 4551036 仲介手数料概算 171万6,000円(金額は概算です。正確な金額は不動産会社へお問合せ下さい) 修繕履歴 - 2003年9月頃に部分的にリフォームしています。施工内容:屋根・外壁塗装
設備・特徴 - 幹線道路沿い
- エレベーター
- ガス設備
- 灯油暖房
- エアコン付
- 男女別トイレ
備考 主な周辺施設色がついているアイコンをクリックすると、本物件までの道順を見ることができます。
-
ホームページはこちら
北海道知事 胆振(9) 第690号
ハウスドゥ 家・不動産買取専門店 苫小牧西 (有)山地不動産企画 【WEB面談可】
※連合隊は物件情報の精度向上に努めています:「物件情報に誤りがある」「成約済みである」などお気付きの点がございましたら こちら よりご連絡ください。
写真枚数:6枚












不動産の買取、仲介
2020年1月にオープンいたしました!経験豊富なスタッフが親切丁寧にご相談に応じます。不動産の買取や売却、購入や住宅ローンのご相談などお気軽にお問合せください。査定無料、ご相談無料です。