ホリケンラボ美園町モデルハウス
ここに注目!苫小牧市中央人気エリア☆☆ホリケンラボ美園町モデルハウス完成です☆☆建物+土地3590万円で販売!平日・土日祝見学できます(モデルハウスは事前予約制です。ご見学前々日までにご連絡ください。※当日の場合、ご案内が出来ない場合がございます。予めご了承下さい。)#小学校近く#公園近く#都市ガス#西向き☆◇3LDK◇天井高さ2580㎜◇アスファルト舗装+フェンス+人工芝◇床暖(床下放熱器)◇エアコン(寒冷地用)◇ロールスクリーン付◆構造・基礎W断熱◆檜土台◆トリプルガラス◆エコジョーズ 3月ご成約のお客様は家具家電購入費用30万円付です!!ぜひお問い合わせください。 ー・-・-・-・-・-・-・-・-・-・-・-・-・-・-・-・-・-・-・-・- ★お知らせ 株式会社ホリケンラボは北海道苫小牧市で新築工事、リフォーム工事を手がけています。 30年以上の業歴を持つ代表現場を管理するのが強み。 またすべてのお客様に向けてアフターサービスをご用意しています。 ー・-・-・-・-・-・-・-・-・-・-・-・-・-・-・-・-・-・-・-・-
この物件は、仲介手数料がかかりません。
この物件の売主は、情報を掲載している不動産会社です。仲介物件ではないため、仲介手数料は発生しません。
| 価格 |
3,590万円
|
|---|---|
| 建物面積 | 105.98m² (32.05坪) |
| 土地面積 | 169.63m² (51.31坪)(公簿) |
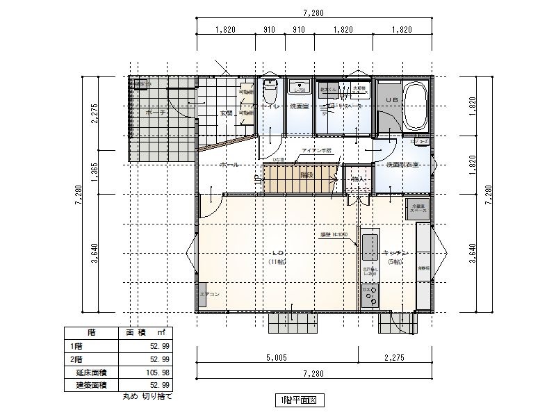
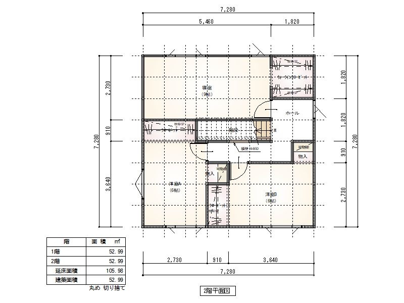
| 間取り | 3LDK1階:LDK16帖 / 2階:洋室9帖 洋室6帖 洋室6帖 |
| 住所 | 北海道苫小牧市美園町3-17-5 |
| 交通 | |
| 築年月 | 新築(2026年1月) |
| 駐車場 |
あり 駐車可能台数:2台
|
販売状況、見学、詳細を知りたい方はこちら!
お電話の際は「連合隊の物件」とお伝えください。
情報掲載期限:あと30日(更新日 2026/3/17)
- 物件写真・概要
- 周辺地図
-
販売状況、見学、詳細を知りたい方はこちら!
おすすめポイント
- 新築
- 駐車2台以上可
- 都市ガス
- 追い焚き風呂
- 近くて便利!徒歩5分以内にある施設
- 2分
2分- 3分
3分- 周辺施設を地図で確認
物件概要
建物の階建 地上2階建 主要採光面 西 構造 木造(在来工法) 接道状況 一方 - 西側幅8.00mの公道に11.50m接道 位置指定:無
都市計画区域 市街化区域 私道負担 地目/地勢 宅地 地勢:平坦 国土法届出 不要 土地権利 所有権 用途地域 - 第1種中高層住居専用地域(建ぺい率:60% / 容積率:200%)
引渡し 相談 現況 空き 施工業者 株式会社ホリケンラボ 建築確認番号 第R07確認建築苫小牧市00080号 取引態様 売主 物件No 仲介手数料概算 取引態様が売主なので仲介手数料は不要です 設備・特徴 - 整形地
- 閑静な住宅街
- 天井高2.5m以上
- 納戸・トランクルーム
- ウォークインクローゼット
- シューズボックス
- 全居室収納あり
- 温水洗浄トイレ
- 追い焚き風呂
- 浴室1坪以上
- コンロ3口以上
- システムキッチン
- 食器洗乾燥機
- 都市ガス
- エアコン付
- ガス暖房
- 個別空調
- 24時間換気システム
- エコジョーズ
- モニタ付インターホン
- 玄関フード
- 照明器具付
- 日当り良好
省エネ性能ラベル
備考 学区色がついているアイコンをクリックすると、本物件までの道順を見ることができます。
主な周辺施設色がついているアイコンをクリックすると、本物件までの道順を見ることができます。
-
※連合隊は物件情報の精度向上に努めています:「物件情報に誤りがある」「成約済みである」などお気付きの点がございましたらこちらよりご連絡ください。
写真枚数:20枚
注文住宅・リフォーム・土地のご提案をお任せください!
ホリケンラボでは、注文住宅・リフォーム・土地のご提案をさせて頂いております!「家を建てる」だけではなく、建ててからの事を考え、アフターやお客様が安心して暮らしていける資金計画を、ご提案させて頂きます。