苫小牧市緑町2丁目 【太平ホーム北海道】
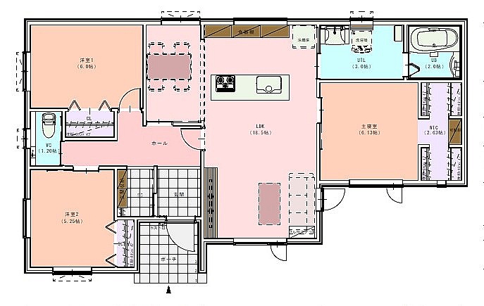
ここに注目!苫小牧市緑町2丁目に、2025年12月初旬完成予定の魅力的な新築平屋が登場!JR苫小牧駅まで徒歩9分と通勤・通学に便利な立地です。道南バス「緑町2丁目」停からも徒歩4分で、交通アクセスは良好。 こちらの物件は、開放感あふれる3LDK。約18.5帖の広々LDKは、ご家族の団らんにぴったりの空間です。南西向きの角地につき、日当たりも良好で明るい毎日をお過ごしいただけます。 快適な暮らしをサポートする設備も充実。人気のカウンターキッチンには食器洗乾燥機と浄水器を完備。浴室は1坪以上でゆったりと、浴室乾燥暖房機や追い焚き機能も付いています。シューズインクローゼットや全居室収納で、収納スペースも豊富。YKKトリプルサッシやエコジョーズなど、省エネにも配慮された高性能住宅です。 この機会に、理想の平屋ライフを始めてみませんか?お問い合わせをお待ちしております!
この物件は、仲介手数料がかかりません。
この物件の売主は、情報を掲載している不動産会社です。仲介物件ではないため、仲介手数料は発生しません。
| 価格 |
3,960万円
|
|---|---|
| 建物面積 | 86.5m² (26.16坪) |
| 土地面積 | 190.61m² (57.65坪)(公簿) |
| 間取り | 3LDK1階:LDK18.5帖 |
| 住所 | 北海道苫小牧市緑町2-34-38 |
| 交通 | 道南バス「緑町2丁目」停 (徒歩4分)|苫小牧駅(徒歩9分)道順を見る |
| 築年月 | 建築中(2026年11月完成予定) |
| 駐車場 |
あり 駐車可能台数:2台
|
販売状況、見学、詳細を知りたい方はこちら!
お電話の際は「連合隊の物件」とお伝えください。
情報掲載期限:あと27日(更新日 2025/12/17)
- 物件写真・概要
- 周辺地図
-
▼クリックで左の拡大画像が変わります。 すべての写真を拡大
販売状況、見学、詳細を知りたい方はこちら!
おすすめポイント
- 建築中
- 駐車2台以上可
- 角地
- 都市ガス
- 追い焚き風呂
- 平屋
- 土地付き提案住宅
- 近くて便利!徒歩5分以内にある施設
- 3分
3分- 5分
5分- 周辺施設を地図で確認
交通色がついているアイコンをクリックすると、本物件までの道順を見ることができます。
- 苫小牧駅JR日高本線、JR千歳線、JR室蘭本線徒歩9分(約689m)
- 道南バス「緑町2丁目」停 徒歩4分
物件概要
建物の階建 地上1階建 主要採光面 南西 構造 木造(2×4) 接道状況 角地 - 南西側幅8.00mの公道に13.95m接道
- 北西側幅6.50mの公道に9.87m接道
都市計画区域 市街化区域 私道負担 なし 地目/地勢 宅地 地勢:平坦 国土法届出 土地権利 所有権 用途地域 - 第2種中高層住居専用地域(建ぺい率:60% / 容積率:200%)
引渡し 引渡し予定:2026年3月下旬(モデルハウスにつき) 現況 更地 施工業者 株式会社太平ホーム北海道 建築確認番号 R07A-KSC.A00632-01 取引態様 売主 物件No 仲介手数料概算 取引態様が売主なので仲介手数料は不要です 設備・特徴 - 閑静な住宅街
- 都市ガス
- 上下水道
- 角地
- 土地付き提案住宅
- 性能評価取得(設計住宅)
- 日当り良好
- 照明器具付
- バリアフリー
- フローリング
- シューズインクローゼット
- 全居室収納あり
- 温水洗浄トイレ
- シャワー付洗面化粧台
- 浴室乾燥機
- 追い焚き風呂
- 浴室暖房
- 浴室1坪以上
- コンロ3口以上
- 食器洗乾燥機
- 浄水器
- カウンターキッチン
- エアコン付
- エコジョーズ
- 24時間換気システム
- モニタ付インターホン
- 平屋
- ウォークインクローゼット
備考 【その他制限事項】景観法・団地内協定有り 【備考】YKKトリプルサッシ採用・玄関ドアD50Basic リモコンキー採用 学区色がついているアイコンをクリックすると、本物件までの道順を見ることができます。
主な周辺施設色がついているアイコンをクリックすると、本物件までの道順を見ることができます。
-
※連合隊は物件情報の精度向上に努めています:「物件情報に誤りがある」「成約済みである」などお気付きの点がございましたらこちらよりご連絡ください。
写真枚数:17枚
イメージパース
区画図
明るさとぬくもりを感じるリビング
動きやすく家事もスムーズなカウンターキッチン
洋室①
洋室②
洋室③
収納たっぷり! ウォークインクローゼット
開放感あふれる脱衣室
ゆたっり使える1坪タイプの浴室
開成中学校
苫小牧駅北口
MEGAドン・キホーテ
サンドラッグ苫小牧緑町店
あなたが創る こだわりの家
北海道にふさわしい家づくりを目指し北国の気候風土を考えた堅牢さと美しさを兼ね備えた 家族の想い入れとこだわりを大切に、末永くご満足のいく住まいをお届けします。