追分2丁目【インナーガレージ付4LDK】一戸建て
ここに注目!北斗市追分に佇む、インナーガレージ付の広々4LDK一戸建て! 函館バス「浜分小学校前」停まで徒歩2分と、通勤・通学に便利な立地です。 南向きの角地で日当たり良好。約112坪の広々とした敷地には、ゆとりのある庭も魅力です。間取りは4LDK+Sで、ご家族それぞれのプライベート空間を確保できます。 インナーガレージは大切な愛車を守るだけでなく、趣味のスペースとしても活用可能。納戸やシューズボックスなど収納も豊富です。 冬も快適な床暖房、ゆったり寛げる1坪以上の浴室、北海道の冬に嬉しい玄関フードなど設備も充実。 小学校まで徒歩7分でお子様の通学も安心。コンビニ徒歩3分で急なお買い物にも便利です。 この機会に、ぜひ現地で広さと快適さをご体感ください!お問い合わせお待ちしております。
| 価格 |
1,500万円
|
|---|---|
| 建物面積 | 189.13m² (57.21坪) |
| 土地面積 | 371.94m² (112.51坪)(公簿) |
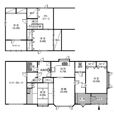
| 間取り | 4LDK1階:LD10帖 K6.7帖 和室8帖 洋室10帖 その他16帖 / 2階:洋室10帖 洋室8帖 S5.5帖 |
| 住所 | 北海道北斗市追分2-12-35 |
| 交通 | 七重浜駅(徒歩16分)|函館バス 「浜分小学校前」停(徒歩2分)道順を見る |
| 築年月 | 築39年(1986年12月) |
| 駐車場 |
あり 駐車可能台数:1台
ブロック塀の解体により駐車台数を増加 |
販売状況、見学、詳細を知りたい方はこちら!
お電話の際は「連合隊の物件」とお伝えください。
情報掲載期限:あと22日(更新日 2025/12/14)
- 物件写真・概要
- 周辺地図
-
販売状況、見学、詳細を知りたい方はこちら!
おすすめポイント
- 駐車場あり
- 車庫あり
- 角地
- 南向き
- 複数路線利用可
- 近くて便利!徒歩5分以内にある施設
- 3分
3分- 周辺施設を地図で確認
交通色がついているアイコンをクリックすると、本物件までの道順を見ることができます。
- 七重浜駅道南いさりび鉄道線徒歩16分(約1.3km)
- 函館バス 「浜分小学校前」停徒歩2分(約100m)
物件概要
建物の階建 地上2階建 主要採光面 南 構造 木造(在来工法) バルコニー あり(6.62m²)- バルコニー南向き
接道状況 角地 - 南西側幅8.00mの公道に24.61m接道
- 北西側幅10.00mの公道に14.95m接道
都市計画区域 市街化区域 私道負担 なし 地目/地勢 宅地 地勢:平坦 国土法届出 不要 土地権利 所有権 用途地域 - 第1種住居地域(建ぺい率:60% / 容積率:200%)
引渡し 相談(測量・増築登記完了後) 現況 空き 建築確認番号 第5158号 取引態様 仲介 物件No 仲介手数料概算 56万1,000円(金額は概算です。正確な金額は不動産会社へお問合せ下さい) 修繕履歴 - 1993年10月頃に部分的にリフォームしています。施工内容:屋根と外壁の塗装
設備・特徴 - 複数路線利用可
- 角地
- 整形地
- 閑静な住宅街
- 車庫あり
- 庭が広い(10坪以上)
- 玄関フード
- 日当り良好
- 出窓
- 納戸・トランクルーム
- シューズボックス
- 浴室1坪以上
- LPガス
- 床暖房
- 灯油ボイラー
備考 学区色がついているアイコンをクリックすると、本物件までの道順を見ることができます。
主な周辺施設色がついているアイコンをクリックすると、本物件までの道順を見ることができます。
-
ホームページはこちら
北海道知事 渡島(2) 第1197号
アクロスホーム(株)- 加入団体
- (公社)北海道宅地建物取引業協会
- 保証協会
- (公社)全国宅地建物取引業保証協会
- 公正取引協議会
- (一社)北海道不動産公正取引協議会
※連合隊は物件情報の精度向上に努めています:「物件情報に誤りがある」「成約済みである」などお気付きの点がございましたらこちらよりご連絡ください。
写真枚数:30枚
不動産の活用方法ご提案致します。
北斗市・函館市をはじめ、七飯町等で不動産を所有の方へ、利活用方法をご提案させて頂きます。お気軽にご相談ください。ご連絡お待ちしております。