沼ノ端中央1丁目 事務所・店舗
ここに注目!沼ノ端中央1丁目の売り事務所です。 国道234号線より道路1本入った立地で高速・高規格道路へのアクセスも楽々です。 199.99坪の敷地に築29年の2階建て鉄骨造建物付きです。 地元苫小牧の企業様、苫小牧へ進出をお考えの企業様へおすすめです。 お気軽にご相談ください。
| 価格 |
4,200万円
|
|---|---|
| 建物面積 | 356.91m² (107.96坪) |
| 土地面積 | 661.14m² (199.99坪)(公簿) |
| 住所 | 北海道苫小牧市沼ノ端中央1丁目14-46 |
| 交通 | 沼ノ端駅(徒歩13分)道順を見る |
| 築年月 | 築29年(1996年5月) |
| 駐車場 |
あり
駐車の仕方により10台以上可能 |
| 用途地域 |
|
販売状況、見学、詳細を知りたい方はこちら!
お電話の際は「連合隊の物件」とお伝えください。
情報掲載期限:あと27日(更新日 2026/4/27)
- 物件写真・概要
- 周辺地図
-
販売状況、見学、詳細を知りたい方はこちら!
おすすめポイント
- 駐車場あり
- リフォーム済み
- 出店するなら…この業種がおすすめ!
- 飲食全般(重飲食含む)

- 喫茶・カフェ(軽飲食)

- バー・クラブ・スナック

- 小売・物販

- 美容・健康・介護

- 医療

- 教育・スクール

- 事務所

- アミューズメント

※出店不可の業種:その他
交通色がついているアイコンをクリックすると、本物件までの道順を見ることができます。
物件概要
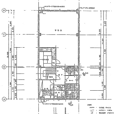
建物の階建 地上2階建 総戸数 1戸 主要採光面 西 構造 鉄骨造 居抜き情報 接道状況 一方 - 北側幅9.00mの公道に18.18m接道
都市計画区域 市街化区域 私道負担 なし 地目/地勢 宅地 地勢:平坦 国土法届出 不要 土地権利 所有権 用途地域 - 準住居地域(建ぺい率:60% / 容積率:200%)
引渡し 相談 現況 空き 施工業者 西松建設株式会社 取引態様 仲介 物件No 仲介手数料概算 145万2,000円(金額は概算です。正確な金額は不動産会社へお問合せ下さい) 修繕履歴 - 2025年7月頃に部分的にリフォームしています。施工内容:屋上(屋根部)防水工事
設備・特徴 - 給排水設備
- ビルトインエアコン
- 男女別トイレ(共用部)
備考 過去に一部に雨漏りがございましたが令和7年7月に屋上防水工事済みです。 ビルトインエアコンは使用不明。 間取り図は若干の誤差があります。 主な周辺施設色がついているアイコンをクリックすると、本物件までの道順を見ることができます。
-
※連合隊は物件情報の精度向上に努めています:「物件情報に誤りがある」「成約済みである」などお気付きの点がございましたらこちらよりご連絡ください。
写真枚数:18枚
1階間取り
2階間取り
苫小牧の不動産の事は(株)アドバンズへお任せください。
戸建ての現金買取・無料査定 ! その他、土地の売買や賃貸管理もお取り扱いしております。 苫小牧市や近郊の市町村も取り扱っております。 お気軽にアドバンズへ御相談ください。