苫小牧市明野新町3
ここに注目!苫小牧市明野新町に佇む、広々とした敷地の一戸建てをご紹介します。 道南バス「明野中学校」停まで徒歩2分と、通勤・通学に便利な立地です。 周辺は閑静な住宅街で、お子様の通学にも安心な明野小学校・中学校まで徒歩5分圏内。 コンビニ、スーパー、銀行、郵便局なども徒歩圏内に揃い、 日々の暮らしに役立つ施設が充実しています。 建物は南向きで日当り良好!一階には和室が2部屋有り、 平屋建ての様な生活も可能な4DKです。 コーナー出窓もあり、10帖の広々としたリビングと6帖ダイニングキッチン、 ご家族それぞれの時間を大切にできます。 納戸や床下収納、シューズボックスなど収納も豊富で、お部屋をすっきりと保てます。 約75坪と間口13.12mと、広々とした敷地には車4台分の駐車場も完備。 現在空き物件ですが、 要リフォーム物件ですので、 ご自身のライフスタイルに合わせてリフォームをされると良いでしょう。 弊社にて、リフォームも請け賜わっております。 1400万円と土地代並みの価格です。 この機会にぜひ一度、現地をご覧ください。お問い合わせをお待ちしております。
| 価格 |
1,400万円
|
|---|---|
| 建物面積 | 108.88m² (32.93坪) |
| 土地面積 | 249.28m² (75.4坪)(公簿) |
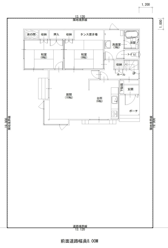
| 間取り | 4DK1階:L10帖 DK6帖 和室6帖 和室6帖 / 2階:洋室6帖 洋室6帖 |
| 住所 | 北海道苫小牧市明野新町3-19-5 |
| 交通 | 苫小牧駅(徒歩51分)|道南バス 「明野中学校」停(徒歩2分)道順を見る |
| 築年月 | 築40年(1985年12月) |
| 駐車場 |
あり 駐車可能台数:4台
|
販売状況、見学、詳細を知りたい方はこちら!
お電話の際は「連合隊の物件」とお伝えください。
情報掲載期限:あと8日(更新日 2025/12/15)
- 物件写真・概要
- 周辺地図
-
▼クリックで左の拡大画像が変わります。 すべての写真を拡大
販売状況、見学、詳細を知りたい方はこちら!
おすすめポイント
- 駐車2台以上可
- 南向き
- 都市ガス
- 近くて便利!徒歩5分以内にある施設
- 5分
5分- 5分
5分- 5分
5分- 5分
5分- 周辺施設を地図で確認
交通色がついているアイコンをクリックすると、本物件までの道順を見ることができます。
- 苫小牧駅JR日高本線、JR千歳線、JR室蘭本線徒歩51分(約4.1km)
- 道南バス 「明野中学校」停徒歩2分
物件概要
建物の階建 地上2階建 主要採光面 南 構造 木造(在来工法) 接道状況 一方 - 南側幅8.00mの公道に13.12m接道
都市計画区域 市街化区域 私道負担 なし 地目/地勢 宅地 地勢:平坦 国土法届出 不要 土地権利 所有権 用途地域 - 第2種中高層住居専用地域(建ぺい率:60% / 容積率:200%)
引渡し 相談 現況 空き 建築確認番号 第995号 取引態様 仲介 物件No 仲介手数料概算 52万8,000円(金額は概算です。正確な金額は不動産会社へお問合せ下さい) 設備・特徴 - 整形地
- 閑静な住宅街
- 日当り良好
- 出窓
- 二重サッシ
- 納戸・トランクルーム
- 床下収納
- シューズボックス
- 温水洗浄トイレ
- 都市ガス
- 灯油暖房
- LPガス
- 灯油ボイラー
備考 前面道路には都市ガス管が敷設されてますが、現状個別LPGです。 引き込むことにより、都市ガス利用可能です。 屋根壁のリフォーム、その他要メンテナンス物件です。 確認済証並びに検査済証が保管されて無いため、 売買にあたり、行政機関による『台帳記載事項証明書』にて、融資申し込みとなります。 学区色がついているアイコンをクリックすると、本物件までの道順を見ることができます。
主な周辺施設色がついているアイコンをクリックすると、本物件までの道順を見ることができます。
-
ホームページはこちら
北海道知事 胆振(10) 第647号
住研ハウス(株)- 加入団体
- (公社)北海道宅地建物取引業協会
- 保証協会
- (公社)全国宅地建物取引業保証協会
- 公正取引協議会
- (一社)北海道不動産公正取引協議会
※連合隊は物件情報の精度向上に努めています:「物件情報に誤りがある」「成約済みである」などお気付きの点がございましたらこちらよりご連絡ください。
写真枚数:20枚
道路側正面
配置図
一階平面図(手書きを基に図面化してますので、現況を優先します。)
二階平面図(手書きを基に図面化してますので、現況を優先します。)
南東側
南西側
リビング出窓・テラス
キッチン
和室西側床の間付き
和室東側
二階洋間東側
二階洋間西側
トイレ
浴室
洗面化粧台
灯油給湯ボイラー
FFストーブ
二階納戸
欄間付き片岩ドア
玄関収納(シューズボックス)
苫小牧市・札幌市・千歳市に拠点を置き、各拠点近郊の住宅建築及び不動産売買、リフォームを手掛けてます。
地域密着型で、家族の快適な暮らしは「明るい」「暖かい」「安心施工」の健康的で快適・安心の住まいをご紹介します。