美邸築浅物件【苫小牧市東開町】中古住宅
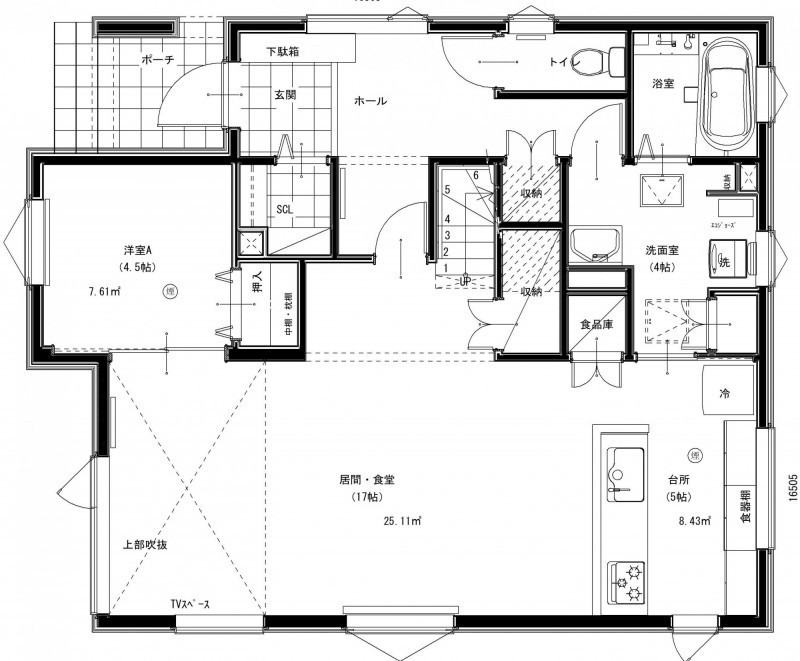
ここに注目!人気の東部地区に築浅物件が出ました!高断熱『トリプルガラス』採用+外周部2×6にW断熱+基礎スラブ一体化で床下も暖かい住宅です。給湯暖房には、都市ガス利用の【エコジョーズ】、リビングには春から秋までの暖冷房用の【エアコン】設置しており、快適な生活を送れます。玄関横には【シューズクローゼット】洗面室にもランドリー収納2ヶ所、家事をしながらお子様の動き見れる【オープンフラット対面キッチン】、リビングには開放感あふれる【吹抜け】2階にも【トイレ】完備、ホールも広めななので多目的にご利用できます。寝室には3帖の【ウォークイン】の他、【クローゼット】も設けており収納充実!外構も車が《4台】止めれるアスファルト舗装施工!約1.5坪の物置も設置しております。 <基礎断熱> <ハイブリット断熱工法>
| 価格 |
3,450万円
|
|---|---|
| 建物面積 | 127.27m² (38.49坪) |
| 土地面積 | 240m² (72.6坪)(公簿) |
| 間取り | 4LDK1階:LDK17帖 洋室4.5帖 / 2階:洋室5.75帖 洋室6帖 洋室7帖 S3帖 |
| 住所 | 北海道苫小牧市東開町3-580-9 |
| 交通 | 沼ノ端駅(徒歩18分)|道南バス「沼ノ端西」停 (徒歩8分) |
| 築年月 | 築4年(2021年2月) |
| 駐車場 |
あり 駐車可能台数:4台
|
販売状況、見学、詳細を知りたい方はこちら!
お電話の際は「連合隊の物件」とお伝えください。
情報掲載期限:あと30日(更新日 2025/12/15)
- 物件写真・概要
- 周辺地図
-
▼クリックで左の拡大画像が変わります。 すべての写真を拡大
販売状況、見学、詳細を知りたい方はこちら!
おすすめポイント
- 築5年以内
- 駐車2台以上可
- 都市ガス
- 追い焚き風呂
交通色がついているアイコンをクリックすると、本物件までの道順を見ることができます。
- 沼ノ端駅JR室蘭本線、JR千歳線徒歩18分(約1.4km)
- 道南バス「沼ノ端西」停 徒歩8分
物件概要
建物の階建 地上2階建 主要採光面 西 構造 木造(2×4) 接道状況 一方 - 西側幅8.00mの公道に12.00m接道
都市計画区域 市街化区域 私道負担 なし 地目/地勢 宅地 地勢:平坦 国土法届出 不要 土地権利 所有権 用途地域 - 第1種住居地域(建ぺい率:60% / 容積率:200%)
引渡し 相談 現況 空き 施工業者 住研ハウス株式会社 建築確認番号 第R02確認建築苫小牧市00253号 取引態様 仲介 物件No 仲介手数料概算 120万4,500円(金額は概算です。正確な金額は不動産会社へお問合せ下さい) 設備・特徴 - 整形地
- 閑静な住宅街
- 物置
- 制震
- 日当り良好
- 照明器具付
- フローリング
- 吹き抜け
- ウォークインクローゼット
- 床下収納
- シューズインクローゼット
- 全居室収納あり
- トイレ2ヶ所以上
- 温水洗浄トイレ
- シャワー付洗面化粧台
- 追い焚き風呂
- 浴室1坪以上
- IHクッキングヒーター
- コンロ3口以上
- システムキッチン
- 食器洗乾燥機
- 都市ガス
- エアコン付
- 24時間換気システム
- エコジョーズ
備考 学区色がついているアイコンをクリックすると、本物件までの道順を見ることができます。
主な周辺施設色がついているアイコンをクリックすると、本物件までの道順を見ることができます。
-
ホームページはこちら
北海道知事 胆振(10) 第647号
住研ハウス(株)- 加入団体
- (公社)北海道宅地建物取引業協会
- 保証協会
- (公社)全国宅地建物取引業保証協会
- 公正取引協議会
- (一社)北海道不動産公正取引協議会
※連合隊は物件情報の精度向上に努めています:「物件情報に誤りがある」「成約済みである」などお気付きの点がございましたらこちらよりご連絡ください。
写真枚数:14枚
外観
一階平面図
配置図
二階平面図
リビング吹上
リビング
ダイニング
キッチン
キッチン収納
エコジョーズと収納
洗面化粧台
主寝室
玄関ホール
エアコン
苫小牧市・札幌市・千歳市に拠点を置き、各拠点近郊の住宅建築及び不動産売買、リフォームを手掛けてます。
地域密着型で、家族の快適な暮らしは「明るい」「暖かい」「安心施工」の健康的で快適・安心の住まいをご紹介します。