【苫小牧市拓勇西町】2024-1拓勇西町モデルハウス
ここに注目!人気の苫小牧東部!! 【拓勇西町】 モデルハウスがグランドオープン!! 外観はシンプルなグレーに仕上げ 内観は『穏やかなナチュラル』『くすみカラー』を感じて下さい リビングはH3000の高天井による開放感も見どころです。 リビングに設置された窓台と一体型の窓ベンチで、 ソファーレス的な大人数にでの、団欒も楽しめる空間です。
この物件は、仲介手数料がかかりません。
この物件の売主は、情報を掲載している不動産会社です。仲介物件ではないため、仲介手数料は発生しません。
| 価格 |
4,675万4,000円
|
|---|---|
| 建物面積 | 130.54m² (39.48坪) |
| 土地面積 | 248.25m² (75.09坪)(公簿) |
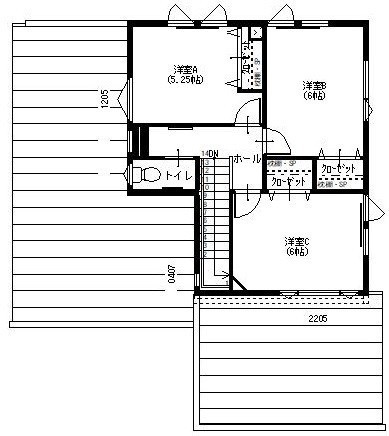
| 間取り | 4LDK1階:L10帖 DK10帖 洋室6帖 S2帖 / 2階:洋室6帖 洋室5.25帖 / 62階:洋室6帖 |
| 住所 | 北海道苫小牧市拓勇西町6-2-3 |
| 交通 | 道南バス「拓勇西」停 (徒歩4分)|沼ノ端駅(徒歩33分)道順を見る |
| 築年月 | 築1年(2024年4月) |
| 駐車場 |
あり
|
販売状況、見学、詳細を知りたい方はこちら!
お電話の際は「連合隊の物件」とお伝えください。
情報掲載期限:あと25日(更新日 2025/12/15)
- 物件写真・概要
- 周辺地図
-
▼クリックで左の拡大画像が変わります。 すべての写真を拡大
販売状況、見学、詳細を知りたい方はこちら!
お電話の際は「連合隊の物件」とお伝えください。
0144-57-5711情報掲載期限:あと25日(更新日 2025/12/15)
おすすめポイント
- 築3年以内
- 駐車場あり
- 南向き
- 都市ガス
- 追い焚き風呂
- 近くて便利!徒歩5分以内にある施設
- 5分
5分- 4分
4分- 周辺施設を地図で確認
交通色がついているアイコンをクリックすると、本物件までの道順を見ることができます。
- 沼ノ端駅JR室蘭本線、JR千歳線徒歩33分(約2.7km)
- 道南バス「拓勇西」停 徒歩4分
物件概要
建物の階建 地上2階建 主要採光面 南 構造 木造(2×4) 接道状況 一方 - 南側幅18.00mの公道に12.41m接道
都市計画区域 私道負担 なし 地目/地勢 宅地 地勢:平坦 国土法届出 不要 土地権利 所有権 用途地域 - 第2種中高層住居専用地域(建ぺい率:60% / 容積率:200%)
引渡し 相談 現況 空き 施工業者 住研ハウス株式会社 建築確認番号 R05A-KSC.A01032-01 取引態様 売主 物件No 仲介手数料概算 取引態様が売主なので仲介手数料は不要です 設備・特徴 - 整形地
- 閑静な住宅街
- バリアフリー
- フローリング
- 天井高2.5m以上
- 納戸・トランクルーム
- ウォークインクローゼット
- シューズインクローゼット
- 全居室収納あり
- トイレ2ヶ所以上
- 温水洗浄トイレ
- 追い焚き風呂
- 浴室1坪以上
- コンロ3口以上
- 都市ガス
- 24時間換気システム
- 熱交換器
- エコジョーズ
- モニタ付インターホン
備考 ホールよりと洗面室より出入り出来るウォークインクローゼットを設けて、使い勝手良し!キッチン横にもパントリー、収納バッチリ! 《R7,3,8申込入りました》 学区色がついているアイコンをクリックすると、本物件までの道順を見ることができます。
主な周辺施設色がついているアイコンをクリックすると、本物件までの道順を見ることができます。
-
ホームページはこちら
北海道知事 胆振(10) 第647号
住研ハウス(株)- 加入団体
- (公社)北海道宅地建物取引業協会
- 保証協会
- (公社)全国宅地建物取引業保証協会
- 公正取引協議会
- (一社)北海道不動産公正取引協議会
※連合隊は物件情報の精度向上に努めています:「物件情報に誤りがある」「成約済みである」などお気付きの点がございましたらこちらよりご連絡ください。
写真枚数:15枚
外観正面より
南西方向より
南東方向より
H3000天井高と窓台ベンチ
キッチン食器棚
階段
キッチンよりダイニング
シューズクロ-ゼット
ウォークインより洗面室
高天井と窓ベンチ
洗面室よりウォークインクローゼット
1Fウォークインクローゼット
パントリー
苫小牧市・札幌市・千歳市に拠点を置き、各拠点近郊の住宅建築及び不動産売買、リフォームを手掛けてます。
地域密着型で、家族の快適な暮らしは「明るい」「暖かい」「安心施工」の健康的で快適・安心の住まいをご紹介します。