インナーガレージ付リフォーム済み中古戸建
ここに注目!苫小牧市の人気エリア【啓北町】に、インナーガレージ付き中古住宅が登場!ガレージから室内に直接出入りでき、リビングから愛車を眺められる設計は車・バイク好きにぴったり!ガレージ以外にも駐車2台分のスペースあり。広々としたLDKと豊富な収納です。利便性に優れた立地で、買い物や通学も便利。ぜひ現地でご体感ください!住宅ローンの返済例 お借入金額1,980万円の場合当初固定金利3年・金利0.85%・お借り入れ期間40年・ボーナス払いなし 月々48,673円のお支払い ※その他諸費用発生致します。
| 価格 |
1,880万円
|
|---|---|
| 建物面積 | 128.79m² (38.95坪) |
| 土地面積 | 239.08m² (72.32坪)(公簿) |
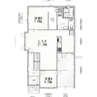
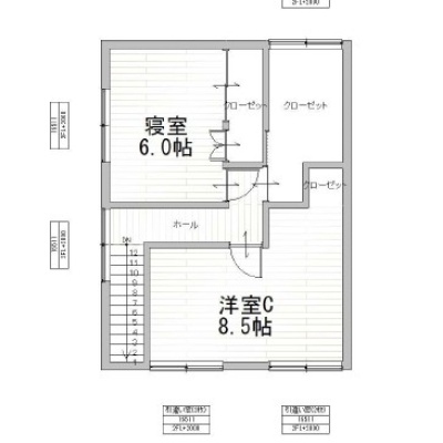
| 間取り | 4LDK1階:LDK21.2帖 洋室7帖 洋室4.5帖 / 2階:洋室8.5帖 洋室6帖 |
| 住所 | 北海道苫小牧市啓北町1丁目1-18 |
| 交通 | 青葉駅(徒歩4分)道順を見る |
| 築年月 | 築49年(1976年9月) |
| 駐車場 |
あり 駐車可能台数:3台
|
販売状況、見学、詳細を知りたい方はこちら!
お電話の際は「連合隊の物件」とお伝えください。
情報掲載期限:あと11日(更新日 2025/11/24)
- 物件写真・概要
- 周辺地図
-
販売状況、見学、詳細を知りたい方はこちら!
お電話の際は「連合隊の物件」とお伝えください。
0144-84-6575情報掲載期限:あと11日(更新日 2025/11/24)
おすすめポイント
- 即引渡し可
- 駐車2台以上可
- 車庫あり
- 南向き
- 追い焚き風呂
- リフォーム済み
- 駅徒歩5分以内
- 近くて便利!徒歩5分以内にある施設
- 4分
4分- 4分
4分- 周辺施設を地図で確認
交通色がついているアイコンをクリックすると、本物件までの道順を見ることができます。
物件概要
建物の階建 地上2階建 主要採光面 南 構造 木造 接道状況 一方 - 東側幅10.00mの公道に13.15m接道
都市計画区域 市街化区域 私道負担 なし 地目/地勢 宅地 地勢:平坦 国土法届出 不要 土地権利 所有権 用途地域 - 第1種住居地域(建ぺい率:60% / 容積率:200%)
引渡し 即時 現況 空き 取引態様 仲介 物件No 仲介手数料概算 68万6,400円(金額は概算です。正確な金額は不動産会社へお問合せ下さい) 修繕履歴 - 2025年7月頃に屋根・外壁をリフォームしています。施工内容:屋根・外壁塗装工事
- 2025年7月頃にキッチン・トイレ・浴室をリフォームしています。施工内容:水廻り交換工事(キッチン、ユニットバス、トイレ、洗面台、ボイラー)
- 2025年7月頃に建物全体を部分的にリフォームしています。施工内容:クロス張替え、フローリング張替え、間取り変更
- 2025年7月頃に部分的にリフォームしています。施工内容:アスファルト工事
- 2025年7月頃に建物全体を部分的にリフォームしています。施工内容:サッシ交換工事(全箇所)
設備・特徴 - 整形地
- 閑静な住宅街
- 車庫あり
- 庭が広い(10坪以上)
- 日当り良好
- 照明器具付
- フローリング
- 出窓
- ウォークインクローゼット
- シューズボックス
- 温水洗浄トイレ
- シャワー付洗面化粧台
- 追い焚き風呂
- 浴室1坪以上
- コンロ3口以上
- 灯油暖房
- 床暖房
- 灯油ボイラー
- モニタ付インターホン
備考 学区色がついているアイコンをクリックすると、本物件までの道順を見ることができます。
主な周辺施設色がついているアイコンをクリックすると、本物件までの道順を見ることができます。
-
ホームページはこちら
北海道知事 胆振(4) 第936号
大鎮キムラ建設(株)
※連合隊は物件情報の精度向上に努めています:「物件情報に誤りがある」「成約済みである」などお気付きの点がございましたらこちらよりご連絡ください。
写真枚数:24枚
【苫小牧市内着工棟数No.1】理想が叶うお家づくりは「大鎮キムラ建設」
すべてのお客様に喜んでいただけるよう、お客様の思い描く理想の住まいを一つひとつカタチにしていきます。【モデルハウスは、毎週土曜・日曜・祝日公開中(10:00~17:00)※平日をご希望の方は、0120-971-873へ♪】