宮前町2丁目フルリノベーション住宅
ここに注目!新築のようにリノベーションされ新しく生まれ変わった住宅です☆駐車スペースは3台以上可能になります☆広々とした5LDKの間取りで、1階に2部屋あり、平屋のようにもご使用いただけます。システムキッチンは対面キッチンに変更し食洗機もついております☆浴室はゆとりの1坪以上で追い焚き機能付、トイレ・洗面化粧台も新品交換になります☆日々の暮らしを豊かにする設備が充実しています。全居室収納や物置もあり、収納も充実しております☆床材・建具・内装クロス・外装も塗装☆雰囲気も一新し新築のLIKEに。ボイラー・ストーブも新品に交換しております☆電気工事・照明器具LED化☆細かい部分では、水抜き栓・屋外水栓・ホームタンクも交換しております。エアコンも新設☆ご購入いただいた後のメンテナンスコストが極力かからないように考慮してリノベーションしております☆錦岡小学校まで徒歩9分、凌雲中学校まで徒歩4分と、お子様の通学も安心の距離。保育園や公園、スーパー、コンビニも近い、閑静な住宅街で、快適な毎日を始めてみませんか。現在工事中ではございますがお気軽に内覧いただけましたら幸いです☆3月末日には引渡可能予定です☆
この物件は、仲介手数料がかかりません。
この物件の売主は、情報を掲載している不動産会社です。仲介物件ではないため、仲介手数料は発生しません。
| 価格 |
1,450万円
|
|---|---|
| 建物面積 | 114.25m² (34.56坪) |
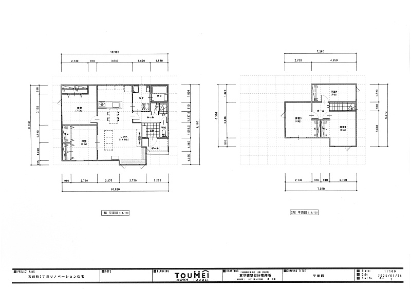
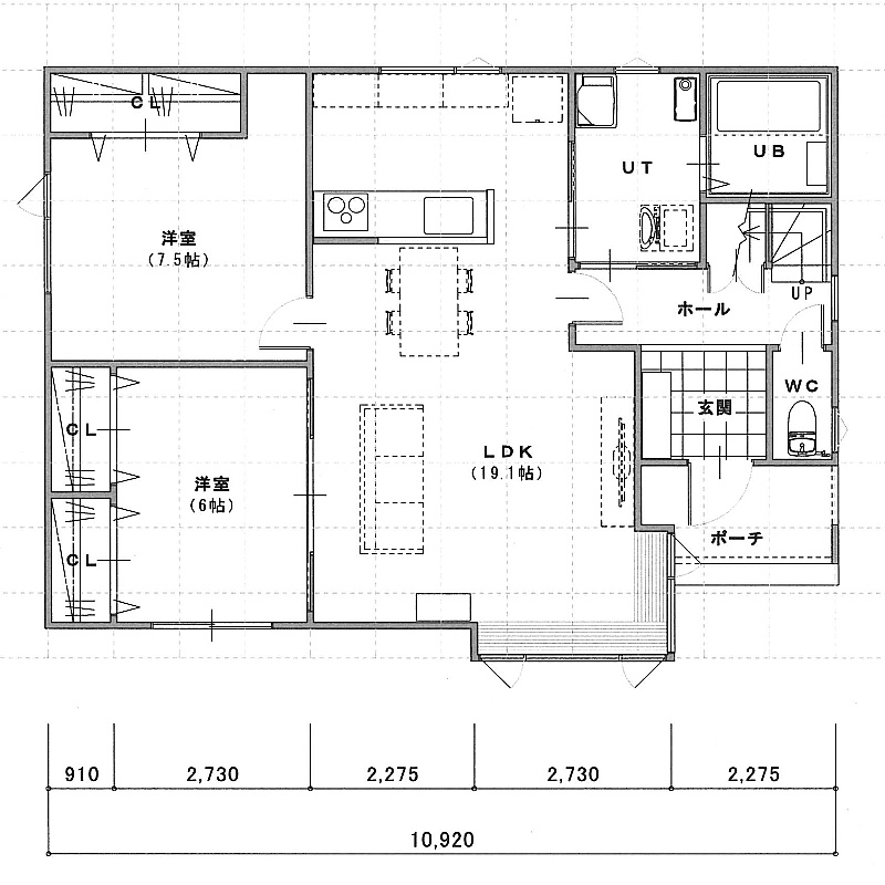
| 土地面積 | 249.12m² (75.35坪)(公簿) |
| 間取り | 5LDK |
| 住所 | 北海道苫小牧市宮前町2丁目23番4号 |
| 交通 | 錦岡駅(徒歩9分)道順を見る |
| 築年月 | 築35年(1990年6月) |
| 駐車場 |
あり 駐車可能台数:3台
|
【WEB面談可】
販売状況、見学、詳細を知りたい方はこちら!
お電話の際は「連合隊の物件」とお伝えください。
情報掲載期限:あと22日(更新日 2026/3/2)
- 物件写真・概要
- 周辺地図
-
【WEB面談可】
販売状況、見学、詳細を知りたい方はこちら!おすすめポイント
- 駐車2台以上可
- 南向き
- 追い焚き風呂
- 近くて便利!徒歩5分以内にある施設
- 3分
3分- 4分
4分- 周辺施設を地図で確認
交通色がついているアイコンをクリックすると、本物件までの道順を見ることができます。
物件概要
建物の階建 地上2階建 主要採光面 南 構造 木造(在来工法) バルコニー あり- ルーフバルコニー
- バルコニー南向き
接道状況 一方 - 東側幅8.00mの公道に12.23m接道
都市計画区域 市街化区域 私道負担 なし 地目/地勢 宅地 地勢:平坦 国土法届出 不要 土地権利 所有権 用途地域 - 第1種低層住居専用地域(建ぺい率:40% / 容積率:60%)
引渡し 相談(現在工事中) 現況 空き 取引態様 売主 物件No 仲介手数料概算 取引態様が売主なので仲介手数料は不要です 設備・特徴 - 整形地
- 閑静な住宅街
- 物置
- 庭が広い(10坪以上)
- 日当り良好
- 照明器具付
- 出窓
- フローリング
- バリアフリー
- 全居室収納あり
- 温水洗浄トイレ
- シャワー付洗面化粧台
- 追い焚き風呂
- 浴室1坪以上
- コンロ3口以上
- システムキッチン
- 食器洗乾燥機
- LPガス
- エアコン付
- 灯油暖房
- 灯油ボイラー
- モニタ付インターホン
備考 本件は売主の為、仲介手数料はかかりません☆3月末日には入居可能予定☆新築LIKEの家にフルリノベーション☆メンテナンスコストも抑えられるように考慮☆5LDK☆外装塗装・玄関ドアは断熱玄関ドアへ☆水回り(キッチン・UB・洗面化粧台・トイレ)・暖房設備(ボイラー・ストーブ)・内装(フローリング・クロス・建具)・エアコン・照明LED・コンセント・TVアンテナ配線追加等電気工事等が含まれております。 学区色がついているアイコンをクリックすると、本物件までの道順を見ることができます。
主な周辺施設色がついているアイコンをクリックすると、本物件までの道順を見ることができます。
-
※連合隊は物件情報の精度向上に努めています:「物件情報に誤りがある」「成約済みである」などお気付きの点がございましたらこちらよりご連絡ください。
写真枚数:7枚
株式会社TOUMEIは苫小牧、近郊の新築・改修・不動産買取仲介のご相談承ります。その他相談窓口の会社です。
創業38年の弊社は、注文住宅を中心に・デザインフルリノベーション、大規模リフォームから、プチ改修、不動産買取、仲介等、税理士による相談窓口、WEB事業部による相談など、多岐にわたりご相談に乗れる会社です☆