澄川町4丁目フルリノベーションⅡ
ここに注目!「澄川町4丁目フルリノベーションⅡ」は2026年3月に大規模リフォームが完了予定で、まるで新築のような快適さが手に入ります。キッチン・お風呂・トイレ・洗面台などの水回りはもちろん、屋根・外壁塗装、全室クロス・床の貼替、玄関ドアやサッシの一部交換まで、内外装をまるごと一新。ボイラーやパネルヒーターも新品交換され、冬も暖かく過ごせます。 ゆとりの4SLDKは、ご家族皆様が心地よく過ごせる110.88m²の広さ。南向きで日当たり良好、3面採光や出窓が明るい空間を演出します。システムキッチンには食洗機、浴室は1坪以上で追い焚き機能付、ウォークインクローゼットや全居室収納も充実。駐車場は嬉しい最大3台分完備です。販売段階で全て改修しているので、5年後10年後のメンテナンスコスト減にも寄与しております。売主物件なので仲介手数料もかかりません。 建築会社のデザインフルリノベーション住宅です。新築のような中古住宅で、新生活をスタートに是非お使いいただけましたら幸いです。 閑静な住宅街に位置しながら、コンビニやドラッグストア、スーパー、公園、幼稚園、小中学校が徒歩圏内に揃い、日々の暮らしに大変便利です☆
この物件は、仲介手数料がかかりません。
この物件の売主は、情報を掲載している不動産会社です。仲介物件ではないため、仲介手数料は発生しません。
| 価格 |
1,840万円
|
|---|---|
| 建物面積 | 110.88m² (33.54坪) |
| 土地面積 | 165.5m² (50.06坪)(公簿) |
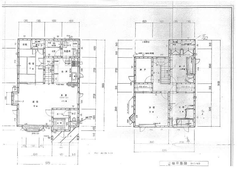
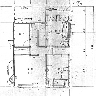
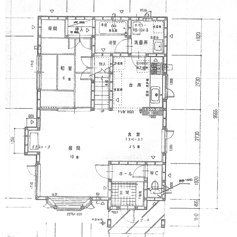
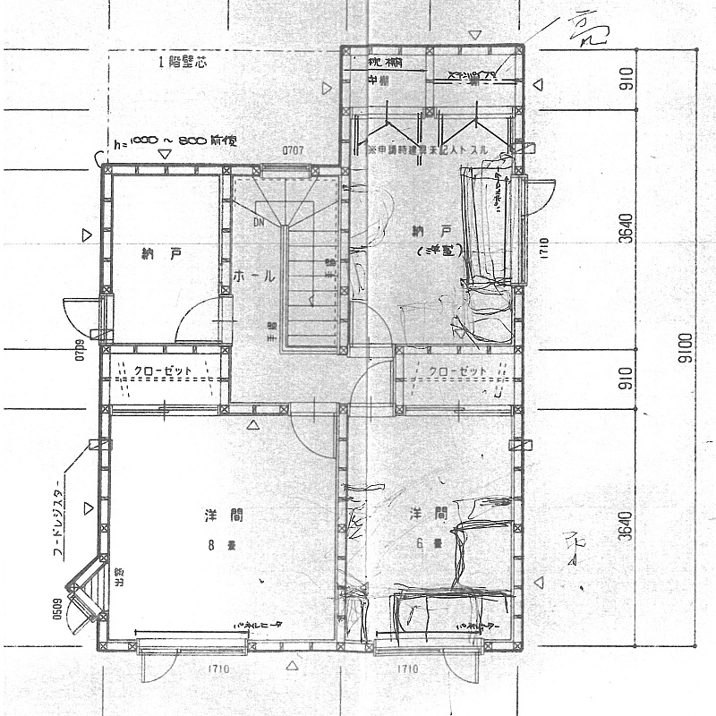
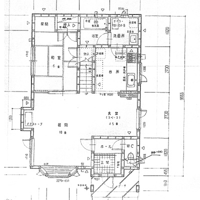
| 間取り | 4SLDK1階:LDK18帖 洋室6帖 / 2階:洋室8帖 洋室6帖 洋室6帖 S3帖 |
| 住所 | 北海道苫小牧市澄川町4-16-1 |
| 交通 | |
| 築年月 | 築28年(1997年9月) |
| 駐車場 |
あり 駐車可能台数:3台
|
【WEB面談可】
販売状況、見学、詳細を知りたい方はこちら!
お電話の際は「連合隊の物件」とお伝えください。
情報掲載期限:あと23日(更新日 2026/1/31)
- 物件写真・概要
- 周辺地図
-
【WEB面談可】
販売状況、見学、詳細を知りたい方はこちら!おすすめポイント
- 駐車2台以上可
- 南向き
- 都市ガス
- 追い焚き風呂
- 土地付き提案住宅
- リフォーム済み
- 近くて便利!徒歩5分以内にある施設
- 5分
5分- 5分
5分- 周辺施設を地図で確認
物件概要
建物の階建 地上2階建 主要採光面 南 構造 木造(在来工法) 接道状況 一方 - 南側幅6.50mの公道に9.27m接道
都市計画区域 市街化区域 私道負担 なし 地目/地勢 宅地 地勢:平坦 国土法届出 不要 土地権利 所有権 用途地域 - 第1種中高層住居専用地域(建ぺい率:60% / 容積率:200%)
引渡し 相談 現況 その他(工事中) 建築確認番号 第H09認建苫建000379号 取引態様 売主 物件No 仲介手数料概算 取引態様が売主なので仲介手数料は不要です 修繕履歴 - 2026年2月頃に部分的にリフォームしています。施工内容:キッチン・カップボード・UB・洗面化粧台・WC新品交換
- 2026年7月頃に部分的にリフォーム完了予定です。施工内容:ボイラー新品交換・各室パネルヒーター新設
- 2026年2月頃に部分的にリフォームしています。施工内容:屋根・外壁:塗装工事。玄関断熱ドアに新品交換・サッシ一部交換
- 2026年2月頃に部分的にリフォームしています。施工内容:クロス全室貼替
- 2026年2月頃に部分的にリフォームしています。施工内容:床貼替工事・建具交換工事
設備・特徴 - 整形地
- 閑静な住宅街
- 物置
- 玄関フード
- 土地付き提案住宅
- デザイナーズ
- 日当り良好
- 照明器具付
- バリアフリー
- フローリング
- 3面採光
- 出窓
- 二重サッシ
- ウォークインクローゼット
- シューズボックス
- 全居室収納あり
- 温水洗浄トイレ
- シャワー付洗面化粧台
- 追い焚き風呂
- 浴室1坪以上
- コンロ3口以上
- システムキッチン
- モニタ付インターホン
- BSアンテナ
- 食器洗乾燥機
- 都市ガス
- エコジョーズ
- 24時間換気システム
- エアコン付
備考 築28年南向き・中古住宅ですが新築LIKEの家にフルリノベーション☆メンテナンスコストも抑えられております☆収納も充実☆和室を洋室へ改修☆一部断熱改修☆玄関ドア断熱ドアへ・水回り(キッチン・UB・トイレ・洗面)ボイラー・暖房設備も全て新品交換☆外装(屋根・壁)塗装☆床フローリング・建具交換☆内装クロス全て張替☆照明は全てLEDへ交換☆エアコン追加設置☆外構既存アスファルト・物置付 学区色がついているアイコンをクリックすると、本物件までの道順を見ることができます。
主な周辺施設色がついているアイコンをクリックすると、本物件までの道順を見ることができます。
-
※連合隊は物件情報の精度向上に努めています:「物件情報に誤りがある」「成約済みである」などお気付きの点がございましたらこちらよりご連絡ください。
写真枚数:12枚
株式会社TOUMEIは苫小牧、近郊の新築・改修・不動産買取仲介のご相談承ります。その他相談窓口の会社です。
創業38年の弊社は、注文住宅を中心に・デザインフルリノベーション、大規模リフォームから、プチ改修、不動産買取、仲介等、税理士による相談窓口、WEB事業部による相談など、多岐にわたりご相談に乗れる会社です☆