豊川町モデルハウスⅡ
ここに注目!苫小牧市豊川町南東角地に、最新モデルハウス「豊川町モデルハウスⅡ」が完成しました!広々4LDKの間取りは、ご家族の夢を育むゆとりの空間。角地で各居室には陽光あふれる住まいです。 開放感たっぷりのLDKは20帖。吹き抜けがさらに広がりを感じさせ、家族団らんの時間を明るく演出します。ウォークインクローゼットやシューズインクローゼット、全居室収納など、収納スペースも充実。すっきり片付いたお部屋で快適にお過ごしいただけます。駐車スペースは2台並列で停められます。外構工事(アスファルト舗装・中庭には人工芝・木製フェンス)工事も完備。 キッチンには食洗機、洗濯室には乾燥機「幹太くん」も完備しており、日々の暮らしを快適にする設備が揃っています。 豊川小学校まで徒歩4分、豊川4丁目公園まで徒歩6分と、子育て世代にもうれしい立地。周辺には商業施設も点在し、生活利便性も良好です。 TOUMEI×デザインのモデルハウスをご体感頂けましたら幸いです。 YouTube動画もよろしければご利用ください。 内覧はお手数ですが、予約制にて承っております。皆様のご来訪をこ心よりお待ち申し上げております(^^)
この物件は、仲介手数料がかかりません。
この物件の売主は、情報を掲載している不動産会社です。仲介物件ではないため、仲介手数料は発生しません。
| 価格 |
3,390万円
|
|---|---|
| 建物面積 | 125.44m² (37.94坪) |
| 土地面積 | 167.71m² (50.73坪)(公簿) |
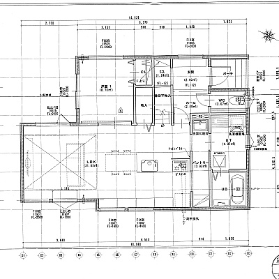
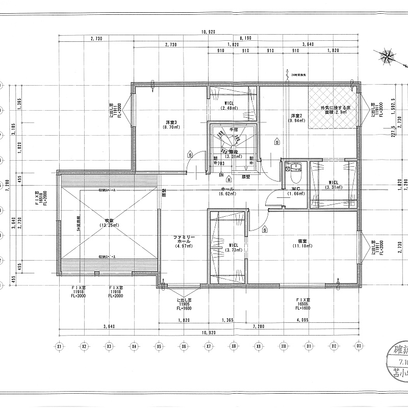
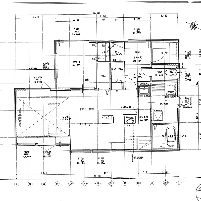
| 間取り | 4LDK1階:LDK20帖 洋室5.3帖 / 2階:洋室6.75帖 洋室6帖 洋室5.3帖 その他3帖 |
| 住所 | 北海道苫小牧市豊川町4丁目4-22 |
| 交通 | |
| 築年月 | 新築(2025年10月) |
| 駐車場 |
駐車可能台数:2台
|
【WEB面談可】
販売状況、見学、詳細を知りたい方はこちら!
お電話の際は「連合隊の物件」とお伝えください。
情報掲載期限:あと14日(更新日 2025/11/27)
- 物件写真・概要
- 周辺地図
-
【WEB面談可】
販売状況、見学、詳細を知りたい方はこちら!お電話の際は「連合隊の物件」とお伝えください。
0144-73-7565情報掲載期限:あと14日(更新日 2025/11/27)
おすすめポイント
- 即引渡し可
- 新築
- 角地
- 都市ガス
- 追い焚き風呂
- 土地付き提案住宅
- 近くて便利!徒歩5分以内にある施設
- 4分
4分- 周辺施設を地図で確認
物件概要
建物の階建 地上2階建 主要採光面 南東 構造 木造(2×4) 接道状況 角地 - 南東側幅6.50mの公道に7.96m接道
- 北東側幅8.00mの公道に16.58m接道
都市計画区域 市街化区域 私道負担 なし 地目/地勢 宅地 国土法届出 土地権利 所有権 用途地域 - 第1種中高層住居専用地域(建ぺい率:60% / 容積率:200%)
引渡し 即時 現況 空き 施工業者 株式会社TOUMEI 取引態様 売主 物件No 仲介手数料概算 取引態様が売主なので仲介手数料は不要です 設備・特徴 - 角地
- 閑静な住宅街
- タイル貼り
- 土地付き提案住宅
- デザイナーズ
- 日当り良好
- 照明器具付
- バリアフリー
- フローリング
- 吹き抜け
- 二重サッシ
- ウォークインクローゼット
- シューズボックス
- シューズインクローゼット
- 全居室収納あり
- トイレ2ヶ所以上
- 温水洗浄トイレ
- シャワー付洗面化粧台
- 追い焚き風呂
- 浴室1坪以上
- コンロ3口以上
- システムキッチン
- 食器洗乾燥機
- 都市ガス
- シーリングファン
- エコジョーズ
- モニタ付インターホン
- BSアンテナ
- カウンターキッチン
備考 ウォークインクローゼット付・南東角地・バリアフリー住宅・デザイナーズ物件・外構工事込・食洗器・衣類乾燥機完備・吹抜リビング・2階トイレ付・2階ファミリーホール・シューズクローゼット・電子錠・その他充実設備のモデルハウス 学区色がついているアイコンをクリックすると、本物件までの道順を見ることができます。
主な周辺施設色がついているアイコンをクリックすると、本物件までの道順を見ることができます。
-
※連合隊は物件情報の精度向上に努めています:「物件情報に誤りがある」「成約済みである」などお気付きの点がございましたらこちらよりご連絡ください。
写真枚数:28枚
株式会社TOUMEIは苫小牧、近郊の新築・改修・不動産買取仲介のご相談承ります。その他相談窓口の会社です。
創業38年の弊社は、注文住宅を中心に・デザインフルリノベーション、大規模リフォームから、プチ改修、不動産買取、仲介等、税理士による相談窓口、WEB事業部による相談など、多岐にわたりご相談に乗れる会社です☆