明野新町2丁目アパート1850万
ここに注目!周辺に大型商業施設イオン苫小牧店、ニトリ苫小牧店、テックランド苫小牧店があります。さらにすき家、やよい軒、回転ずしクリッパーなど気軽に入れる飲食店もあり便利な立地です。
| 価格 |
1,850万円
利回り12.97%
満室時想定年収:240万円
|
|---|---|
| 住所 | 北海道苫小牧市明野新町2-13-12 |
| 交通 | |
| 築年月 | 築33年(1992年4月) |
| 構造 | 木造 |
| 面積 | 建物:303.63m² (91.84坪)/ 土地:209.68m² (63.42坪)(公簿) |
| 現況 | 総戸数6戸 |
販売状況、見学、詳細を知りたい方はこちら!
お電話の際は「連合隊の物件」とお伝えください。
新着 情報掲載期限:あと29日(更新日 2026/1/12)
- 物件写真・概要
- 周辺地図
-
販売状況、見学、詳細を知りたい方はこちら!
おすすめポイント
- 利回り12%超
物件概要
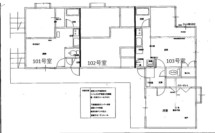
建物の階建 地上3階建 間取り 1DK×4戸、2LDK×2戸 駐車場 駐車場台数:6台接道状況 一方 - 北東側幅1.00mの道に接道
都市計画区域 市街化区域 用途地域 - 第2種中高層住居専用地域(建ぺい率:60% / 容積率:200%)
私道負担 なし 地目/地勢 宅地 地勢:平坦 国土法届出 不要 土地権利 所有権 引渡し 相談 取引態様 仲介 物件No 仲介手数料概算 不動産会社へお問合せください 設備・特徴 - バス/トイレ別
備考 主な周辺施設色がついているアイコンをクリックすると、本物件までの道順を見ることができます。
-
ホームページはこちら
北海道知事 胆振(1) 第1075号
(株)プロム
※連合隊は物件情報の精度向上に努めています:「物件情報に誤りがある」「成約済みである」などお気付きの点がございましたらこちらよりご連絡ください。
写真枚数:2枚