【価格お手頃で好立地】 築浅 都市ガス 五稜郭駅近くの 2×4住宅
ここに注目!主寝室はウォークインクローゼットで収納たっぷり。2階はプライベートが守られる間取になっています。おすすめポイント ・家族の顔が見える対面キッチン・各室収納・都市ガス・使いやすい動線
| 価格 |
2,380万円
|
|---|---|
| 建物面積 | 94.8m² (28.67坪) |
| 土地面積 | 120.96m² (36.59坪)(公簿) |
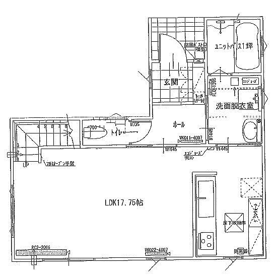
| 間取り | 3LDK1階:LDK17.75帖 / 2階:洋室7.43帖 洋室6帖 洋室6帖 |
| 住所 | 北海道函館市亀田本町90番7 |
| 交通 | |
| 築年月 | 築6年(2019年11月) |
| 駐車場 |
あり
|
販売状況、見学、詳細を知りたい方はこちら!
お電話の際は「連合隊の物件」とお伝えください。
情報掲載期限:あと28日(更新日 2025/12/17)
- 物件写真・概要
- 周辺地図
-
販売状況、見学、詳細を知りたい方はこちら!
おすすめポイント
- 駐車場あり
- 南向き
- 都市ガス
- 近くて便利!徒歩5分以内にある施設
- 5分
5分- 周辺施設を地図で確認
物件概要
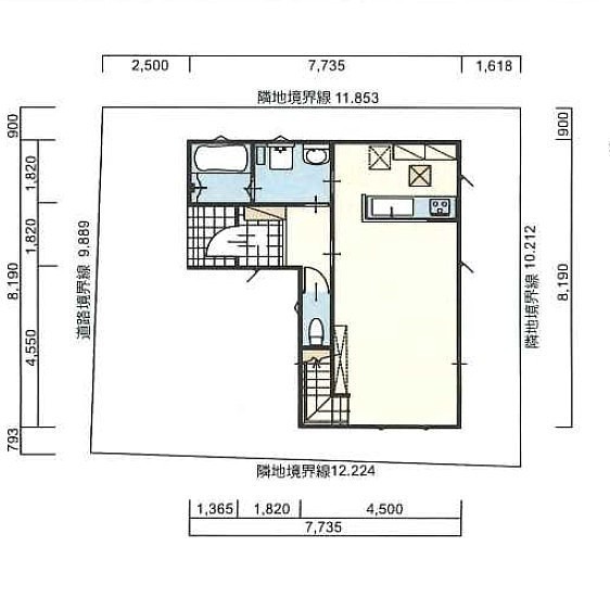
建物の階建 地上2階建 主要採光面 南 構造 木造(2×4) 接道状況 一方 - 北側幅6.50mの公道に9.89m接道
都市計画区域 市街化区域 私道負担 なし 地目/地勢 宅地 地勢:平坦 国土法届出 土地権利 所有権 用途地域 - 第1種住居地域(建ぺい率:60% / 容積率:200%)
引渡し 相談 現況 入居中 取引態様 仲介 物件No 仲介手数料概算 85万1,400円(金額は概算です。正確な金額は不動産会社へお問合せ下さい) 設備・特徴 - 整形地
- 物置
- 照明器具付
- フローリング
- ウォークインクローゼット
- 床下収納
- シューズボックス
- 温水洗浄トイレ
- シャワー付洗面化粧台
- 浴室に窓
- 浴室1坪以上
- コンロ3口以上
- システムキッチン
- カウンターキッチン
- 都市ガス
- エアコン付
- ガス暖房
- セントラル空調
- 24時間換気システム
- エコジョーズ
- モニタ付インターホン
備考 学区色がついているアイコンをクリックすると、本物件までの道順を見ることができます。
主な周辺施設色がついているアイコンをクリックすると、本物件までの道順を見ることができます。
- 北海道銀行亀田支店約562m(徒歩8分)
- セブンイレブン函館桐花通店約432m(徒歩6分)
- 医療法人同仁会函館記念病院約396m(徒歩5分)
- ヤマダデンキテックランド函館店約639m(徒歩8分)
- セイコーマート函館富岡店約616m(徒歩8分)
- 認定こども園太陽の子幼稚園約504m(徒歩7分)
- スーパー魚長昭和店約942m(徒歩12分)
- ワッツウィズ昭和生鮮夢市場店約948m(徒歩12分)
- 五稜郭認定こども園約816m(徒歩11分)
- スターバックスコーヒー函館五稜郭駅前店約699m(徒歩9分)
対象となりうる支援制度
函館市
支援制度に関するお問合せは、不動産会社ではなく、自治体の公式ページまたは担当課までご確認ください。
上記リンクは、支援制度の対象条件を一定以上満たした物件に対し自動表示しています。
-
ホームページはこちら
北海道知事 渡島(2) 第1175号
(株)函館BASE建築事務所 サイエンスホーム函館店〒041-0802
TEL:0138-84-8008(不動産部門)
TEL:0138-83-6688(サイエンスホーム函館店)
FAX:0138-83-6767
営業時間:10:00~18:00
定休日:毎週 土曜・祝日
- 加入団体
- (公社)北海道宅地建物取引業協会
- 保証協会
- (公社)全国宅地建物取引業保証協会
- 公正取引協議会
- (一社)北海道不動産公正取引協議会
※連合隊は物件情報の精度向上に努めています:「物件情報に誤りがある」「成約済みである」などお気付きの点がございましたらこちらよりご連絡ください。
写真枚数:28枚
敷地図
1階間取
2階間取
2階ホール 収納
2階主寝室
2階ウォークインクローゼット
2階溶質
エコジョーズ
函館BASE建築事務所は、お住まいを売るだけでなく、心豊かなライフスタイルをご提案します。
弊社でも冬は薪ストーブを焚き、夏は家庭菜園など少しラフなスタイルで仕事をしております。※※※※※※※ コロナ対策実施中 ※※※※※※※