柏木町店舗付住居
ここに注目!視認性の良い場所に、店舗付住居の物件です。 お気軽にお問い合わせ下さい
| 価格 |
2,350万円
|
|---|---|
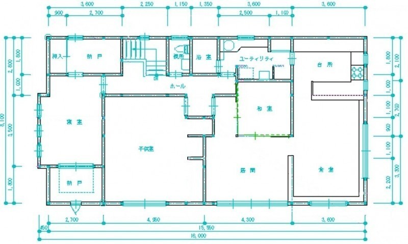
| 建物面積 | 284.26m² (85.98坪) |
| 土地面積 | 306.82m² (92.81坪)(公簿) |
| 間取り | その他1階:その他 / 2階:その他 |
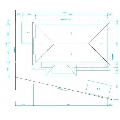
| 住所 | 北海道函館市柏木町38-2 |
| 交通 | 深堀町駅(徒歩4分)|函館バス「深堀町」停 (徒歩4分) |
| 築年月 | 築45年(1980年12月) |
| 駐車場 |
あり 駐車可能台数:3台
|
販売状況、見学、詳細を知りたい方はこちら!
お電話の際は「連合隊の物件」とお伝えください。
情報掲載期限:あと14日(更新日 2025/12/5)
- 物件写真・概要
- 周辺地図
-
販売状況、見学、詳細を知りたい方はこちら!
おすすめポイント
- 駐車2台以上可
- 車庫あり
- 駅徒歩5分以内
- 近くて便利!徒歩5分以内にある施設
- 5分
5分- 周辺施設を地図で確認
交通色がついているアイコンをクリックすると、本物件までの道順を見ることができます。
- 深堀町駅函館市電5系統、函館市電2系統徒歩4分(約311m)
- 函館バス「深堀町」停 徒歩4分(約315m)
物件概要
建物の階建 地上2階建 主要採光面 西 構造 木造(在来工法) 接道状況 一方 - 西側幅20.00mの公道に12.30m接道
都市計画区域 市街化区域 私道負担 なし 地目/地勢 宅地 地勢:平坦 国土法届出 不要 土地権利 所有権 用途地域 - 準住居地域(建ぺい率:60% / 容積率:200%)
引渡し 相談 現況 空き 取引態様 仲介 物件No 仲介手数料概算 84万1,500円(金額は概算です。正確な金額は不動産会社へお問合せ下さい) 設備・特徴 - 整形地
- 車庫あり
- 玄関フード
- トイレ2ヶ所以上
備考 店舗付住宅 路面店 学区色がついているアイコンをクリックすると、本物件までの道順を見ることができます。
主な周辺施設色がついているアイコンをクリックすると、本物件までの道順を見ることができます。
- 幼保連携型駒場認定こども園約915m(徒歩12分)
- 函館柏木郵便局約579m(徒歩8分)
- マックスバリュ深堀店約358m(徒歩5分)
- セブンイレブン函館柏木町店約405m(徒歩6分)
- サツドラ函館柏木店約735m(徒歩10分)
対象となりうる支援制度
函館市
支援制度に関するお問合せは、不動産会社ではなく、自治体の公式ページまたは担当課までご確認ください。
上記リンクは、支援制度の対象条件を一定以上満たした物件に対し自動表示しています。
-
ホームページはこちら
北海道知事 渡島(14) 第310号
(株)渡島不動産綜合センター- 加入団体
- (公社)北海道宅地建物取引業協会、(一社)全国賃貸不動産管理業協会
- 保証協会
- (公社)全国宅地建物取引業保証協会
- 公正取引協議会
- (一社)北海道不動産公正取引協議会
※連合隊は物件情報の精度向上に努めています:「物件情報に誤りがある」「成約済みである」などお気付きの点がございましたらこちらよりご連絡ください。
写真枚数:22枚
◆◆営業時間 9:00~18:00◆◆ 定休日 日曜・祝日 事前にご連絡いただければ日曜・祝日も内覧可能です。お気軽にお問い合わせ下さい!!