函館MARKS THE TOWER(キラリス函館)1203号室
ここに注目!ここだよ~♪ 函館駅前キラリス函館♪ 12階部分3LDK♪ 函館の玄関口大門エリア♪ 眺望良好・陽当たり良好な角部屋♪ 入居期間が短いため室内美室です♪ 函館の中心に暮らし未来に向けて新たな誇りを持って住まう歓びがここにはあります♪
| 価格 |
5,790万円
坪単価:約216.4万円/坪
管理費1万5,180円/月修繕積立金1万4,460円/月
|
|---|---|
| 間取・専有 |
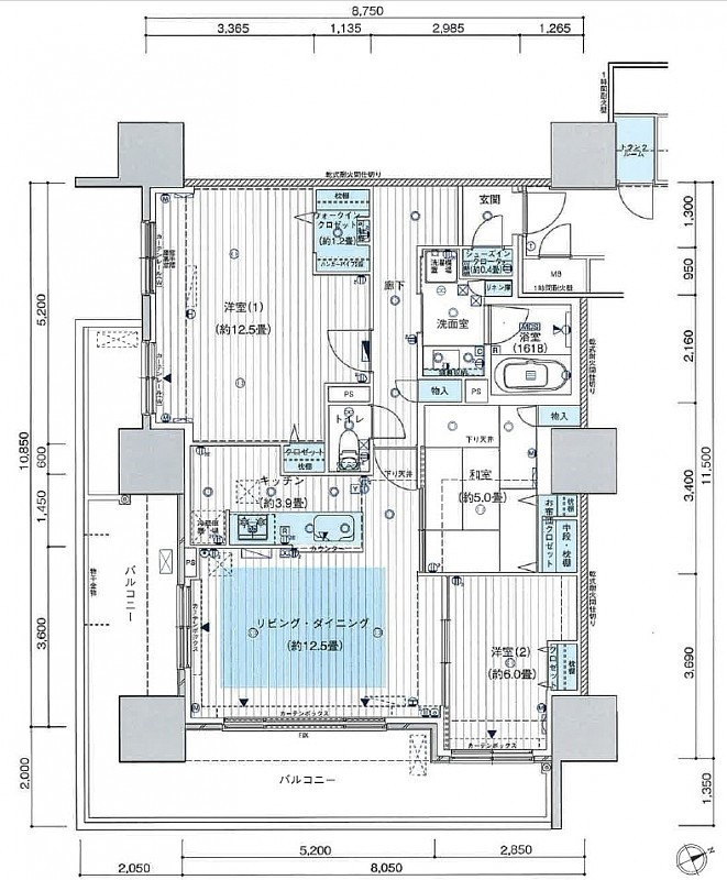
3LDK(88.43m²)
|
| 住所 | 北海道函館市若松町20-1 |
| 交通 | 函館駅(徒歩3分) |
| 築年月 | 築8年(2017年2月) |
| 駐車場 |
空き待ち
|
販売状況、見学、詳細を知りたい方はこちら!
お電話の際は「連合隊の物件」とお伝えください。
情報掲載期限:あと29日(更新日 2025/12/19)
- 物件写真・概要
- 周辺地図
-
▼クリックで左の拡大画像が変わります。 すべての写真を拡大
販売状況、見学、詳細を知りたい方はこちら!
おすすめポイント
- 都市ガス
- 角部屋
- 追い焚き風呂
- 2階以上
- オートロック
- エレベーター
- 駅徒歩3分以内
- 複数路線利用可
- 近くて便利!徒歩5分以内にある施設
- 3分
3分- 5分
5分- 4分
4分- 周辺施設を地図で確認
交通色がついているアイコンをクリックすると、本物件までの道順を見ることができます。
物件概要
所在階/建物の階建 12階(1203) / 地上16階 地下1階建 総戸数 94戸 主要採光面 構造 鉄筋コンクリート(RC)造 バルコニー あり- バルコニー南向き
土地権利 所有権 引渡し 現況 空き 管理人 管理形態 管理組合 指定なし 取引態様 仲介 物件No 仲介手数料概算 197万6,700円(金額は概算です。正確な金額は不動産会社へお問合せ下さい) 設備・特徴 - 複数路線利用可
- エレベーター
- 駐輪場
- 角部屋
- 日当り良好
- 室内洗濯機置場
- バリアフリー
- フローリング
- 二重サッシ
- 納戸・トランクルーム
- ウォークインクローゼット
- シューズインクローゼット
- 全居室収納あり
- 温水洗浄トイレ
- シャワー付洗面化粧台
- 浴室乾燥機
- 追い焚き風呂
- 浴室1坪以上
- コンロ3口以上
- システムキッチン
- 都市ガス
- ガス暖房
- 24時間換気システム
- エコジョーズ
- オートロック
- モニタ付インターホン
- 防犯カメラ
- 宅配BOX
- ディンプルキー
備考 角部屋 ウォークインクローゼット付き 学区色がついているアイコンをクリックすると、本物件までの道順を見ることができます。
主な周辺施設色がついているアイコンをクリックすると、本物件までの道順を見ることができます。
- 北洋銀行函館中央支店約201m(徒歩3分)
- セブンイレブン函館若松町店約228m(徒歩3分)
- ハセガワストア函館駅前店約277m(徒歩4分)
- 函館駅前郵便局約250m(徒歩4分)
- ローソン函館東雲店約337m(徒歩5分)
- マックスバリュ若松店約393m(徒歩5分)
- 大原公務員・医療事務・語学専門学校函館校約306m(徒歩4分)
- 朝市約368m(徒歩5分)
- 函館市役所約659m(徒歩9分)
- 函館中央郵便局約731m(徒歩10分)
対象となりうる支援制度
函館市
支援制度に関するお問合せは、不動産会社ではなく、自治体の公式ページまたは担当課までご確認ください。
上記リンクは、支援制度の対象条件を一定以上満たした物件に対し自動表示しています。
-
※連合隊は物件情報の精度向上に努めています:「物件情報に誤りがある」「成約済みである」などお気付きの点がございましたらこちらよりご連絡ください。
写真枚数:27枚
正面玄関♪
間取図♪
外観1♪
外観2♪
エントランスホール♪
玄関内♪
シューズクローゼット♪
リビング1♪
リビング2♪
キッチン♪
キッチン2♪
キッチン3♪
キッチン4♪
ユーティリティー♪
浴室♪
洗濯機置場♪
トイレ♪
洋室12.5帖♪
和室5帖♪
洋室6帖♪
トランクルーム♪
自転車置場♪
タイヤ置場♪
宅配ボックス♪
眺望1♪
眺望2♪
眺望3♪
☆ホームページは情報満載☆ 上記よりアクセスください♪