小樽市春香町 戸建・別荘
ここに注目!☆日本海一望のオーシャンビュー!☆石狩湾を対岸に暑寒別岳、増毛連峰を望む! ☆札幌・小樽どちらも市内まで車で20分の好立地!☆スキー場、ゴルフ場などに隣接するリゾートエリア! ・オーンズスキー場まで徒歩7分! ・小樽カントリークラブまで車で7分! ・チサンカントリークラブまで車で7分! ☆別棟バーベキューハウス有り!☆敷地も建物も広々豪華な造り! 住居・別荘のほか、研修施設などに!! 庭はガーデニングのほか、農園としても! ☆屋内大型プール付!24時間全自動温水!☆ウッドデッキ付!(1階、2階合わせて3ヵ所88.72㎡) ☆平成24年4月リフォーム済み! 屋根塗装 外壁塗装 ☆浴室2箇所・ヒバの浴槽・ジャグジー・サウナ有り ☆大型車も駐車可能 車庫2台+屋外10台以上可
| 価格 |
1億5,000万円
|
|---|---|
| 建物面積 | 489.56m² (148.09坪) |
| 土地面積 | 2904.23m² (878.52坪)(公簿) |
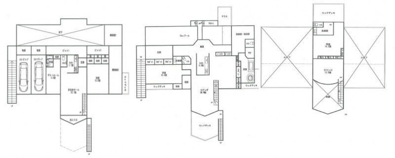
| 間取り | 6LDK1階:和室15帖 洋室22.7帖 / 2階:LDK36.8帖 洋室15帖 / 3階:洋室14.3帖 |
| 住所 | 北海道小樽市春香町333-4 |
| 交通 | 銭函駅(車で6分)道順を見る |
| 築年月 | 築25年(2000年12月) |
| 駐車場 |
あり 駐車可能台数:15台
車庫2台、屋外10台以上可能 |
販売状況、見学、詳細を知りたい方はこちら!
お電話の際は「連合隊の物件」とお伝えください。
情報掲載期限:あと28日(更新日 2025/12/23)
- 物件写真・概要
- 周辺地図
-
▼クリックで左の拡大画像が変わります。 すべての写真を拡大
販売状況、見学、詳細を知りたい方はこちら!
おすすめポイント
- 駐車2台以上可
- 車庫あり
- リフォーム済み
交通色がついているアイコンをクリックすると、本物件までの道順を見ることができます。
物件概要
建物の階建 地上3階建 主要採光面 南西 構造 その他(木・鉄筋コンクリート造合金メッキ鋼板葺3階建) 接道状況 一方 - 東側幅6.00mの公道に93.70m接道
都市計画区域 市街化区域 私道負担 地目/地勢 宅地 地勢:高台 国土法届出 要届出 土地権利 所有権 用途地域 - 第1種住居地域(建ぺい率:60% / 容積率:200%)
引渡し 相談 現況 入居中 取引態様 仲介 物件No 仲介手数料概算 501万6,000円(金額は概算です。正確な金額は不動産会社へお問合せ下さい) 修繕履歴 - 2024年9月頃に屋根・外壁・その他の箇所をリフォームしています。施工内容:屋根、外壁一部塗装、プール塗装
設備・特徴 - 高台に立地
- 車庫あり
- 物置
- 庭が広い(10坪以上)
- デザイナーズ
- 日当り良好
- 照明器具付
- フローリング
- 吹き抜け
- 天井高2.5m以上
- シューズインクローゼット
- トイレ2ヶ所以上
- 温水洗浄トイレ
- シャワー付洗面化粧台
- システムキッチン
- オーシャンビュー(海が見える立地)
- リゾート向け
備考 浄化槽 学区色がついているアイコンをクリックすると、本物件までの道順を見ることができます。
主な周辺施設色がついているアイコンをクリックすると、本物件までの道順を見ることができます。
-
ホームページはこちら
北海道知事 石狩(7) 第5882号
(株)さくらホーム
※連合隊は物件情報の精度向上に努めています:「物件情報に誤りがある」「成約済みである」などお気付きの点がございましたらこちらよりご連絡ください。
写真枚数:26枚
リゾートエリアに立地
間取り図
車庫2台付
建物階段
建物後部
物置スペース
リビング
リビング
開放的なリビング
リビング
リビング
リビング
暖房
3階から2階を見る
ウッドデッキ
ウッドデッキ
室内から
庭
庭
周辺
周辺
周辺
スノークルーズオーンズ
ラルズ
張碓郵便局
セブンイレブン
さくらホームは各得意分野を持つ社長と社員が、どんな時でも真心をこめて対応させていただきます。
皆様の大切な財産の査定や様々なニーズに、過去の取引経験と豊富なデータからスピーディーな情報と適切なアドバイスでお応えし、最良の選択のお手伝いをいたします。