ハイム北斗
ここに注目!地下鉄東豊線「月寒中央」駅徒歩3分。2LDK×6戸。現在満室、利回り9.18%!1階に5台分の駐車スペースあり。全居室6帖以上。
| 価格 |
4,000万円
利回り9.17%
満室時想定年収:367万2,000円
|
|---|---|
| 住所 | 北海道札幌市豊平区月寒東一条7丁目4-14 |
| 交通 | 南郷7丁目駅(徒歩20分)|月寒中央駅(徒歩6分)道順を見る |
| 築年月 | 築31年(1994年3月) |
| 構造 | その他(木・鉄筋コンクリート造) |
| 面積 | 建物:453.6m² (137.21坪)/ 土地:222.01m² (67.15坪)(公簿) |
| 現況 | 現在満室(総戸数6戸中 6戸賃貸中) |
販売状況、見学、詳細を知りたい方はこちら!
お電話の際は「連合隊の物件」とお伝えください。
情報掲載期限:あと30日(更新日 2025/12/21)
- 物件写真・概要
- 周辺地図
-
▼クリックで左の拡大画像が変わります。 すべての写真を拡大
販売状況、見学、詳細を知りたい方はこちら!
おすすめポイント
- 現在満室
交通色がついているアイコンをクリックすると、本物件までの道順を見ることができます。
物件概要
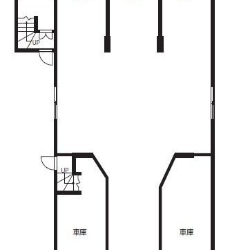
建物の階建 地上3階建 間取り 2LDK×6戸 駐車場 あり 駐車場台数:5台接道状況 一方 - 北東側幅12.95mの公道に11.30m接道 位置指定:無
都市計画区域 市街化区域 用途地域 - 第2種住居地域(建ぺい率:60% / 容積率:200%)
私道負担 地目/地勢 宅地 地勢:平坦 国土法届出 土地権利 所有権 引渡し 即時 取引態様 仲介 物件No 仲介手数料概算 138万6,000円(金額は概算です。正確な金額は不動産会社へお問合せ下さい) 設備・特徴 - バス/トイレ別
備考 固定資産税令和6年度:174,100円 建ぺい率オーバー。検査済証無し 主な周辺施設色がついているアイコンをクリックすると、本物件までの道順を見ることができます。
-
ホームページはこちら
北海道知事 石狩(7) 第5882号
(株)さくらホーム
※連合隊は物件情報の精度向上に努めています:「物件情報に誤りがある」「成約済みである」などお気付きの点がございましたらこちらよりご連絡ください。
写真枚数:23枚
外観
2・3階同間取り
前面道路
外観
歩道、外観
1階部分車庫
リビング(室内リフォーム中)
リビング
キッチン
リビング出窓
灯油暖房
浴室
洗面化粧台
ユーティリティー
洋室(リフォーム中)
トイレ
玄関ドア
1階ガレージ内
車庫入口
アークス
セイコーマート
フードセンター
北海道銀行
さくらホームは各得意分野を持つ社長と社員が、どんな時でも真心をこめて対応させていただきます。
皆様の大切な財産の査定や様々なニーズに、過去の取引経験と豊富なデータからスピーディーな情報と適切なアドバイスでお応えし、最良の選択のお手伝いをいたします。