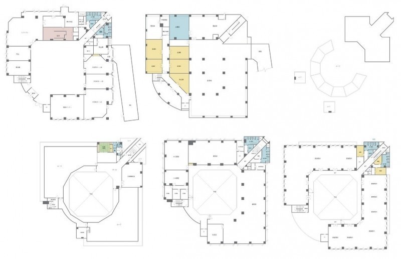
多目的イベントホール・美術館施設
ここに注目!北海道エリアで新たなビジネスチャンスをお探しの方へ! 旧石狩美術館を活用した、多目的イベントホール・美術館施設のご紹介です。 イベントホール、美術館、音楽施設、物販ショールーム、レンタル施設など、幅広い用途でご利用いただけます。 札幌都心部から車で約30分。中央バス「新港中央1丁目」停からは徒歩1分とアクセスも良好です。 鉄骨鉄筋コンクリート造地下1階付地上4階建。広大な床面積約2931坪、土地約2561坪を誇ります。 84台収容可能な無料駐車場を完備し、屋内駐車場や大型車の進入も可能です。 別棟にはレストラン個室32室(200名収容)が併設されており、多様なニーズに応えられます。 事務所付きで上下水道、電気も整備済み。コンビニまで徒歩3分と周辺環境も便利です。 この魅力的な施設を現地でご覧になりませんか?詳細はお気軽にお問い合わせください。内覧をご希望の際は、3日前までにご連絡をお願いいたします。
| 価格 |
3億円
|
|---|---|
| 建物面積 | 9691.94m² (2931.81坪) |
| 土地面積 | 8466.35m² (2561.07坪)(公簿) |
| 間取・専有 | |
| 住所 | 北海道石狩市新港中央1丁目710 |
| 交通 | 中央バス「新港中央1丁目」停 (徒歩1分) |
| 築年月 | 築33年(1992年5月) |
| 駐車場 |
あり 駐車可能台数:84台
|
販売状況、見学、詳細を知りたい方はこちら!
お電話の際は「連合隊の物件」とお伝えください。
情報掲載期限:あと30日(更新日 2025/12/26)
- 物件写真・概要
- 周辺地図
-
▼クリックで左の拡大画像が変わります。 すべての写真を拡大
販売状況、見学、詳細を知りたい方はこちら!
おすすめポイント
- 駐車2台以上可
- 事務所付
- 大型車進入可
交通
- 麻生駅札幌市営地下鉄南北線バス45分→ 中央バス「新港中央1丁目」停 徒歩1分
物件概要
所在階/建物の階建 地上4階 地下1階建 総戸数 1戸 主要採光面 構造 鉄骨鉄筋コンクリート(SRC)造 販売区画数/
総区画数-/- 建築条件 なし 接道状況 角地 - 北東側幅18.00mの公道に接道
- 北西側幅40.00mの公道に接道
都市計画区域 市街化区域 私道負担 地目/地勢 地勢:平坦 国土法届出 土地権利 所有権 用途地域 - 準工業地域(建ぺい率:60% / 容積率:200%)
引渡し 相談 現況 空き 管理人 管理形態 管理組合 指定なし 取引態様 仲介 物件No 仲介手数料概算 996万6,000円(金額は概算です。正確な金額は不動産会社へお問合せ下さい) 設備・特徴 - 大型車進入可
- 屋内駐車場
- 事務所付
- 上下水道
- 電気
備考 令和6年度固定資産税:1857万円 内覧をご希望の方は、3日前までにご希望日時をご連絡ください。 主な周辺施設色がついているアイコンをクリックすると、本物件までの道順を見ることができます。
-
ホームページはこちら
北海道知事 石狩(7) 第5882号
(株)さくらホーム
※連合隊は物件情報の精度向上に努めています:「物件情報に誤りがある」「成約済みである」などお気付きの点がございましたらこちらよりご連絡ください。
写真枚数:29枚
旧石狩美術館
美術館スペース間取
建物外観
地下駐車場
レストランスペース
個室レストラン32室
ホールスペース
ホールスペース
美術品設置スペース
ホールスペース
会議室
和室
控室キッチン
浴室
館内
エントランス
エントランス
エントランス
個室レストラン
館内
厨房
トイレ
エントランス
エントランス
館内設備
厨房設備
セイコーマート
セブンイレブン
ツルハ
さくらホームは各得意分野を持つ社長と社員が、どんな時でも真心をこめて対応させていただきます。
皆様の大切な財産の査定や様々なニーズに、過去の取引経験と豊富なデータからスピーディーな情報と適切なアドバイスでお応えし、最良の選択のお手伝いをいたします。