新琴似4条16丁目 店舗付住宅
ここに注目!札幌市北区新琴似に位置する、温もりあふれる戸建住宅のご紹介です。バス停「新琴似4条16丁目」まで徒歩1分と、通勤・通学に大変便利な立地が魅力ですね。南向きの角地で、日当たり良好な明るいリビングは、ご家族の笑顔が集まる空間になることでしょう。 広々とした2LDKの間取りは、専有面積124.2㎡。注目は、ご家族皆様に優しいホームエレベーター付きであること。お買い物帰りや、小さなお子様を抱えての移動もスムーズです。1階リビングは店舗としてもご利用可能なので、ご自宅でスイーツショップや雑貨店、サロンや教室を開きたい方にもぴったりですね。もちろん、開放的な広々リビングとしても使用可能。 システムキッチンや温水洗浄トイレ、エアコンなど、日々の暮らしを快適にする設備も充実。スーパーやコンビニ、公園も徒歩圏内に揃い、生活利便性も良好です。小学校・中学校も近く、子育て世代にも安心の住環境。ぜひ一度、この素敵なお住まいをご覧ください。
この物件は、仲介手数料がかかりません。
この物件の売主は、情報を掲載している不動産会社です。仲介物件ではないため、仲介手数料は発生しません。
| 価格 |
2,180万円
|
|---|---|
| 建物面積 | 124.2m² (37.57坪) |
| 土地面積 | 93.27m² (28.21坪)(公簿) |
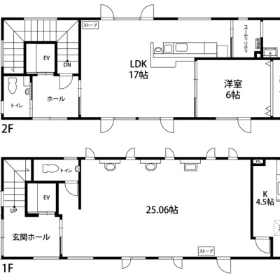
| 間取り | 2LDK1階:LDK / 2階:洋室 洋室 |
| 住所 | 北海道札幌市北区新琴似四条16丁目5-30 |
| 交通 | JR北海道バス 「新琴似4条16丁目」停(徒歩1分)|JR北海道バス 「新琴似4条16丁目」停(徒歩1分) |
| 築年月 | 築16年(2009年7月) |
| 駐車場 |
あり 駐車可能台数:1台
軽自動車1台 |
販売状況、見学、詳細を知りたい方はこちら!
お電話の際は「連合隊の物件」とお伝えください。
情報掲載期限:あと28日(更新日 2026/5/18)
- 物件写真・概要
- 周辺地図
-
▼クリックで左の拡大画像が変わります。 すべての写真を拡大
販売状況、見学、詳細を知りたい方はこちら!
おすすめポイント
- 即引渡し可
- 駐車場あり
- 角地
- 南向き
- 近くて便利!徒歩5分以内にある施設
- 3分
3分- 周辺施設を地図で確認
交通
- JR北海道バス 「新琴似4条16丁目」停徒歩1分
- 新琴似駅JR札沼線バス12分→ JR北海道バス 「新琴似4条16丁目」停徒歩1分
物件概要
建物の階建 地上2階建 主要採光面 南 構造 木造 接道状況 角地 - 北西側幅20.00mの公道に5.40m接道
- 北東側幅6.00mの私道に17.10m接道
都市計画区域 市街化区域 私道負担 地目/地勢 宅地 地勢:平坦 国土法届出 土地権利 所有権 用途地域 - 準住居地域(建ぺい率:60% / 容積率:200%)
引渡し 即時 現況 空き 取引態様 売主 物件No 仲介手数料概算 取引態様が売主なので仲介手数料は不要です 設備・特徴 - 角地
- エレベーター
- 日当り良好
- 照明器具付
- フローリング
- 温水洗浄トイレ
- システムキッチン
- LPガス
- エアコン付
備考 学区色がついているアイコンをクリックすると、本物件までの道順を見ることができます。
主な周辺施設色がついているアイコンをクリックすると、本物件までの道順を見ることができます。
-
ホームページはこちら
北海道知事 石狩(7) 第5882号
(株)さくらホーム
※連合隊は物件情報の精度向上に努めています:「物件情報に誤りがある」「成約済みである」などお気付きの点がございましたらこちらよりご連絡ください。
写真枚数:30枚
外観
1階は旧美容室
外観
外観
外観
外観
1階リビング(店舗として使用も可)
ホームエレベーター
流し台
1階からの階段
玄関
給湯器
手すり付き階段
トイレ
ホームエレベーター内部
ユーティリティー
暖房
エアコン
トイレ
2階キッチン
パネルヒーター
キッチン
1階リフォームイメージ
2階リフォームイメージ
2階リビングリフォームイメージ
2階キッチンリフォームイメージ
セイコーマート
セブンイレブン
アークス
新琴似7条郵便局
さくらホームは各得意分野を持つ社長と社員が、どんな時でも真心をこめて対応させていただきます。
皆様の大切な財産の査定や様々なニーズに、過去の取引経験と豊富なデータからスピーディーな情報と適切なアドバイスでお応えし、最良の選択のお手伝いをいたします。