山の手5条10丁目 事業用地
ここに注目!札幌市西区山の手5条に、約6081㎡(約1839坪)の広大な事業用地が販売開始です! 高台に位置し、東側27m、北側8mの公道に面した開放感ある角地。多様な事業展開が期待できる土地として、多くの方にご注目いただいております。 敷地内には樹齢50年の樹木や池があり、豊かな自然を感じられるのも魅力。現在は既存の平家建物がございますが、更地でのお渡しも可能です。また、建物の利用についてもご相談いただけますので、柔軟な計画が可能です。 周辺にはセイコーマートやローソン、病院(北海道医療センター)、小学校(山の手小学校)などが徒歩圏内にあり、利便性も兼ね備えたエリア。 第一種住居地域・第一種中高層住居専用地域にまたがっており、住宅地としての開発はもちろん、医療・福祉施設や教育機関などの事業計画もご検討いただけます。 この特別な土地で、あなたの夢を実現しませんか?詳細資料のご請求や現地ご案内など、お気軽にお問い合わせください。
| 価格 |
5億5,000万円
坪単価:約29.9万円/坪
|
|---|---|
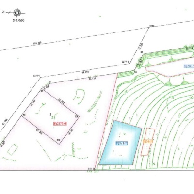
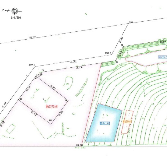
| 土地面積 | 6081.43m² (1839.63坪)(公簿) |
| 住所 | 北海道札幌市西区山の手五条10丁目1-1 |
| 交通 | 琴似駅(徒歩25分)道順を見る |
| 現況 | 建物付き(更地渡し可能)(建物利用についても相談可) |
| 建築条件 | なし |
| 用途地域 |
|
販売状況、見学、詳細を知りたい方はこちら!
お電話の際は「連合隊の物件」とお伝えください。
情報掲載期限:あと16日(更新日 2025/11/21)
- 物件写真・概要
- 周辺地図
-
▼クリックで左の拡大画像が変わります。 すべての写真を拡大
販売状況、見学、詳細を知りたい方はこちら!
おすすめポイント
- 建築条件なし
- 角地
- 上下水道
- 電気
- 近くて便利!徒歩5分以内にある施設
- 3分
3分- 3分
3分- 周辺施設を地図で確認
交通色がついているアイコンをクリックすると、本物件までの道順を見ることができます。
物件概要
販売区画数/
総区画数-/- 接道状況 角地 - 東側幅27.00mの公道に49.70m接道
- 北側幅8.00mの公道に115.40m接道
都市計画区域 市街化区域 私道負担 地目/地勢 宅地 地勢:その他 国土法届出 要届出 土地権利 所有権 用途地域 - 第1種住居地域(建ぺい率:60% / 容積率:200%)
- 第1種中高層住居専用地域(建ぺい率:60% / 容積率:200%)
引渡し 相談 現況 建物付き(更地渡し可能)(建物利用についても相談可) 取引態様 仲介 物件No 仲介手数料概算 1,821万6,000円(金額は概算です。正確な金額は不動産会社へお問合せ下さい) 設備・特徴 - 高台に立地
- 角地
- 上下水道
- 電気
備考 住宅あり、使用可能。(建物面積:406,20㎡、平家、築42年) 固定資産税評価額:172,634,400円、建物10,153,600円 学区色がついているアイコンをクリックすると、本物件までの道順を見ることができます。
主な周辺施設色がついているアイコンをクリックすると、本物件までの道順を見ることができます。
-
ホームページはこちら
北海道知事 石狩(7) 第5882号
(株)さくらホーム
※連合隊は物件情報の精度向上に努めています:「物件情報に誤りがある」「成約済みである」などお気付きの点がございましたらこちらよりご連絡ください。
写真枚数:22枚
樹齢50年の樹木有
現地
現地
池あり。
建物あり
平家
角地に立地
現地
現地
現地衣
現地
現地
現地
外観
外観
外観
セイコーマート
コープさっぽろ
ローソン
ラルズマート
さくらホームは各得意分野を持つ社長と社員が、どんな時でも真心をこめて対応させていただきます。
皆様の大切な財産の査定や様々なニーズに、過去の取引経験と豊富なデータからスピーディーな情報と適切なアドバイスでお応えし、最良の選択のお手伝いをいたします。