小樽市張碓町 事業用地
ここに注目!北海道小樽市張碓町に、約1837坪(6074㎡)の広大な事業用地のご紹介です! 美しい海を見渡せる開放的な立地が、この物件の大きな魅力。 市街化区域内の第一種住居地域に指定されており、建ぺい率60%、容積率200%と、事業の自由度が高いのもポイント。海の景観を活かしたリゾート施設や宿泊施設、または広々とした住居兼事業施設など、様々な夢のプロジェクトを実現できる可能性を秘めています。 周辺には、徒歩約1分の張碓郵便局(約67m)、徒歩約8分の小樽市立張碓小学校(約566m)があり、利便性も整っています。 現状は立木がありますが、この豊かな自然を活かして、唯一無二の空間を創造してみませんか?この特別な土地で、あなたの新たな事業を始めてみませんか?別荘、タウンハウスなどの建設用地としてもおすすめです!詳細はお気軽にお問い合わせください。
| 価格 |
5,500万円
坪単価:約3.0万円/坪
|
|---|---|
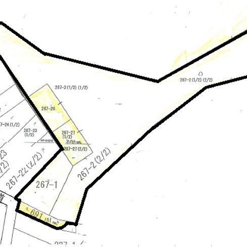
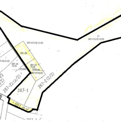
| 土地面積 | 6074m² (1837.38坪)(公簿) |
| 住所 | 北海道小樽市張碓町267番1、267番2、267番26、691番 |
| 交通 | |
| 現況 | その他(立木あり) |
| 建築条件 | なし |
| 用途地域 |
|
販売状況、見学、詳細を知りたい方はこちら!
お電話の際は「連合隊の物件」とお伝えください。
情報掲載期限:あと24日(更新日 2025/12/15)
- 物件写真・概要
- 周辺地図
-
販売状況、見学、詳細を知りたい方はこちら!
おすすめポイント
- 即引渡し可
- 建築条件なし
- 上下水道
- 近くて便利!徒歩5分以内にある施設
- 1分
1分- 周辺施設を地図で確認
物件概要
販売区画数/
総区画数-/- 接道状況 一方 - 西側幅5.40mの公道に5.70m接道
都市計画区域 市街化区域 私道負担 地目/地勢 原野 / 雑種地 地勢:その他 国土法届出 土地権利 所有権 用途地域 - 第1種住居地域(建ぺい率:60% / 容積率:200%)
引渡し 即時 現況 その他(立木あり) 取引態様 仲介 物件No 仲介手数料概算 188万1,000円(金額は概算です。正確な金額は不動産会社へお問合せ下さい) 設備・特徴 - オーシャンビュー(海が見える立地)
- 上下水道
- リゾート向け
備考 立木あり。現況渡し 学区色がついているアイコンをクリックすると、本物件までの道順を見ることができます。
主な周辺施設色がついているアイコンをクリックすると、本物件までの道順を見ることができます。
-
ホームページはこちら
北海道知事 石狩(7) 第5882号
(株)さくらホーム
※連合隊は物件情報の精度向上に努めています:「物件情報に誤りがある」「成約済みである」などお気付きの点がございましたらこちらよりご連絡ください。
写真枚数:10枚
外観
外観
現地
現地
市道に接道
ラルズマート
桂岡幼稚園
張碓郵便局
スノークルーンズオーンズ
さくらホームは各得意分野を持つ社長と社員が、どんな時でも真心をこめて対応させていただきます。
皆様の大切な財産の査定や様々なニーズに、過去の取引経験と豊富なデータからスピーディーな情報と適切なアドバイスでお応えし、最良の選択のお手伝いをいたします。