【オーナーチェンジ】伊藤マンション
ここに注目!【オーナーチェンジ】千歳市大和に佇む、鉄骨造のしっかりとした造りが魅力の3階建てマンションです。1LDKと2LDKの全9戸で構成されており、単身の方からご家族まで、幅広い層からの安定した入居が期待できる収益物件として大変おすすめです。 周辺には徒歩1分のコンビニをはじめ、小さなお子様がいらっしゃるご家庭には嬉しい幼稚園(徒歩3分)、日々の買い物に便利なスーパー(徒歩13分)、もしもの時に安心な病院(徒歩10分)など、生活に欠かせない施設が充実しています。入居者様の快適な暮らしをしっかりとサポートしてくれるでしょう。 お部屋はバス・トイレ別で快適な空間が確保され、角地ならではの開放感も嬉しいポイントです。
| 価格 |
5,380万円
利回り10.28%
満室時想定年収:553万2,000円
|
|---|---|
| 住所 | 北海道千歳市大和1-4-19 |
| 交通 | 千歳駅(徒歩24分)道順を見る |
| 築年月 | 築36年(1990年3月) |
| 構造 | 鉄骨造 |
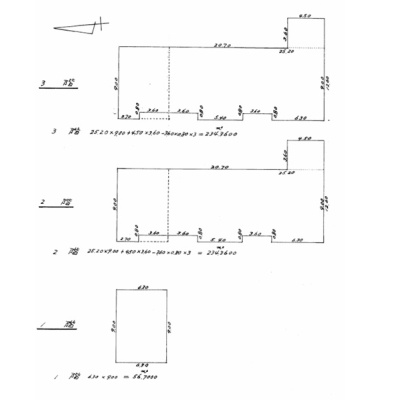
| 面積 | 建物:525.42m² (158.93坪)/ 土地:362.26m² (109.58坪)(公簿) |
| 現況 | 総戸数9戸 一部賃貸中 |
販売状況、見学、詳細を知りたい方はこちら!
お電話の際は「連合隊の物件」とお伝えください。
情報掲載期限:あと29日(更新日 2026/3/16)
- 物件写真・概要
- 周辺地図
-
販売状況、見学、詳細を知りたい方はこちら!
おすすめポイント
- 利回り10%超
- 土地100坪超
- 戸数分駐車場あり
交通色がついているアイコンをクリックすると、本物件までの道順を見ることができます。
物件概要
建物の階建 地上3階建 間取り 2LDK×7戸、1LDK×2戸 駐車場 あり 駐車場台数:9台接道状況 角地 - 北側幅18.00mの公道に9.84m接道
- 西側幅6.00mの公道に27.72m接道
都市計画区域 市街化区域 用途地域 - 第2種中高層住居専用地域(建ぺい率:60% / 容積率:200%)
私道負担 なし 地目/地勢 宅地 地勢:平坦 国土法届出 土地権利 所有権 引渡し 相談 建築確認番号 第2189号 取引態様 仲介 物件No 060 仲介手数料概算 184万1,400円(金額は概算です。正確な金額は不動産会社へお問合せ下さい) 設備・特徴 - 角地
- バス/トイレ別
備考 主な周辺施設色がついているアイコンをクリックすると、本物件までの道順を見ることができます。
-
ホームページはこちら
北海道知事 石狩(1) 第9416号
タウンアップ(株)- 加入団体
- (公社)北海道宅地建物取引業協会
- 保証協会
- (公社)全国宅地建物取引業保証協会
- 公正取引協議会
- (一社)北海道不動産公正取引協議会
※連合隊は物件情報の精度向上に努めています:「物件情報に誤りがある」「成約済みである」などお気付きの点がございましたらこちらよりご連絡ください。
写真枚数:30枚
あなたの住まいのお手伝い!★不動産のタウンアップ★