ロピア石山通
ここに注目!約80㎡の南向き3LDK、陽当たり良好!徒歩2分のバス停から乗車13分で地下鉄南北線「真駒内」到着。 小学校まで徒歩5分、子育て世帯にもおすすめ物件です。南向きバルコニーには便利なトランクルームあり。 内見可能!お問い合わせをお待ちしております!
| 価格 |
600万円
坪単価:約24.8万円/坪
管理費9,550円/月修繕積立金1万6,028円/月
|
|---|---|
| 間取・専有 |
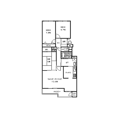
3LDK(80.14m²)└ LDK13.6帖 洋室5.7帖 洋室7帖 和室6帖
|
| 住所 | 北海道札幌市南区石山一条5丁目2-1 |
| 交通 | じょうてつバス「石山2条4丁目」停 (徒歩2分) |
| 築年月 | 築35年(1990年10月) |
| 駐車場 |
あり (6,000円/台)
|
販売状況、見学、詳細を知りたい方はこちら!
お電話の際は「連合隊の物件」とお伝えください。
新着 情報掲載期限:あと28日(更新日 2026/3/5)
- 物件写真・概要
- 周辺地図
-
▼クリックで左の拡大画像が変わります。 すべての写真を拡大
販売状況、見学、詳細を知りたい方はこちら!
おすすめポイント
- 南向き
- 駐車場あり
- 2階以上
- エレベーター
- 近くて便利!徒歩5分以内にある施設
- 4分
4分- 1分
1分- 2分
2分- 5分
5分- 周辺施設を地図で確認
交通
- じょうてつバス「石山2条4丁目」停 徒歩2分
物件概要
所在階/建物の階建 2階(210) / 地上5階建 総戸数 75戸 主要採光面 南 構造 鉄筋コンクリート(RC)造 バルコニー あり(7.04m²)- バルコニー南向き
土地権利 所有権 引渡し 相談 現況 空き 管理人 日勤 管理形態 全部委託 管理組合 有 施工業者 坂本建設(株) 取引態様 仲介 物件No 仲介手数料概算 33万円(金額は概算です。正確な金額は不動産会社へお問合せ下さい) 設備・特徴 - エレベーター
- 駐輪場
- バイク置き場
- 室内洗濯機置場
- 日当り良好
- 納戸・トランクルーム
- シューズボックス
- LPガス
- ガス暖房
- 照明器具付
- モニタ付インターホン
- システムキッチン
- シャワー付洗面化粧台
- 温水洗浄トイレ
- コンロ3口以上
備考 学区色がついているアイコンをクリックすると、本物件までの道順を見ることができます。
主な周辺施設色がついているアイコンをクリックすると、本物件までの道順を見ることができます。
-
ホームページはこちら
北海道知事 石狩(1) 第9411号
トライロ不動産(株)- 加入団体
- (公社)全日本不動産協会
- 保証協会
- (公社)不動産保証協会
- 公正取引協議会
- (一社)北海道不動産公正取引協議会
※連合隊は物件情報の精度向上に努めています:「物件情報に誤りがある」「成約済みである」などお気付きの点がございましたらこちらよりご連絡ください。
写真枚数:21枚
リビング
外観
外観
外観
外観
玄関
廊下
リビング
リビング
和室
洋室
洋室
洋室
洋室
システムキッチン
洗面室
ユニットバス
トイレ
恵庭市、札幌市近郊の不動産相談はトライロ不動産へ!
●査定無料●相談無料●秘密厳守●売買仲介●買取相談 空き家で管理が大変、住み替えたい、相続相談等、 お悩みの解決に全力を尽くします!お気軽にお問い合わせください!