トーカンマンション第3中の島
ここに注目!地下鉄中の島駅徒歩3分、リフォーム済み3LDK南西向き角部屋で陽当たり良好!小学校・中学校まで徒歩5分以内! 近隣にはスーパー・コンビニ・ドラッグストア等商業施設多数あり、生活便利な住環境! 【リフォーム内容】ユニットバス新品、システムキッチン新品、シャンプードレッサー新品、温水洗浄便座付トイレ 新品、灯油暖房機新品、給湯電気温水器新品、インナーサッシ新品、床フローリング他張替、壁天井クロス貼替 内見可能!お問い合わせ下さい!
| 価格 |
1,300万円
坪単価:約62.4万円/坪
管理費1万2,052円/月修繕積立金1万1,508円/月
|
|---|---|
| 間取・専有 |
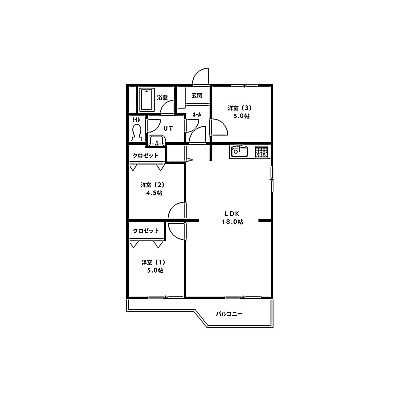
3LDK(68.87m²)└ LDK18帖 洋室5帖 洋室4.5帖 洋室5帖
|
| 住所 | 北海道札幌市豊平区中の島二条2丁目5-6 |
| 交通 | 中の島駅(徒歩3分)道順を見る |
| 築年月 | 築47年(1978年9月) |
| 駐車場 |
あり (1万円/台)
|
販売状況、見学、詳細を知りたい方はこちら!
お電話の際は「連合隊の物件」とお伝えください。
新着 情報掲載期限:あと30日(更新日 2026/2/26)
- 物件写真・概要
- 周辺地図
-
販売状況、見学、詳細を知りたい方はこちら!
おすすめポイント
- 即引渡し可
- 駐車場あり
- リフォーム済み
- 角部屋
- 2階以上
- 駅徒歩3分以内
- 近くて便利!徒歩5分以内にある施設
- 3分
3分- 4分
4分- 1分
1分- 3分
3分- 2分
2分- 3分
3分- 5分
5分- 周辺施設を地図で確認
交通色がついているアイコンをクリックすると、本物件までの道順を見ることができます。
物件概要
所在階/建物の階建 3階(310) / 地上4階建 総戸数 41戸 主要採光面 南西 構造 鉄筋コンクリート(RC)造 バルコニー あり(7.17m²)土地権利 所有権 引渡し 即時 現況 管理人 日勤 管理形態 全部委託 管理組合 有 施工業者 三井建設(株) 取引態様 仲介 物件No 仲介手数料概算 49万5,000円(金額は概算です。正確な金額は不動産会社へお問合せ下さい) 修繕履歴 - 2025年11月頃に部分的にリフォームしています。
設備・特徴 - 駐輪場
- 納戸・トランクルーム
- 室内洗濯機置場
- シューズボックス
- フローリング
- 遮音フローリング
- 照明器具付
- シャワー付洗面化粧台
- 温水洗浄トイレ
- システムキッチン
- コンロ3口以上
- 灯油暖房
- 電気温水器
- 角部屋
備考 学区色がついているアイコンをクリックすると、本物件までの道順を見ることができます。
主な周辺施設色がついているアイコンをクリックすると、本物件までの道順を見ることができます。
-
ホームページはこちら
北海道知事 石狩(1) 第9411号
トライロ不動産(株)- 加入団体
- (公社)全日本不動産協会
- 保証協会
- (公社)不動産保証協会
- 公正取引協議会
- (一社)北海道不動産公正取引協議会
※連合隊は物件情報の精度向上に努めています:「物件情報に誤りがある」「成約済みである」などお気付きの点がございましたらこちらよりご連絡ください。
写真枚数:16枚
恵庭市、札幌市近郊の不動産相談はトライロ不動産へ!
●査定無料●相談無料●秘密厳守●売買仲介●買取相談 空き家で管理が大変、住み替えたい、相続相談等、 お悩みの解決に全力を尽くします!お気軽にお問い合わせください!