サンシティ発寒中央Ⅱ
ここに注目!リフォーム済み4LDK、二面バルコニー三方角部屋三面採光!全居室採光!リビング・バルコニー前に高い建物無く 陽当たり眺望良好!駐車場空き多数(要確認)で複数台も相談可、ロードヒーティング付き、来客用駐車場も完備 内見可能です!
| 価格 |
2,080万円
坪単価:約83.5万円/坪
管理費1万1,500円/月修繕積立金2万2,495円/月
|
|---|---|
| 間取・専有 |
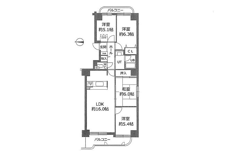
4LDK(82.4m²)└ LDK16帖 洋室5.4帖 洋室5.1帖 洋室6.3帖 和室6帖
|
| 住所 | 北海道札幌市西区発寒十条2-8-26 |
| 交通 | 発寒中央駅(徒歩7分)|発寒南駅(徒歩16分)|琴似駅(徒歩19分)道順を見る |
| 築年月 | 築34年(1991年9月) |
| 駐車場 |
あり (9,500円/台)
複数台空きあり ロードヒーティング付き |
販売状況、見学、詳細を知りたい方はこちら!
お電話の際は「連合隊の物件」とお伝えください。
新着 情報掲載期限:あと27日(更新日 2026/2/8)
- 物件写真・概要
- 周辺地図
-
▼クリックで左の拡大画像が変わります。 すべての写真を拡大
販売状況、見学、詳細を知りたい方はこちら!
おすすめポイント
- 即引渡し可
- 駐車場あり
- リフォーム済み
- 角部屋
- 追い焚き風呂
- 2階以上
- オートロック
- エレベーター
- 複数路線利用可
- 近くて便利!徒歩5分以内にある施設
- 3分
3分- 周辺施設を地図で確認
交通色がついているアイコンをクリックすると、本物件までの道順を見ることができます。
物件概要
所在階/建物の階建 4階(404) / 地上10階建 総戸数 37戸 主要採光面 西 構造 鉄骨鉄筋コンクリート(SRC)造 バルコニー あり(10.34m²)- バルコニー2面以上
土地権利 所有権 引渡し 即時 現況 空き 管理人 日勤 管理形態 全部委託 管理組合 有 取引態様 仲介 物件No 仲介手数料概算 75万2,400円(金額は概算です。正確な金額は不動産会社へお問合せ下さい) 修繕履歴 - 2025年10月頃にキッチン・リビング・トイレ・浴室・玄関をリフォームしています。施工内容:水廻り設備交換:システムキッチン・追い焚き付きユニットバス・温水洗浄便座付きトイレ 内装リフォーム:壁・床・全室 その他:ハウスクリーニング
設備・特徴 - 複数路線利用可
- ロードヒーティング
- 納戸・トランクルーム
- オートロック
- LPガス
- 灯油暖房
- フローリング
- 日当り良好
- 角部屋
- 3面採光
- 室内洗濯機置場
- 照明器具付
- シューズボックス
- 追い焚き風呂
- システムキッチン
- カウンターキッチン
- モニタ付インターホン
- エレベーター
- 駐輪場
- シャワー付洗面化粧台
- 温水洗浄トイレ
- 遮音フローリング
- コンロ3口以上
備考 来客用駐車場完備 敷地内駐車場多数空きあり、2台駐車も可能 駐車場・敷地内歩道ロードヒーティング リビング、バルコニー前に高い建物が無い為陽当たり・眺望・通風良好 学区色がついているアイコンをクリックすると、本物件までの道順を見ることができます。
主な周辺施設色がついているアイコンをクリックすると、本物件までの道順を見ることができます。
-
ホームページはこちら
北海道知事 石狩(1) 第9411号
トライロ不動産(株)- 加入団体
- (公社)全日本不動産協会
- 保証協会
- (公社)不動産保証協会
- 公正取引協議会
- (一社)北海道不動産公正取引協議会
※連合隊は物件情報の精度向上に努めています:「物件情報に誤りがある」「成約済みである」などお気付きの点がございましたらこちらよりご連絡ください。
写真枚数:26枚
リビング
外観
外観
外観
エントランス
トランクルーム(無料)
玄関
玄関
リビング
システムキッチン
ユニットバス(追い焚き付き)
眺望
リビング
リビング
リビング
シャワー付き洗面化粧台
温水洗浄便座付きトイレ
洋室
洋室
和室
和室
洋室
バルコニー
眺望
バルコニー
恵庭市、札幌市近郊の不動産相談はトライロ不動産へ!
●査定無料●相談無料●秘密厳守●売買仲介●買取相談 空き家で管理が大変、住み替えたい、相続相談等、 お悩みの解決に全力を尽くします!お気軽にお問い合わせください!