白石南郷サンハイツ
ここに注目!【南郷13丁目駅 徒歩1分!】 駅直結のような利便性が魅力の「白石南郷サンハイツ」!地下鉄東西線「南郷13丁目」駅までわずか徒歩1分と、通勤・通学に大変便利な立地です。 日々のお買い物も「東光ストア」や「まいばすけっと」が徒歩1分圏内。コンビニや銀行も近く、生活利便施設が充実しており、暮らしが豊かになることでしょう。 室内は2025年10月リノベーション完了!システムキッチン(食洗機付)やユニットバスなど水回りは全て一新され、新しい生活を気持ち良くスタートできます。保温浴槽や節湯水栓、LED照明、内窓など省エネ仕様で、家計にも優しい設計です。 広々17.3帖のLDKは南向きで陽当たり良好。全居室収納付きの2LDK、専有面積69.02㎡でゆとりの空間。アフターサービス保証付きで安心感もあります。 新しい暮らしを始めるなら、この立地と設備は注目です。ぜひ一度、現地で快適な住まいと周辺環境をご体感ください!お問い合わせをお待ちしております。
| 価格 |
1,990万円
坪単価:約95.4万円/坪
管理費1万2,100円/月修繕積立金1万7,320円/月
|
|---|---|
| 間取・専有 |
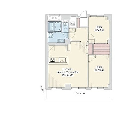
2LDK(69.02m²)└ LDK17.3帖 洋室5.7帖 洋室7帖
|
| 住所 | 北海道札幌市白石区南郷通13丁目南5-16 |
| 交通 | 南郷13丁目駅(徒歩1分)道順を見る |
| 築年月 | 築43年(1982年3月) |
| 駐車場 |
空き待ち
|
販売状況、見学、詳細を知りたい方はこちら!
お電話の際は「連合隊の物件」とお伝えください。
情報掲載期限:あと21日(更新日 2025/12/27)
- 物件写真・概要
- 周辺地図
-
▼クリックで左の拡大画像が変わります。 すべての写真を拡大
販売状況、見学、詳細を知りたい方はこちら!
おすすめポイント
- 即引渡し可
- 南向き
- リノベーション
- 都市ガス
- 2階以上
- エレベーター
- 駅徒歩1分以内
- 近くて便利!徒歩5分以内にある施設
- 2分
2分- 1分
1分- 5分
5分- 2分
2分- 周辺施設を地図で確認
交通色がついているアイコンをクリックすると、本物件までの道順を見ることができます。
物件概要
所在階/建物の階建 2階(204) / 地上7階建 総戸数 44戸 主要採光面 南 構造 鉄筋コンクリート(RC)造 バルコニー あり(10.33m²)土地権利 所有権 その他費用 毎月の費用 - 町内会費:300円
引渡し 即時 現況 空き 管理人 日勤 管理形態 全部委託 管理組合 有 施工業者 三井建設(株) 取引態様 仲介 物件No 仲介手数料概算 72万2,700円(金額は概算です。正確な金額は不動産会社へお問合せ下さい) 修繕履歴 - 2025年10月頃にリノベーションしています。施工内容:システムキッチン(食洗機付)、ユニットバス、シャワー付き洗面化粧台、温水洗浄便座付きトイレ、電気温水給湯器、配管、フローリング・フロアタイル張替、壁天井・クロス貼替、照明器具、建具、室内クリーニング等
設備・特徴 - エレベーター
- 日当り良好
- 照明器具付
- 室内洗濯機置場
- 遮音フローリング
- フローリング
- 二重サッシ
- シューズボックス
- 全居室収納あり
- 温水洗浄トイレ
- シャワー付洗面化粧台
- コンロ3口以上
- システムキッチン
- カウンターキッチン
- 浄水器
- 食器洗乾燥機
- 都市ガス
- ガス暖房
- モニタ付インターホン
- 防犯カメラ
- 駐輪場
- 電気温水器
備考 リノベーション 省エネ仕様(保温浴槽、節湯水栓、LED照明、内窓) アフターサービス保証付き 物件名は規約上の名称です。現地には「南郷ハイツ」と表記されています。 学区色がついているアイコンをクリックすると、本物件までの道順を見ることができます。
主な周辺施設色がついているアイコンをクリックすると、本物件までの道順を見ることができます。
-
ホームページはこちら
北海道知事 石狩(1) 第9411号
トライロ不動産(株)- 加入団体
- (公社)全日本不動産協会
- 保証協会
- (公社)不動産保証協会
- 公正取引協議会
- (一社)北海道不動産公正取引協議会
※連合隊は物件情報の精度向上に努めています:「物件情報に誤りがある」「成約済みである」などお気付きの点がございましたらこちらよりご連絡ください。
写真枚数:17枚
リビング
外観
外観
エントランス
駐輪場 ゴミステーション
エレベータ―
玄関
リビング
システムキッチン(食洗機付き)
ユニットバス
温水洗浄便座付きトイレ
シャワー付き洗面化粧台
洋室2
洋室1
東光ストア 徒歩1分
地下鉄東西線「南郷13丁目」駅 徒歩1分
恵庭市、札幌市近郊の不動産相談はトライロ不動産へ!
●査定無料●相談無料●秘密厳守●売買仲介●買取相談 空き家で管理が大変、住み替えたい、相続相談等、 お悩みの解決に全力を尽くします!お気軽にお問い合わせください!