シャンボール円山北町
ここに注目!地下鉄東西線「西28丁目」駅まで**徒歩5分!**通勤・通学に便利な好立地が魅力です。 周辺にはコンビニやスーパー、病院、ドラッグストア、銀行が**徒歩圏内**に揃い、日々の生活を快適にサポートします。お子様の通学も札幌市立日新小学校まで徒歩7分と安心です。 お部屋は広々**86.87㎡の3LDK**。南西向きで日当たりも良く、明るい空間が広がります。 2025年11月には、水回りを中心にリノベーションが完了予定!システムキッチン(食洗機付)、浴室(換気乾燥暖房機付)、温水洗浄便座付きトイレなど、最新の設備で快適な毎日をお届けします。さらに、保温浴槽や内窓など省エネ仕様も導入され、アフターサービス保証付きで安心です。 豊富な収納(ウォークインクローゼット、トランクルーム)や都市ガス暖房、二重サッシなど、充実の設備も魅力。駐車場も利用可能です。 魅力あふれるこの物件を、ぜひ一度ご内覧ください。お問い合わせをお待ちしております!
| 価格 |
2,490万円
坪単価:約94.8万円/坪
管理費7,100円/月修繕積立金1万6,425円/月
|
|---|---|
| 間取・専有 |
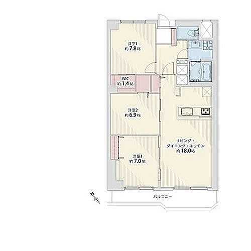
3LDK(86.87m²)└ LDK18帖 洋室7.8帖 洋室6.9帖 洋室7帖
|
| 住所 | 北海道札幌市中央区北六条西25-3-35 |
| 交通 | 西28丁目駅(徒歩5分)道順を見る |
| 築年月 | 築45年(1980年6月) |
| 駐車場 |
あり (7,500円/台)
駐車場空きは要確認 |
販売状況、見学、詳細を知りたい方はこちら!
お電話の際は「連合隊の物件」とお伝えください。
情報掲載期限:あと11日(更新日 2025/12/6)
- 物件写真・概要
- 周辺地図
-
販売状況、見学、詳細を知りたい方はこちら!
おすすめポイント
- 駐車場あり
- リノベーション
- 都市ガス
- 2階以上
- エレベーター
- 駅徒歩5分以内
- 近くて便利!徒歩5分以内にある施設
- 3分
3分- 5分
5分- 5分
5分- 周辺施設を地図で確認
交通色がついているアイコンをクリックすると、本物件までの道順を見ることができます。
物件概要
所在階/建物の階建 4階(403) / 地上7階建 総戸数 68戸 主要採光面 南西 構造 鉄筋コンクリート(RC)造 バルコニー あり(8.19m²)土地権利 所有権 その他費用 毎月の費用 - 町内会費(居住者):150円
- 通信費(館外居住者):85円
引渡し 相談 現況 空き 管理人 日勤 管理形態 全部委託 管理組合 有 施工業者 (株)竹中工務店 取引態様 仲介 物件No 仲介手数料概算 88万7,700円(金額は概算です。正確な金額は不動産会社へお問合せ下さい) 修繕履歴 - 2025年11月頃にリノベーションしています。施工内容:システムキッチン(食洗機付)、ユニットバス(換気乾燥暖房機付)、シャワー付き洗面化粧台、温水洗浄便座付きトイレ、フローリング・フロアタイル張替、壁天井・クロス貼替、照明器具、建具、室内クリーニング等
設備・特徴 - エレベーター
- 日当り良好
- 照明器具付
- 室内洗濯機置場
- フローリング
- 遮音フローリング
- 納戸・トランクルーム
- ウォークインクローゼット
- シューズボックス
- 全居室収納あり
- 温水洗浄トイレ
- シャワー付洗面化粧台
- 浴室乾燥機
- 浴室暖房
- コンロ3口以上
- システムキッチン
- カウンターキッチン
- 食器洗乾燥機
- 都市ガス
- ガス暖房
- モニタ付インターホン
- 二重サッシ
- 駐輪場
- 防犯カメラ
- 浄水器
備考 トランクルーム1住戸1区画利用可(使用料不要) リノベーション 省エネ仕様(保温浴槽、節湯水栓、LED照明、内窓) アフターサービス保証付き 学区色がついているアイコンをクリックすると、本物件までの道順を見ることができます。
主な周辺施設色がついているアイコンをクリックすると、本物件までの道順を見ることができます。
-
ホームページはこちら
北海道知事 石狩(1) 第9411号
トライロ不動産(株)- 加入団体
- (公社)全日本不動産協会
- 保証協会
- (公社)不動産保証協会
- 公正取引協議会
- (一社)北海道不動産公正取引協議会
※連合隊は物件情報の精度向上に努めています:「物件情報に誤りがある」「成約済みである」などお気付きの点がございましたらこちらよりご連絡ください。
写真枚数:5枚
恵庭市、札幌市近郊の不動産相談はトライロ不動産へ!
●査定無料●相談無料●秘密厳守●売買仲介●買取相談 空き家で管理が大変、住み替えたい、相続相談等、 お悩みの解決に全力を尽くします!お気軽にお問い合わせください!