恵庭市黄金中央1丁目中古住宅
ここに注目!JR千歳線「恵庭」駅に徒歩6分、地積約70.77坪、2011年築の中古住宅です。 学校区は、恵庭小学校と恵明中学校。南東向きにつき陽当たり良好です。カーポート付きで駐車スペース2台分(車種による) 室内設備として、階段下収納、スロップシンク、電動物干し、吹抜、天窓、パネルヒーター、ルームエアコン(冷暖兼用)、照明(照明器具、ダウンライト)、クローゼット、ウオークインクローゼット、電気温水器、灯油ボイラー、1階2階にトイレ、浴室に窓有り、サンルーム、システムキッチン(L字型)食洗機付き、IHクッキングヒーター、灯油タンク、カーポート、庭有り。
| 価格 |
3,580万円
|
|---|---|
| 建物面積 | 125.86m² (38.07坪) |
| 土地面積 | 234m² (70.78坪)(公簿) |
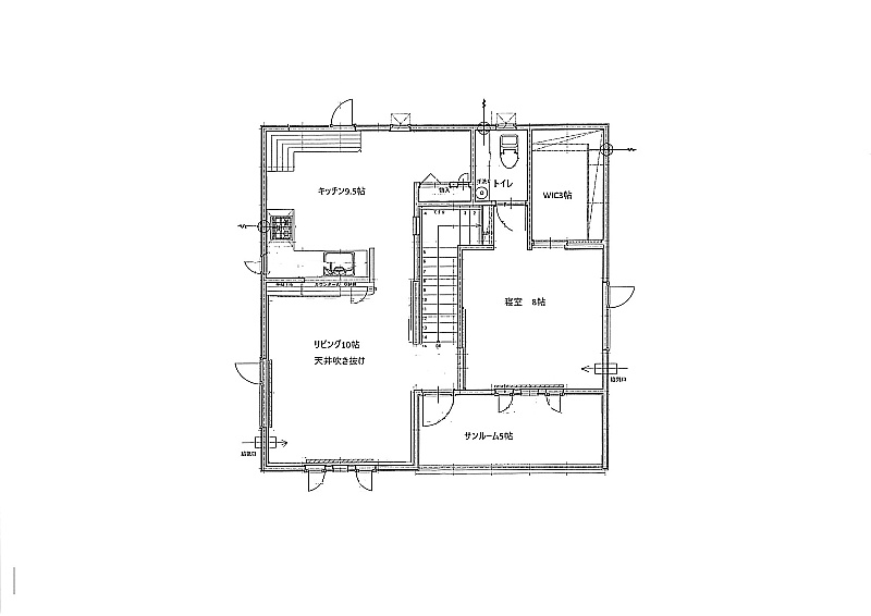
| 間取り | 3SLDK1階:洋室8.5帖 和室7.5帖 / 2階:LDK19.5帖 洋室8帖 S3帖 |
| 住所 |
北海道恵庭市黄金中央1丁目
(詳細な所在地は不動産会社にお問合せください) |
| 交通 | |
| 築年月 | 築14年(2011年8月) |
| 駐車場 |
あり 駐車可能台数:2台
駐車スペース2台分(カーポート、車種による) |
販売状況、見学、詳細を知りたい方はこちら!
お電話の際は「連合隊の物件」とお伝えください。
情報掲載期限:あと27日(更新日 2026/3/19)
- 物件写真・概要
- 周辺地図
-
▼クリックで左の拡大画像が変わります。 すべての写真を拡大
販売状況、見学、詳細を知りたい方はこちら!
おすすめポイント
- 駐車2台以上可
物件概要
建物の階建 地上2階建 主要採光面 南東 構造 木造(2×4) 接道状況 - 南東側幅8.00mの公道に13.00m接道
都市計画区域 市街化区域 私道負担 地目/地勢 宅地 地勢:平坦 国土法届出 土地権利 所有権 用途地域 - 第1種住居地域(建ぺい率:60% / 容積率:200%)
引渡し 現況 施工業者 (株)キクザワ 取引態様 仲介 物件No 仲介手数料概算 124万7,400円(金額は概算です。正確な金額は不動産会社へお問合せ下さい) 設備・特徴 - 閑静な住宅街
- 整形地
- 日当り良好
- 照明器具付
- シューズボックス
- 納戸・トランクルーム
- 電気温水器
- 灯油暖房
- システムキッチン
- 食器洗乾燥機
- IHクッキングヒーター
- 温水洗浄トイレ
- シャワー付洗面化粧台
- トイレ2ヶ所以上
- 浴室に窓
- 浴室1坪以上
- 二重サッシ
- 吹き抜け
- モニタ付インターホン
- エアコン付
- 灯油ボイラー
- ウォークインクローゼット
備考 -
ホームページはこちら
北海道知事 石狩(1) 第9411号
トライロ不動産(株)- 加入団体
- (公社)全日本不動産協会
- 保証協会
- (公社)不動産保証協会
- 公正取引協議会
- (一社)北海道不動産公正取引協議会
※連合隊は物件情報の精度向上に努めています:「物件情報に誤りがある」「成約済みである」などお気付きの点がございましたらこちらよりご連絡ください。
写真枚数:28枚
間取り図(2階)
間取り図(1階)
玄関
シューズボックス他
トイレ(1階)
ユニットバス
ユニットバス
脱衣所
洗面化粧台
洗濯機置場
スロップシンク
和室(1階)
階段
洋室(2階)、WIC、トイレ
サンルーム(ベランダから転用)
サンルーム(ベランダから転用)
洋室(1階)
2階からの眺望
リビング、吹抜
リビング、吹抜
キッチン(L字型、食洗機)
前面道路(JRが見える)
前面道路
恵庭市、札幌市近郊の不動産相談はトライロ不動産へ!
●査定無料●相談無料●秘密厳守●売買仲介●買取相談 空き家で管理が大変、住み替えたい、相続相談等、 お悩みの解決に全力を尽くします!お気軽にお問い合わせください!