ライオンズマンション第3中島公園
| 価格 |
630万円
坪単価:約62.0万円/坪
管理費6,890円/月修繕積立金1万80円/月
|
|---|---|
| 間取・専有 |
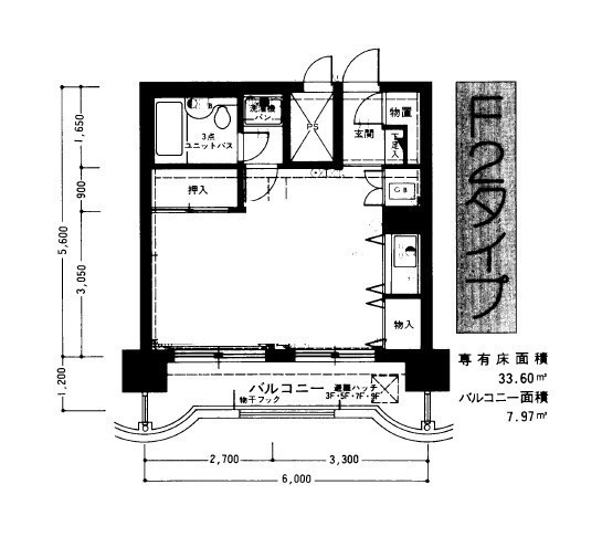
ワンルーム(33.6m²)
|
| 住所 | 北海道札幌市中央区南九条西6-2-40 |
| 交通 | 中島公園駅(徒歩6分)|中島公園通駅(徒歩5分)|山鼻9条駅(徒歩2分)道順を見る |
| 築年月 | 築43年(1982年10月) |
| 駐車場 |
空き待ち
|
販売状況、見学、詳細を知りたい方はこちら!
お電話の際は「連合隊の物件」とお伝えください。
情報掲載期限:あと27日(更新日 2025/12/15)
- 物件写真・概要
- 周辺地図
-
▼クリックで左の拡大画像が変わります。 すべての写真を拡大
販売状況、見学、詳細を知りたい方はこちら!
おすすめポイント
- 都市ガス
- 2階以上
- エレベーター
- 駅徒歩3分以内
- 複数路線利用可
- 近くて便利!徒歩5分以内にある施設
- 3分
3分- 4分
4分- 5分
5分- 4分
4分- 周辺施設を地図で確認
交通色がついているアイコンをクリックすると、本物件までの道順を見ることができます。
物件概要
所在階/建物の階建 3階 / 地上10階建 総戸数 51戸 主要採光面 東 構造 鉄骨鉄筋コンクリート(SRC)造 バルコニー あり(7.97m²)土地権利 所有権 引渡し 相談 現況 空き 管理人 日勤 管理形態 全部委託 管理組合 有 取引態様 仲介 物件No 仲介手数料概算 33万円(金額は概算です。正確な金額は不動産会社へお問合せ下さい) 設備・特徴 - 複数路線利用可
- タイル貼り
- エレベーター
- 駐輪場
- 都市ガス
- エアコン付
- 温水洗浄トイレ
備考 学区色がついているアイコンをクリックすると、本物件までの道順を見ることができます。
主な周辺施設色がついているアイコンをクリックすると、本物件までの道順を見ることができます。
-
※連合隊は物件情報の精度向上に努めています:「物件情報に誤りがある」「成約済みである」などお気付きの点がございましたらこちらよりご連絡ください。
写真枚数:21枚
建物外観
図面
建物入口
建物看板
玄関
玄関収納
居間①
居間②
居間③
居間④
収納
キッチン
収納
3点ユニットバス
洗濯機置き場
給湯器
FF式ストーブ
エアコン
セブンイレブン
ラルズマート
中島公園