ONE札幌ステーションタワー
ここに注目!◆地下鉄南北・東豊線15番出入口直結!31階から望む札幌市街◆ 《おすすめポイント》 ・2023年築、築後未入居 ・ペット飼育可能(飼育細則有) ・1階には複合商業施設さつきた8・1 ・地下鉄駅、JR駅ダブルアクセス! ・31階に位置し通風、眺望良好! ・室内にはウォークインクローゼット、シューズインクローゼット有 ・エレベーター9台あり ・建物内にゲストルームやパーティールーム有
| 価格 |
9,280万円
坪単価:約453.3万円/坪
管理費1万8,000円/月修繕積立金1万1,800円/月
|
|---|---|
| 間取・専有 |
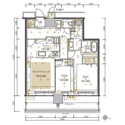
2LDK(67.69m²)└ LDK13.4帖 洋室5帖 洋室7.5帖
|
| 住所 | 北海道札幌市北区北八条西1丁目3 |
| 交通 | 札幌駅(徒歩6分) |
| 築年月 | 築2年(2023年12月) |
| 駐車場 |
あり (2万4,000円/台) 駐車可能台数:1台
|
【WEB面談可】
販売状況、見学、詳細を知りたい方はこちら!
お電話の際は「連合隊の物件」とお伝えください。
情報掲載期限:あと21日(更新日 2025/11/28)
- 物件写真・概要
- 周辺地図
-
▼クリックで左の拡大画像が変わります。 すべての写真を拡大
【WEB面談可】
販売状況、見学、詳細を知りたい方はこちら!おすすめポイント
- 築3年以内
- 駐車場あり
- 都市ガス
- 追い焚き風呂
- 2階以上
- タワーマンション
- ペット相談可
- エレベーター
- 近くて便利!徒歩5分以内にある施設
- 1分
1分- 5分
5分- 3分
3分- 5分
5分- 周辺施設を地図で確認
交通色がついているアイコンをクリックすると、本物件までの道順を見ることができます。
物件概要
所在階/建物の階建 31階(3116) / 地上48階建 総戸数 624戸 主要採光面 東 構造 鉄筋コンクリート(RC)造 バルコニー あり(14.49m²)土地権利 所有権 その他費用 毎月の費用 - インターネット使用料:1,430円
引渡し 相談 現況 空き 管理人 日勤 管理形態 一部委託 管理組合 指定なし 取引態様 仲介 物件No 235_202508051 仲介手数料概算 312万8,400円(金額は概算です。正確な金額は不動産会社へお問合せ下さい) 設備・特徴 - エレベーター
- タワーマンション
- 日当り良好
- 室内洗濯機置場
- ウォークインクローゼット
- シューズインクローゼット
- 全居室収納あり
- 温水洗浄トイレ
- シャワー付洗面化粧台
- 浴室乾燥機
- 追い焚き風呂
- 浴室暖房
- システムキッチン
- カウンターキッチン
- 食器洗乾燥機
- 都市ガス
- 床暖房
- 宅配BOX
- ペット相談可
備考 学区色がついているアイコンをクリックすると、本物件までの道順を見ることができます。
主な周辺施設
- さつきた8・1約85m(徒歩2分)
- 無印良品札幌ステラプレイス店約309m(徒歩4分)
- JRタワー約339m(徒歩5分)
- まいばすけっと北9条東2丁目店約498m(徒歩7分)
- コープさっぽろ北12条店約618m(徒歩8分)
- ローソンT−PLUS札幌店約53m(徒歩1分)
- セブンイレブンホテルエミオン札幌店約135m(徒歩2分)
- サツドラ約334m(徒歩5分)
- 愛和えるむ保育園約220m(徒歩3分)
- ニチイキッズさっぽろ保育園約356m(徒歩5分)
-
ホームページはこちら
北海道知事 石狩(15) 第1122号
札幌宅商(株) 札幌東支店 【WEB面談可】〒004-0041
北海道札幌市厚別区大谷地東5丁目3-30
Oyachi5 2階TEL:011-801-2321
FAX:011-801-2341
営業時間:10:00~18:25
定休日:第3 火曜 / 第2 火曜 / 毎週 水曜
- 加入団体
- (公社)北海道宅地建物取引業協会
- 保証協会
- (公社)全国宅地建物取引業保証協会
- 公正取引協議会
- (一社)北海道不動産公正取引協議会
※連合隊は物件情報の精度向上に努めています:「物件情報に誤りがある」「成約済みである」などお気付きの点がございましたらこちらよりご連絡ください。
写真枚数:20枚
現地外観写真
間取り図
リビング
キッチン
浴室
トイレ
その他内観
その他内観
その他内観
その他内観
その他内観
その他内観
その他内観
その他内観
その他内観
その他内観
洗面台・洗面所
洗面台・洗面所
玄関
収納















令和5年7月より東店オープンしました♪不動産のことなら札幌宅商へお任せください!
札幌宅商は創業54周年を迎えました!お客様と一生涯のお付き合いができるよう「総合力の不動産会社」として時には賃貸、時には売買とお客様のライフスタイルに合わせたお住み替えをお手伝いいたします。