クリーンリバーフィネス南郷18丁目駅前レジデンス
ここに注目!「クリーンリバーフィネス南郷18丁目駅前レジデンス」は、地下鉄東西線「南郷18丁目」駅まで徒歩2分という、毎日の通勤・通学に嬉しい駅近マンションです。 9階部分の南東角部屋で、74.36㎡の広々とした3LDKは、陽当たり良好で開放感たっぷり。17.9㎡の広々としたバルコニーからは、心地よい風を感じていただけます。IHクッキングヒーターや食洗機付きのシステムキッチン、浴室に窓がある1坪以上のゆったりバスルームなど、水回りの設備も充実。全居室収納に加え、納戸・トランクルームもあり、お部屋をすっきりと保てます。 オートロック、モニター付インターホン、防犯カメラなどセキュリティ面も安心。大切なペットと一緒に暮らせるのも嬉しいポイントです。徒歩1分にコンビニ、3分圏内にホームセンターや銀行、飲食店も充実しており、生活利便性も◎。ロードヒーティング完備で冬も快適にお過ごしいただけます。 ご家族の新しい暮らしを始めるのにぴったりの住まいを、ぜひ一度ご覧ください。
| 価格 |
4,380万円
坪単価:約194.8万円/坪
管理費8,020円/月修繕積立金9,670円/月
|
|---|---|
| 間取・専有 |
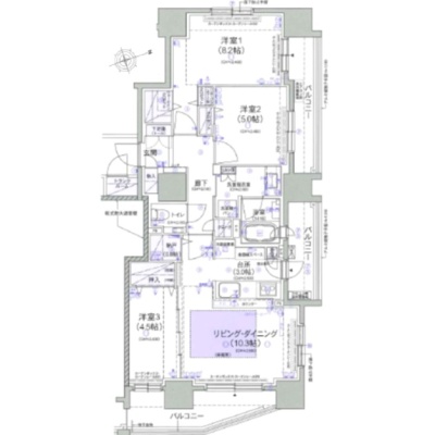
3LDK(74.36m²)└ LD10.3帖 K3帖 洋室8.2帖 洋室5帖 洋室4.5帖
|
| 住所 | 北海道札幌市白石区南郷通19丁目北1-28 |
| 交通 | 南郷18丁目駅(徒歩2分)道順を見る |
| 築年月 | 築6年(2020年1月) |
| 駐車場 |
あり 駐車可能台数:1台
|
【WEB面談可】
販売状況、見学、詳細を知りたい方はこちら!
お電話の際は「連合隊の物件」とお伝えください。
情報掲載期限:あと29日(更新日 2026/2/10)
- 物件写真・概要
- 周辺地図
-
【WEB面談可】
販売状況、見学、詳細を知りたい方はこちら!おすすめポイント
- 即引渡し可
- 駐車場あり
- 都市ガス
- 角部屋
- 2階以上
- ペット相談可
- オートロック
- エレベーター
- 駅徒歩3分以内
- 近くて便利!徒歩5分以内にある施設
- 1分
1分- 4分
4分- 周辺施設を地図で確認
交通色がついているアイコンをクリックすると、本物件までの道順を見ることができます。
物件概要
所在階/建物の階建 9階(905) / 地上15階建 総戸数 58戸 主要採光面 南東 構造 鉄筋コンクリート(RC)造 バルコニー あり(17.9m²)- バルコニー2面以上
土地権利 所有権 引渡し 即時 現況 空き 管理人 日勤 管理形態 全部委託 管理組合 有 施工業者 株式会社企画設計事務所オルト 取引態様 仲介 物件No 26.02.03 仲介手数料概算 151万1,400円(金額は概算です。正確な金額は不動産会社へお問合せ下さい) 設備・特徴 - エレベーター
- 駐輪場
- ロードヒーティング
- 照明器具付
- 日当り良好
- 角部屋
- フローリング
- 納戸・トランクルーム
- 全居室収納あり
- 温水洗浄トイレ
- シャワー付洗面化粧台
- 浴室に窓
- 浴室1坪以上
- IHクッキングヒーター
- コンロ3口以上
- システムキッチン
- 食器洗乾燥機
- 都市ガス
- エアコン付
- 24時間換気システム
- 熱交換器
- オートロック
- モニタ付インターホン
- 防犯カメラ
- ディンプルキー
- 宅配BOX
- ペット相談可
- 猫相談可
備考 学区色がついているアイコンをクリックすると、本物件までの道順を見ることができます。
主な周辺施設色がついているアイコンをクリックすると、本物件までの道順を見ることができます。
-

この物件の担当者 三浦 佑介(みうら ゆうすけ)
不動産に関わる事は全て対応させて頂きます!
北海道知事 石狩(1) 第9304号
エムズホーム(株) 【WEB面談可】- 加入団体
- (公社)北海道宅地建物取引業協会
- 保証協会
- (公社)全国宅地建物取引業保証協会
- 公正取引協議会
- (一社)北海道不動産公正取引協議会
※連合隊は物件情報の精度向上に努めています:「物件情報に誤りがある」「成約済みである」などお気付きの点がございましたらこちらよりご連絡ください。
写真枚数:8枚
お客様目線に立ったご提案をさせて頂きます!
購入や売却等の不動産に関わる全てのご提案が出来ます! 賃貸やリフォーム等も是非ご相談下さい! 不動産業界歴18年の経験と他社に負けないやる気とご提案でお客様との信頼関係を築けたらと思っております!